Prodej bytu 2+kk, Praha - Veleslavín, Na okraji, 89 m2

Na okraji, Praha, Veleslavín

16 500 000 Kč /za nemovitost HYPOTÉKA od 73 745 Kč /za měsíc

( při rychlém jednání je možné jednat o ceně)

Doporučené firmy v Praze 6

Stěhovací služby

Výkup a prodej starého nábytku

Informace k bytu

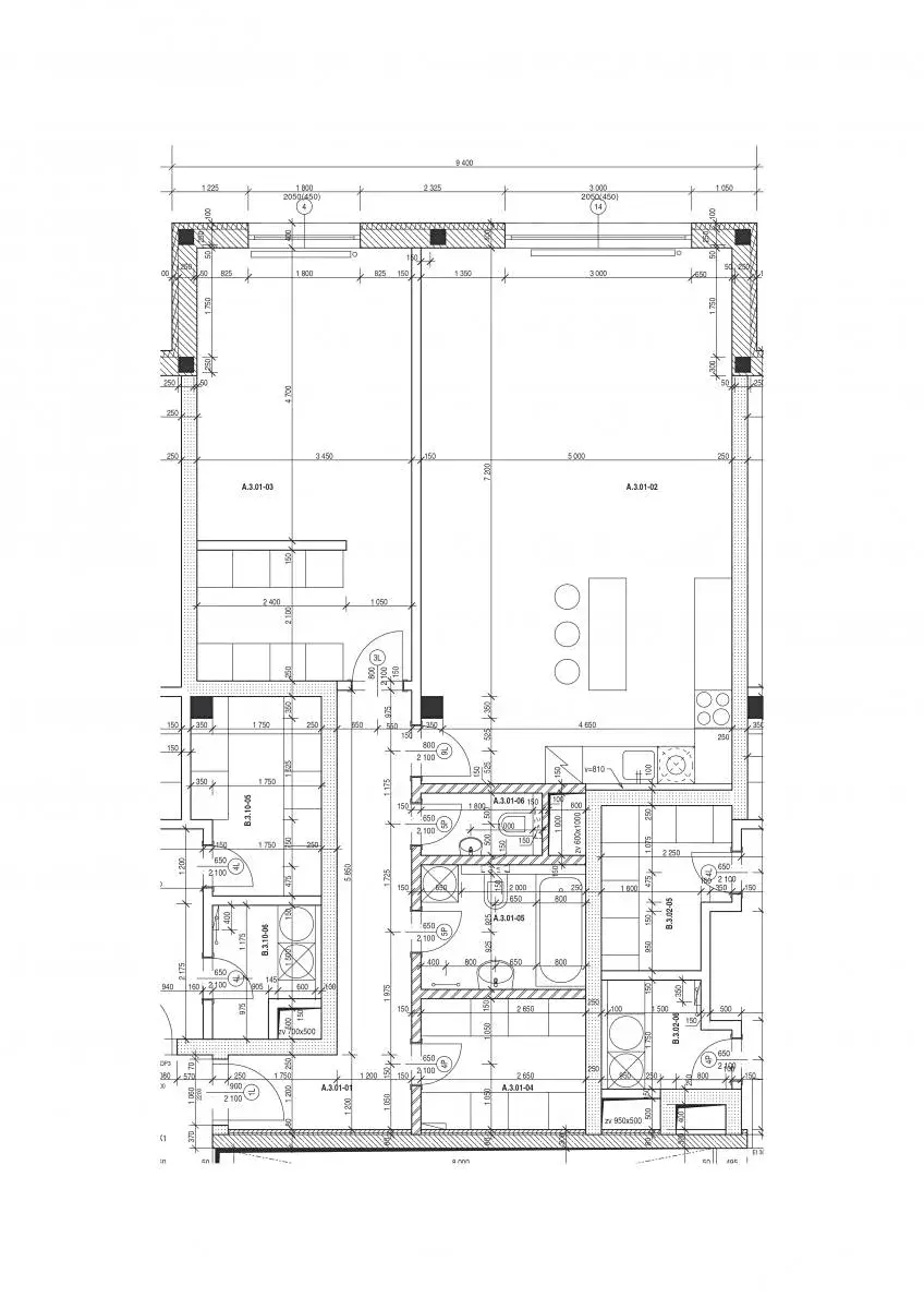
S potěšením Vám nabízíme ke koupi krásný, kompletně zařízený byt s investičním potenciálem o dispozici 2+kk a velikosti cca 89 m2. Nachází se ve 2. patře (3. NP) projektu Rezidence Petřiny s recepcí 24/7 na Praze 6 - Veleslavíně.

Dispozice: Jednotka sestává z velkorysého obývacího pokoje (42,5 m2) s kuchyňským koutem s vestavnými spotřebiči a výhledem do zeleně, ložnice s šatnou (23,4 m2), předsíň s chodbou (10,5 m2), komora (5,6 m2), koupelna s toaletou (5 m2) a samostatná toaleta (1,8 m2).

K jednotce, která se prodává jak tzv. stojí a leží tedy včetně vybavenáí moderním nábytkem (skutečnost lehce rozdílná než na fotografiích) a spotřebiči, náleží rovněž sklep o velikosti 4,6 m2 a garážové parkovací stání v suterénu budovy. Obyvatelům domu je k dispozici také kolárna.

V případě Vašeho zájmu Vám rádi poskytneme dodtatečné služby, jako je vyhledání lukrativního nájemníka. V lokalitě dlouhodobě působíme a máme výborné kontakty na japonské a korejské společnosti; korporáty, ambasády a další.

Při rychlém jednání je možné jednat o ceně.

Jedná se o velmi lukrativní lokalitu, oblíbenou mimo jiné díky poloze na kopci s absencí smogu. Blízko jsou krásné parky Obora Hvězda nebo Šárecké údolí. V okolí je veškerá občanská vybavenost: škola, školka, síť obchodů a restaurací. Místo má výborné spojení MHD do centra i na letiště (stanice metra A Petřiny 200 m, autobus, tramvaje).

Parametry bytu

Cena
16 500 000 Kč /za nemovitost Spočítat hypotéku
Poznámka k ceně
při rychlém jednání je možné jednat o ceně
Aktualizováno
14. 3. 2026
Adresa
Na okraji, Praha, Veleslavín
ID
9106609
Stavba
Cihlová
Stav objektu
Velmi dobrý
Patro
3. z 5
Vlastnictví
Osobní
Užitná plocha
89 m2
Podlahová plocha
89 m2
Třída energetické náročnosti
C - Úsporná
Topení
Ústřední dálkové
Garáž
Sklep
Výtah
Bezbarierový přístup
Parkování

Kontaktovat makléře

Máte zájem o tento byt?

Tímto, v souladu s nařízením Evropského parlamentu a Rady (EU) 2016/679, v platném znění, prohlašuji, že mi je alespoň 16 let a uděluji tak svůj souhlas se zpracováním zadaných údajů (jméno, telefon, e-mail, ip adresa) společnosti B3 Technology, s.r.o., IČ: 07330600, se sídlem Novostavby 126/23, 435 11 Lom (správce dat), za účelem předání dotazu z tohoto formuláře Vámi vybranému inzerentovi a zpětného kontaktování mé osoby. Osobní údaje bude správce zpracovávat manuálně i automaticky přímo prostřednictvím svých zaměstnanců. Informace předané tímto formulářem budou uloženy v databázi správce maximálně po dobu 10 let. Odvolání souhlasu s uložením a zpracováním poskytnutých dat lze e-mailem na info@bydlisnami.cz. V případě podezření na neoprávněné použití Vámi poskytnutých údajů máte právo předat podnět k šetření Úřadu pro ochranu osobních údajů. Více informací
Chystáte se prodat nemovitost?
Pomůžeme Vám!

Inzerát si prohlédlo 2 lidí

Prodejce

David  Reif

David Reif

Hlídací pes

Chcete dostávat emailem podobné nabídky prodeje bytů 2+kk v Praze 6?

Podobné nemovitosti