Prodej bytu 3+kk, Pafos, Kypr, 75 m2 (ID: 2574121)

Pafos

450 000 € /za nemovitost
Doporučené firmy

Informace k bytu

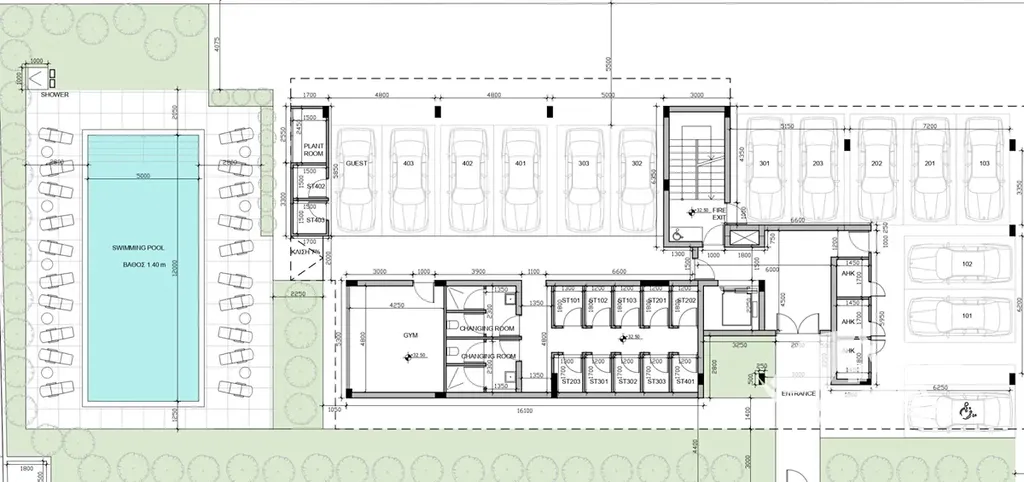
Představujeme projekt Diamond – moderní uzavřený rezidenční projekt od developera Olias Homes, který nabízí pečlivě navrženou kolekci současných apartmánů zaměřených na komfortní bydlení a dlouhodobé zhodnocení investice. Diamond kombinuje čistý architektonický styl, prémiové materiály a promyšlené dispozice, čímž vytváří vysoce kvalitní rezidenční prostředí.

Projekt Diamond se nachází ve strategické lokalitě s výbornou dostupností každodenní občanské vybavenosti – obchodů, služeb i hlavních dopravních tahů. Díky tomu je ideální jak pro trvalé bydlení, tak pro rekreační využití či pronájem. Zároveň si zachovává klidnou a soukromou rezidenční atmosféru, kterou investoři i rezidenti vyhledávají.

Vedle atraktivního životního stylu představuje Diamond také velmi silnou investiční příležitost – zejména před vstupem Kypru do Schengenu, kdy se očekává zvýšená poptávka a růst cen nemovitostí. Uzavřený areál, kvalitní výstavba, energeticky úsporné řešení a možnost kompletního vybavení „na klíč“ činí apartmány mimořádně atraktivními jak pro dlouhodobý, tak i krátkodobý pronájem.

Standardy a vybavení apartmánů:

Skrytý VRV systém klimatizace

Podlahové vytápění s Hydro-Kit technologií

Alarm v každém apartmánu & kamerový interkom u vstupu

Plně vybavené kuchyně s porcelánovou pracovní deskou

Vestavěné skříně do výšky až 2,80 m

Zvýšené interiérové dveře až do výšky 2,40 m

Koupelny s walk-in sprchami a závěsnými toaletami

Hliníkové okenní systémy s tepelným mostem (thermal break)

Vnější zateplení & energetická třída A

Vlastní kryté parkovací stání ke každému apartmánu

Soukromá komora / sklad pro každou jednotku

Upravené společné zahrady se zavlažovacím systémem

Společný bazén s moderním designem

Stavební povolení je již v procesu schvalování a jeho vydání se očekává v nejbližší době. Projekt Diamond bude zahrnovat celkem 12 apartmánů s plánovanou dobou výstavby 24 měsíců od zahájení stavby.

Ideální příležitost pro investory, kteří chtějí využít časové okno před vstupem Kypru do Schengenu a zajistit si nemovitost s vysokým růstovým potenciálem i stabilním výnosem z pronájmu.

Parametry bytu

Cena
450 000 € /za nemovitost
Aktualizováno
15. 3. 2026
Adresa
Pafos
ID
F23537
Stavba
Smíšená
Stav objektu
Projekt
Patro
4. z 5
Vlastnictví
Osobní
Užitná plocha
75 m2
Podlahová plocha
104 m2
Telekomunikace
Telefon, Internet
Doprava
Silnice, MHD, Autobus
Sklep
Terasa
Výtah
Parkování

Kontaktovat makléře

Máte zájem o tento byt?

Tímto, v souladu s nařízením Evropského parlamentu a Rady (EU) 2016/679, v platném znění, prohlašuji, že mi je alespoň 16 let a uděluji tak svůj souhlas se zpracováním zadaných údajů (jméno, telefon, e-mail, ip adresa) společnosti B3 Technology, s.r.o., IČ: 07330600, se sídlem Novostavby 126/23, 435 11 Lom (správce dat), za účelem předání dotazu z tohoto formuláře Vámi vybranému inzerentovi a zpětného kontaktování mé osoby. Osobní údaje bude správce zpracovávat manuálně i automaticky přímo prostřednictvím svých zaměstnanců. Informace předané tímto formulářem budou uloženy v databázi správce maximálně po dobu 10 let. Odvolání souhlasu s uložením a zpracováním poskytnutých dat lze e-mailem na info@bydlisnami.cz. V případě podezření na neoprávněné použití Vámi poskytnutých údajů máte právo předat podnět k šetření Úřadu pro ochranu osobních údajů. Více informací
Chystáte se prodat nemovitost?
Pomůžeme Vám!

Inzerát si prohlédlo 0 lidí

Prodejce

Bc.  Stoyan Stoyanov DiS. DiS.

Bc. Stoyan Stoyanov DiS. DiS.

Hlídací pes

Chcete dostávat emailem podobné nabídky prodeje bytů 3+kk?

Podobné nemovitosti