Prodej vily, Кримовице, Černá Hora, 115 m2 (ID: 2574122)

Кримовице

440 000 € /za nemovitost
Doporučené firmy

Informace k domu

V klidné části přímořského regionu Kotor, v oblíbené lokalitě Krimovica, se nachází moderní novostavba, která zaujme čistým designem, funkční dispozicí a příjemnou atmosférou pro každodenní život i víkendové pobyty u moře. Dům působí vzdušně, přirozeně a nabízí přesně ten typ pohodlí, který ocení rodina i náročnější klient hledající klid a kvalitu.

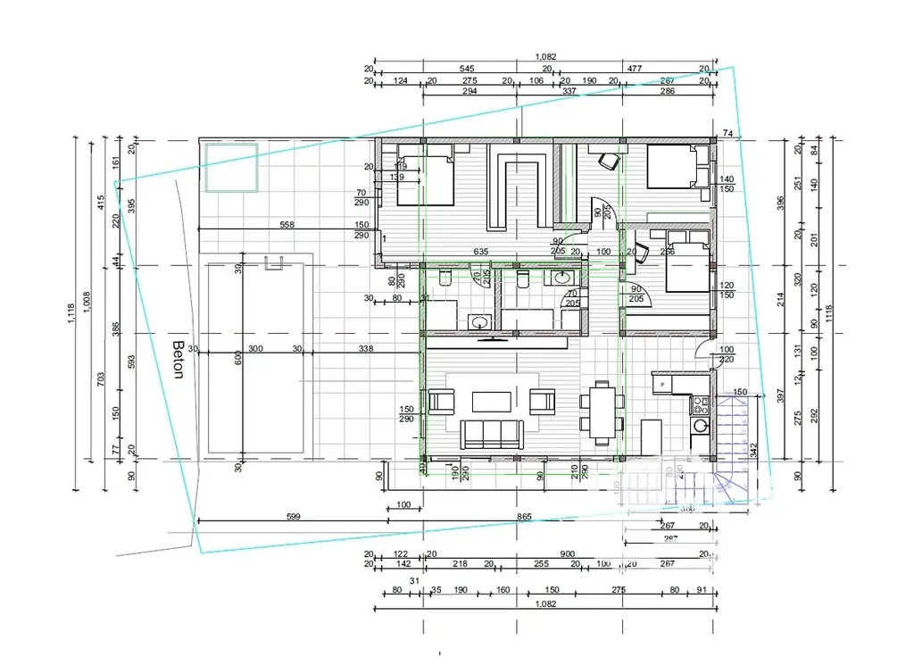
Celková hrubá plocha domu činí 200 m², z toho obytná část má 120 m². Dispozice zahrnuje tři komfortní ložnice, samostatnou šatnu, dvě koupelny a velkorysý obývací prostor s kuchyní, který tvoří přirozené centrum domu. Podlahové vytápění v celém objektu zajišťuje vysoký komfort během celého roku a podporuje příjemné klima v interiéru.

Pozemek o rozloze 250 m² poskytuje dostatek soukromí i prostoru pro relaxaci. K dispozici je terasa s výhledem na moře, upravený dvůr o ploše 60 m² a soukromý bazén o velikosti 18 m², který zpříjemní letní dny i večery strávené s rodinou a přáteli. Moře je vzdálené přibližně 550 metrů, což umožňuje snadnou pěší dostupnost bez nutnosti dojíždění.

Součástí domu je také prostorná garáž pro dvě auta a technické místnosti o celkové ploše 60 m². Tyto prostory nabízejí praktické zázemí pro skladování, technické vybavení i každodenní provoz domu, aniž by narušovaly obytnou část.

Krimovica je vyhledávaná pro svůj klid a soukromí, přitom nabízí rychlou dostupnost do historického Kotoru s bohatou nabídkou restaurací, kaváren, kulturních akcí a společenského života. Okolní příroda, skryté pláže a otevřené výhledy vytvářejí prostředí, které si zachovává autentický charakter a dlouhodobou hodnotu.

Tento dům představuje ideální kombinaci moderního bydlení, soukromí a blízkosti moře. Je vhodný pro trvalé bydlení, rekreační využití i jako stabilní investice do nemovitosti v jedné z nejžádanějších oblastí Černé Hory. Nabízí prostor, klid a životní tempo, které si určujete sami.

Všechny údaje uvedené v tomto inzerátu slouží pouze k informačním účelům. Před jakýmkoli rozhodnutím nebo jednáním založeným na těchto informacích je nutné všechny údaje ověřit v naší realitní kanceláři.

Parametry domu

Cena
440 000 € /za nemovitost
Aktualizováno
15. 3. 2026
Adresa
Кримовице
ID
F23511
Stavba
Cihlová
Stav objektu
Novostavba
Vybaveno
Částečně
Druh objektu
Samostatný
Lokalita objektu
Klidná část obce
Užitná plocha
115 m2
Zastavěná plocha
200 m2
Podlahová plocha
115 m2
Plocha pozemku
250 m2
Elektřina
230V
Odpad
Septik
Topení
Lokální elektrické, Podlahové
Telekomunikace
Internet
Doprava
Dálnice, Silnice, Autobus
Voda
Místní zdroj vody
Garáž
Sklep
Parkování
Bazén

Kontaktovat makléře

Máte zájem o tento dům?

Tímto, v souladu s nařízením Evropského parlamentu a Rady (EU) 2016/679, v platném znění, prohlašuji, že mi je alespoň 16 let a uděluji tak svůj souhlas se zpracováním zadaných údajů (jméno, telefon, e-mail, ip adresa) společnosti B3 Technology, s.r.o., IČ: 07330600, se sídlem Novostavby 126/23, 435 11 Lom (správce dat), za účelem předání dotazu z tohoto formuláře Vámi vybranému inzerentovi a zpětného kontaktování mé osoby. Osobní údaje bude správce zpracovávat manuálně i automaticky přímo prostřednictvím svých zaměstnanců. Informace předané tímto formulářem budou uloženy v databázi správce maximálně po dobu 10 let. Odvolání souhlasu s uložením a zpracováním poskytnutých dat lze e-mailem na info@bydlisnami.cz. V případě podezření na neoprávněné použití Vámi poskytnutých údajů máte právo předat podnět k šetření Úřadu pro ochranu osobních údajů. Více informací
Chystáte se prodat nemovitost?
Pomůžeme Vám!

Inzerát si prohlédlo 0 lidí

Prodejce

Nikša Marinkovič

Nikša Marinkovič

Hlídací pes

Chcete dostávat emailem podobné nabídky prodeje vil?

Podobné nemovitosti