Prodej bytu 2+1, Pafos, Kypr, 78 m2 (ID: 2574146)

Pafos

385 000 € /za nemovitost
Doporučené firmy

Informace k bytu

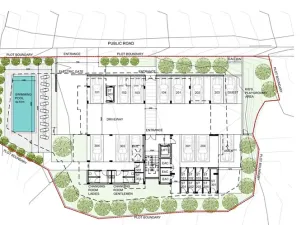
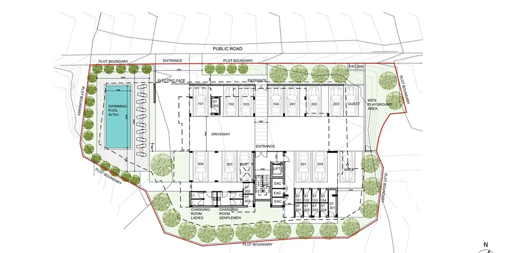
Park Project – luxusní 2+1 apartmány pro investici na Kypru (před Schengenem)

Představujeme Park Project, nový projekt od Olias Homes, který nabídne pouze 12 exkluzivních luxusních apartmánů se dvěma ložnicemi. Projekt je navržen v moderním stylu s důrazem na komfort, kvalitní materiály a chytré řešení prostoru.

Každý apartmán má velký balkon, který rozšiřuje obytný prostor a nabízí ideální místo pro relax. Součástí vybavení je také skrytý systém VRV pro efektivní chlazení i vytápění, vestavěná kuchyň, šatní skříně, walk-in sprcha a moderní sanitární vybavení.

Rezidenti budou mít k dispozici společný bazén se zázemím, fitness centrum a reprezentativní lobby.

Skvělá volba pro investory, kteří chtějí koupit nemovitost na Kypru ještě před vstupem do Schengenu, kdy se očekává další růst poptávky i cen.

Kypr nabízí nejdelší letní sezónu v Evropě (více než 320 slunečných dní ročně). Už příští rok navíc vstupuje do Schengenského prostoru, což dramaticky zvýší poptávku a s tím i ceny nemovitostí.

Teď je ten správný čas investovat – za rok budou ceny mnohem vyšší.
Kombinace mírného klimatu, širokého využití angličtiny a dalších světových jazyků, nízké kriminality, nízkých životních nákladů a daňových výhod činí z ostrova nejatraktivnější destinaci pro život i podnikání.

Postaráme se o všechny před a poprodejní služby včetně pronájmů nemovitosti.

Parametry bytu

Cena
385 000 € /za nemovitost
Aktualizováno
15. 3. 2026
Adresa
Pafos
ID
F23105
Stavba
Smíšená
Stav objektu
Projekt
Patro
2. z 4
Vlastnictví
Osobní
Užitná plocha
78 m2
Podlahová plocha
100 m2
Telekomunikace
Telefon, Internet
Doprava
Dálnice, Silnice, MHD, Autobus
Sklep
Terasa
Parkování

Kontaktovat makléře

Máte zájem o tento byt?

Tímto, v souladu s nařízením Evropského parlamentu a Rady (EU) 2016/679, v platném znění, prohlašuji, že mi je alespoň 16 let a uděluji tak svůj souhlas se zpracováním zadaných údajů (jméno, telefon, e-mail, ip adresa) společnosti B3 Technology, s.r.o., IČ: 07330600, se sídlem Novostavby 126/23, 435 11 Lom (správce dat), za účelem předání dotazu z tohoto formuláře Vámi vybranému inzerentovi a zpětného kontaktování mé osoby. Osobní údaje bude správce zpracovávat manuálně i automaticky přímo prostřednictvím svých zaměstnanců. Informace předané tímto formulářem budou uloženy v databázi správce maximálně po dobu 10 let. Odvolání souhlasu s uložením a zpracováním poskytnutých dat lze e-mailem na info@bydlisnami.cz. V případě podezření na neoprávněné použití Vámi poskytnutých údajů máte právo předat podnět k šetření Úřadu pro ochranu osobních údajů. Více informací
Chystáte se prodat nemovitost?
Pomůžeme Vám!

Inzerát si prohlédlo 0 lidí

Prodejce

Bc.  Stoyan Stoyanov DiS. DiS.

Bc. Stoyan Stoyanov DiS. DiS.

Hlídací pes

Chcete dostávat emailem podobné nabídky prodeje bytů 2+1?

Podobné nemovitosti