Prodej bytu 2+kk, Kašperské Hory, Česká, 43 m2

Česká, Kašperské Hory

Cena na vyžádání Získejte výhodnou HYPOTÉKU
Doporučené firmy v Kašperských Horách

Stěhovací služby

Pojištění a finance

Informace k bytu

MODERNÍ 2+KK S VELKÝM BALKONEM A VÝHLEDEM NA ŠUMAVU, PARKOVÁNÍ V DOMĚ, NOVOSTAVBA SE ZÁRUKOU,

Moderní 2+kk s velkým balkonem a výhledem na Šumavu, parkování v domě, novostavba se zárukou.
Kašperské Hory jsou krásné historické město s rozvinutou infrastrukturou.
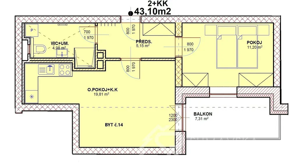
Nabízíme zde k prodeji světlý a moderní byt o dispozici 2+kk a výměře 43 m², situovaný ve 2. nadzemním podlaží právě dokončeného bytového domu s výtahem (celkem 24 bytů).
Dominantou bytu je prostorný balkon o velikosti 7,3 m² orientovaný na jihozápad, který nabízí krásný výhled na Šumavu a dostatek slunce po většinu dne. Obývací pokoj s francouzskými dveřmi na balkon plynule navazuje na kuchyňský kout umístěný v praktickém zálivu. Ložnice má vlastní okno směrem na balkon, což zajišťuje příjemnou atmosféru i dostatek světla.
Koupelna je vybavena sprchovým koutem, závěsným WC, umyvadlem a vyhřívaným žebříkem. Vše v bytě je zcela nové a vztahuje se na něj záruka 5 let.
Velkou výhodou je kryté parkovací stání v suterénu domu, kam pohodlně dojedete výtahem přímo z patra bytu. K bytu je samozřejmě i sklep.
Dům je napojen na ekologické městské vytápění na biomasu, které představuje velmi úsporný a šetrný způsob vytápění s nízkými provozními náklady.
Ideální volba jak pro vlastní bydlení, tak i jako investice. Cenu vám rádi sdělíme.

Parametry bytu

Cena
Cena na vyžádání Spočítat hypotéku
Aktualizováno
18. 3. 2026
Adresa
Česká, Kašperské Hory
ID
2026019
Stavba
Cihlová
Stav objektu
Novostavba
Vlastnictví
Osobní
Užitná plocha
43 m2
Třída energetické náročnosti
B - Velmi úsporná

Kontaktovat makléře

Máte zájem o tento byt?

Tímto, v souladu s nařízením Evropského parlamentu a Rady (EU) 2016/679, v platném znění, prohlašuji, že mi je alespoň 16 let a uděluji tak svůj souhlas se zpracováním zadaných údajů (jméno, telefon, e-mail, ip adresa) společnosti B3 Technology, s.r.o., IČ: 07330600, se sídlem Novostavby 126/23, 435 11 Lom (správce dat), za účelem předání dotazu z tohoto formuláře Vámi vybranému inzerentovi a zpětného kontaktování mé osoby. Osobní údaje bude správce zpracovávat manuálně i automaticky přímo prostřednictvím svých zaměstnanců. Informace předané tímto formulářem budou uloženy v databázi správce maximálně po dobu 10 let. Odvolání souhlasu s uložením a zpracováním poskytnutých dat lze e-mailem na info@bydlisnami.cz. V případě podezření na neoprávněné použití Vámi poskytnutých údajů máte právo předat podnět k šetření Úřadu pro ochranu osobních údajů. Více informací
Chystáte se prodat nemovitost?
Pomůžeme Vám!
Theleadway banner

Inzerát si prohlédlo 2 lidí

Prodejce

Ilona Korcová

Ilona Korcová

Hlídací pes

Chcete dostávat emailem podobné nabídky prodeje bytů 2+kk v Kašperských Horách?

Podobné nemovitosti