Soccer reality

Prodej bytu 2+1, Praha - Libeň, Kovářská, 60 m2 (ID: 2577921)

Kovářská, Praha, Libeň

8 495 000 Kč /za nemovitost HYPOTÉKA od 37 968 Kč /za měsíc

(Cena včetně provize a kompletního právního servisu.)

Doporučené firmy v Praze 9

Stěhovací služby

Výkup a prodej starého nábytku

Informace k bytu

Vítejte u metra Českomoravská. Pouhých pár metrů od parku Podviní a Galerie Harfa, v žádané části Prahy 9, na rozhraní Libně a Vysočan.
A právě zde nabízíme prodej světlého a útulného bytu 2+1 o ploše 60 m² (s lodžií a sklepem) ve 3. patře (4. NP), zrevitalizovaného cihlového domu.
Hledáte dva plus jedničku ke koupi v širším centru s veškerou obč. vybaveností v místě a s cyklostezkou podél Rokytky za rohem? Pak čtěte dál.

Jakmile vejdete do bytové jednotky, která nyní prošlo čerstvou generální rekonstrukcí téměř všech místností (zcela nová kuchyň na míru včetně spotřebičů (i myčky a pračky se sušičkou) v dekoru bílé a černé s vestavnými spotřebiči; nové dveře a kování; nově zbroušené a lakované parkety; nová topná tělesa s časovačem; nový bojler; nový rozvaděč a kompletace elektro; nová vinylová podlaha v předsíni a kuchyni) oceníte jeho praktickou dispozici a orientaci na dvě světové strany. Koupelna a wc prošla rekonstrukcí (jádro, rozvody, obklady) před zhruba 12 lety, ale byly zde nyní instalovány nové doplňky, sanitární zařízení, nová wc nádoba, nový bojler a také nové koupelnové topení).

Byt tedy můžete začít bez nutnosti jakýchkoliv úprav ihned užívat nebo pronajímat.

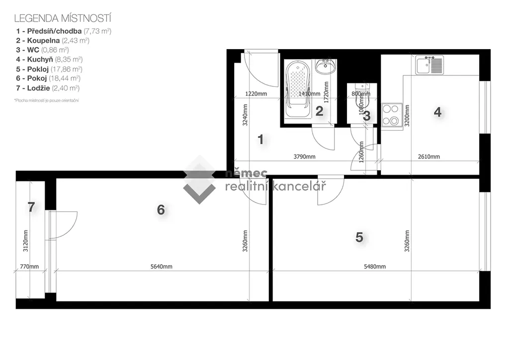
Dispozice:
Po vstupu do této 2+1 se octnete v prostorné centrální předsíni (7,73 m²), odkud je vstup do všech místností. Na severozápad, do jednosměrné ulice Kovářská, je orientován obývací pokoj (18,44 m²) s příjemnou zasklenou lodžií (2,40 m²). Na opačnou stranu (jihovýchod), do klidného vnitrobloku, je orientován druhý pokoj (17,86 m²) a opravdu velká kuchyň (8,35 m²). V té je prostor pro zbudování baru pod oknem nebo na jídelní stůl pro dva - tři. Koupelna má vanu (2,43 m²), za wc (0,86 m²) jsou stoupačky. Pokoje jsou neprůchozí a orientace na dvě světové strany je praktická jak kvůli větrání, tak pro přísun světla bytu.

Velice nízké měsíční poplatky - okolo 2 tisíc / měsíc! Dům je opravdu ve vynikající kondici, jen málokdy se vidí tak dobře fungující SVJ. Dům má nová okna, fasádu, vstup, kamerový systém, opravené společné prostory, výtah, rozvody, sklepy, je pečováno i o dvorek. Rádi vám poskytneme informace o hospodaření domu, které je pozitivní nejen díky příjmům z pronájmu nebytových prostor v ul. Sokolovská.

Jestli je však něco skutečně vynikající, pak je to lokalita. Ve vedlejší ulici najdete vstup do stanice metra Českomoravská (dokončení rekonstrukce nové stanice již brzy), o pár kroků dál pak Galerii Harfa (Albert, restaurace, obchody..) a na druhou stranu Polikliniku Medicon. Pokud se rozhodnete bydlet v této části Prahy 9, čeká vás spousta přírody pro procházky či projížďky na kole a bruslích - park Podviní, cyklostezkou podél Rokytky do parku Zahrádky, ke Kyjskému a Počernickému rybníku, nebo třeba až do Úval. Opačným směrem se lze zase rychle napojit na cyklostezku podél Vltavy. Centrum Prahy je vzdáleno pouhých pár kilometrů vzdušnou čarou, rozhraní Libně, Holešovic a Karlína je teď dynamicky se rozvíjející lokalitou.

Bližší info v RK, doporučujeme.

Parametry bytu

Cena
8 495 000 Kč /za nemovitost Spočítat hypotéku
Poznámka k ceně
Cena včetně provize a kompletního právního servisu.
Aktualizováno
18. 3. 2026
Adresa
Kovářská, Praha, Libeň
ID
1144
Stavba
Cihlová
Stav objektu
Velmi dobrý
Patro
5. z 7
Vlastnictví
Osobní
Užitná plocha
60 m2
Podlahová plocha
60 m2
Třída energetické náročnosti
C - Úsporná
Elektřina
230V, 400V
Plyn
Plynovod
Odpad
Veřejná kanalizace
Komunikace
Asfaltová, Zpevněná
Telekomunikace
Telefon, Kabelová televize
Doprava
Vlak, Dálnice, Silnice, MHD, Autobus
Voda
Vodovod
Topné těleso
Přímotop
Zdroj topení
Přímotop
Zdroj teplé vody
Bojler - elektro
Sklep
Lodžie
Výtah

Kontaktovat makléře

Máte zájem o tento byt?

Tímto, v souladu s nařízením Evropského parlamentu a Rady (EU) 2016/679, v platném znění, prohlašuji, že mi je alespoň 16 let a uděluji tak svůj souhlas se zpracováním zadaných údajů (jméno, telefon, e-mail, ip adresa) společnosti B3 Technology, s.r.o., IČ: 07330600, se sídlem Novostavby 126/23, 435 11 Lom (správce dat), za účelem předání dotazu z tohoto formuláře Vámi vybranému inzerentovi a zpětného kontaktování mé osoby. Osobní údaje bude správce zpracovávat manuálně i automaticky přímo prostřednictvím svých zaměstnanců. Informace předané tímto formulářem budou uloženy v databázi správce maximálně po dobu 10 let. Odvolání souhlasu s uložením a zpracováním poskytnutých dat lze e-mailem na info@bydlisnami.cz. V případě podezření na neoprávněné použití Vámi poskytnutých údajů máte právo předat podnět k šetření Úřadu pro ochranu osobních údajů. Více informací
Chystáte se prodat nemovitost?
Pomůžeme Vám!

Inzerát si prohlédlo 1 lidí

Prodejce

Jakub Němec

Jakub Němec

Hlídací pes

Chcete dostávat emailem podobné nabídky prodeje bytů 2+1 v Praze 9?

Top nabídky

Podobné nemovitosti