Prodej skladu, Mělník, 1210 m2

Mělník

Cena na vyžádání /za nemovitost Získejte výhodnou HYPOTÉKU
Doporučené firmy v Mělníku

Informace k nemovitosti

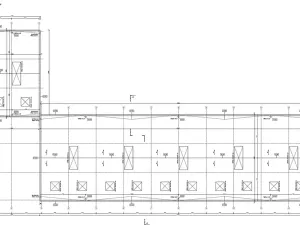
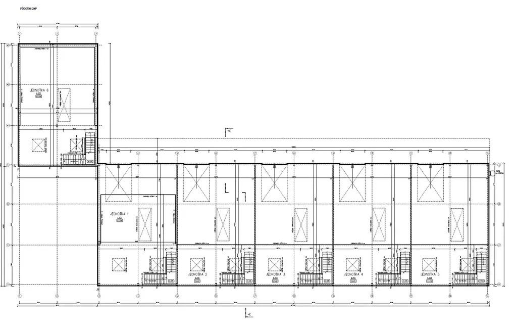
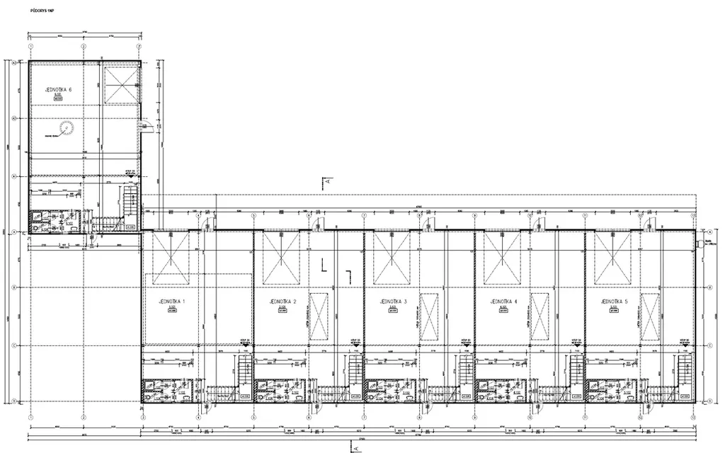
Nabízíme k prodeji novostavbu moderní haly vhodnou pro skladování, lehkou výrobu, showroom nebo kombinaci administrativního a provozního zázemí. Skládá se ze 6ti stejných jednotek. Nemovitost se nachází nedaleko dálnice D8 exit č. 18 na silnici 1. třídy č. 16 a 5 km od Mělníka.


Technické specifikace:
• Zastavěná plocha 867 m²
• užitná plocha haly: 1 160 m²
• manipulační a parkovací plochy: 921 m²
• plocha pozemku: 4 387 m²
• světlá výška haly: 6,5 m
• novostavba (kolaudace 2026)
• ocelová konstrukce + mezipatro
• opláštění sendvičovými panely
• bezprašná průmyslová podlaha s nosností 5t
• průmyslové vrata (přímý vjezd do haly)
• vytápění pomocí stropních infra panelů
• klimatizace kancelářských prostorů
• LED osvětlení + světlíky
• zabezpečení: kamerový systém, alarm, internet
• parkovací místa v areálu
• bezproblémový příjezd pro kamionovou dopravu
• oplocený areál, vjezdová brána


Využití:
• skladování
• lehkou výrobu
• logistiku
• showroom
• kombinace provozu a administrativy


Cena: na vyžádání


Pro více informací nebo domluvení prohlídky nás kontaktaktujte.

Parametry nemovitosti

Cena
Cena na vyžádání Spočítat hypotéku
Aktualizováno
19. 3. 2026
Adresa
Mělník
Stavba
Skeletová
Stav objektu
Novostavba
Užitná plocha
1210 m2
Zastavěná plocha
1783 m2
Třída energetické náročnosti
C - Úsporná
Telekomunikace
Internet
Doprava
Dálnice, Silnice
Voda
Studna
Topné těleso
Infrapanel
Parkování

Kontaktovat makléře

Realitní kancelář

Omikron Group, a.s.

Senovážné náměstí 977/24, Praha, Nové Město

Chystáte se prodat nemovitost?
Pomůžeme Vám!

Máte zájem o tuto nemovistost?

Tímto, v souladu s nařízením Evropského parlamentu a Rady (EU) 2016/679, v platném znění, prohlašuji, že mi je alespoň 16 let a uděluji tak svůj souhlas se zpracováním zadaných údajů (jméno, telefon, e-mail, ip adresa) společnosti B3 Technology, s.r.o., IČ: 07330600, se sídlem Novostavby 126/23, 435 11 Lom (správce dat), za účelem předání dotazu z tohoto formuláře Vámi vybranému inzerentovi a zpětného kontaktování mé osoby. Osobní údaje bude správce zpracovávat manuálně i automaticky přímo prostřednictvím svých zaměstnanců. Informace předané tímto formulářem budou uloženy v databázi správce maximálně po dobu 10 let. Odvolání souhlasu s uložením a zpracováním poskytnutých dat lze e-mailem na info@bydlisnami.cz. V případě podezření na neoprávněné použití Vámi poskytnutých údajů máte právo předat podnět k šetření Úřadu pro ochranu osobních údajů. Více informací
Chystáte se prodat nemovitost?
Pomůžeme Vám!

Inzerát si prohlédlo 0 lidí

Prodejce

Omikron Group a.s.

Omikron Group a.s.

Hlídací pes

Chcete dostávat emailem podobné nabídky prodeje skladů v Mělníku?

Podobné nemovitosti