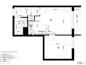
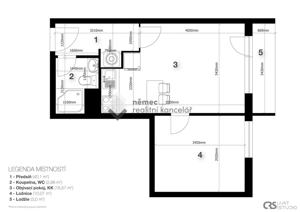
Prodej bytu 2+kk, Jičín, Sokolovská, 40 m2

Sokolovská, Jičín, Nové Město

4 495 000 Kč /za nemovitost HYPOTÉKA od 20 090 Kč /za měsíc

(Cena včetně provize a kompletního právního servisu.)

Doporučené firmy v Jičíně

Informace k bytu

Prodej zbrusu nově a stylově zrekonstruovaného bytu 2+kk o ploše 40 m² s příslušenstvím (komora vedle bytu - 1,5 m² a sklep v 1. PP - 2 m²) ve 2. patře (3. NP) panelového domu nacházejícího se přímo u vstupu do nově vznikající Odpočinkové zóny Cidlina a pouhých 600 metrů od Zámeckého parku a historického centra města Jičína.

Jsou byty a byty. Troufáme si říct, že tohle je TEN byt. Minimalistický design lahodící oku - na podlaze je rigidní vinylová podlaha v dekoru Oak, kvalitní kuchyň na míru s barem od profesionálního truhlářského studia Truhlárna74 barevně kombinuje kouřově zelenou s tenkou pracovní deskou v dekoru kamene Calcit oblázkově šedém. K tomu všemu černé doplňky, vestavné spotřebiče (hork. trouba, odsavač par, indukční varná deska, větší kombinovaná lednice s mrazákem, myčka) a černý granitový dřez s baterií. Oceníte dvě řady horních skřínek a LED osvětlení, nebo třeba zásuvku (vč. USB) v pracovní desce baru. Na fotkách chybí černé úchytky Nakana spodních skřínek (budou doplněny po uveřejnění nabídky).

Bytová jednotka je po generální a zdařilé rekonstrukci - nová okna Hilzinger s izolačními trojskly a nadstandardními profily Master88, nový rozvod topení v mědi s plochými topnými tělesy na stěně, zděné jádro s unikátní dispozicí, veškeré vnitřní rozvody (elektro vč. černých datových/anténních zásuvek ABB a racku na router), omítky, povrchy, instalace, kvalitní vinylová podlaha, bílé interiérové dveře s černým kováním.

Obývací pokoj s lodžií je, stejně jako sousední ložnice, orientovaný na jih a nabízí pohled do zeleně. Ložnici je možné doplnit o vestavnou skříň po pravé stěně (návrh připravíme), stejně tak je možné přidat podstropní skřínku, botník a věšák do předsíně.
Koupelna je v decentní kombinaci šedé, černé, bílé a dřeva. Oceníte široký walk-in sprchový kout, závěsné wc, designové topidlo, odvětrávání a zrcadlo s led osvětlením.

Ideální byt vhodný k okamžitému nastěhování, nebo připravený na pronájem. Nízké měsíční poplatky (2374,- Kč vč. fondu oprav). Dobře fungující svj. Plánuje se revitalizace lodžií a nové zateplení budovy.

V okolí nemovitosti naleznete opravdu vše pro pohodlný život. Odpočinková zóna Cidlina s mobilní kavárnou, pobytovými loukami, cyklostezkami a dalšími prvky, je již v započaté výstavbě (dokončení 2026) a bude mít vstup přes ulici. Trasa pěšky na Valdštejnovo náměstí zabere opravdu jen pár minut - a za chvilku si můžete vychutnávat kávu v Kroku nebo Všehochuti. Na dobré jídlo si můžete zaběhnout do Prosecca (3 min pěšky), do Biografu a Zámeckého parku je to vlastně jen jednou ulicí vedoucí přímo od domu.

Nenechte si ujít tuhle jedinečnou příležitost, vřele doporučujeme.

Parametry bytu

Cena
4 495 000 Kč /za nemovitost Spočítat hypotéku
Poznámka k ceně
Cena včetně provize a kompletního právního servisu.
Aktualizováno
19. 3. 2026
Adresa
Sokolovská, Jičín, Nové Město
ID
1146
Stavba
Panelová
Stav objektu
Velmi dobrý
Patro
3. z 6
Vybaveno
Částečně
Lokalita objektu
Klidná část obce
Vlastnictví
Osobní
Užitná plocha
40 m2
Podlahová plocha
40 m2
Třída energetické náročnosti
C - Úsporná
Elektřina
230V, 400V
Odpad
Veřejná kanalizace
Komunikace
Asfaltová, Zpevněná
Telekomunikace
Internet, Kabelová televize
Doprava
Vlak, Dálnice, Silnice, MHD, Autobus
Voda
Vodovod
Topné těleso
Radiátory
Zdroj topení
Ústřední dálkové
Sklep
Lodžie
Výtah

Kontaktovat makléře

Máte zájem o tento byt?

Tímto, v souladu s nařízením Evropského parlamentu a Rady (EU) 2016/679, v platném znění, prohlašuji, že mi je alespoň 16 let a uděluji tak svůj souhlas se zpracováním zadaných údajů (jméno, telefon, e-mail, ip adresa) společnosti B3 Technology, s.r.o., IČ: 07330600, se sídlem Novostavby 126/23, 435 11 Lom (správce dat), za účelem předání dotazu z tohoto formuláře Vámi vybranému inzerentovi a zpětného kontaktování mé osoby. Osobní údaje bude správce zpracovávat manuálně i automaticky přímo prostřednictvím svých zaměstnanců. Informace předané tímto formulářem budou uloženy v databázi správce maximálně po dobu 10 let. Odvolání souhlasu s uložením a zpracováním poskytnutých dat lze e-mailem na info@bydlisnami.cz. V případě podezření na neoprávněné použití Vámi poskytnutých údajů máte právo předat podnět k šetření Úřadu pro ochranu osobních údajů. Více informací
Chystáte se prodat nemovitost?
Pomůžeme Vám!

Inzerát si prohlédlo 1 lidí

Prodejce

Jakub Němec

Jakub Němec

Hlídací pes

Chcete dostávat emailem podobné nabídky prodeje bytů 2+kk v Jičíně?

Podobné nemovitosti