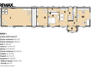
Prodej vícegeneračního domu, Kojice, 415 m2

Kojice

4 299 031 Kč /za nemovitost HYPOTÉKA od 19 214 Kč /za měsíc

(Cena zahrnuje veškerý právní servis)

Doporučené firmy v Kojicích

Informace k domu

Usedlost s obrovským potenciálem: vícegenerační bydlení, vestavby bytů, investice i hospodaření nebo kombinace domov plus firma
Hledáte místo, které nabídne klid, prostor a zároveň skutečnou příležitost k výstavbě či rozšíření obytných kapacit?
Tahle usedlost v Kojicích je přesně ten typ nemovitosti, která se na trhu objevuje jen výjimečně. Na kraji obce, jen se dvěma sousedy a vše blízko.

Na pozemku o 2 446 m² stojí nyní dvě obytné budovy, velká stodola, samostatný sklípek a rozsáhlé půdní prostory vhodné k vestavbě.
Celkem 415 m² užitné plochy s možností výrazného rozšíření – ideální pro vícegenerační rodinu, investora nebo projekt s ubytovací kapacitou.
Co dělá tuto usedlost výjimečnou?
Dvě obytné budovy – jedna ihned obyvatelná, s novou elektřinou a plynovým topením. Obě připravené na úpravy, přestavby či propojení.
Několik dalších prostor pro chov zvířat nebo podnikatelské využití
Velké půdní prostory (165 m² + 32 m²) – ideální pro vestavbu bytů, ateliérů nebo rozšíření obytné plochy.
Stodola – skvělá pro dílnu, sklad, ateliér, hospodářství nebo přestavbu na další jednotku.
Vinný sklípek – autentický prvek s atmosférou, perfektní pro víno, potraviny i posezení nebo výstavbu dalšího domu
Ovocný sad a úrodná půda – prostor pro zahradničení, drobné hospodaření nebo bio farmu.
Vlastní studna + obecní voda a kanalizace u domu, plyn a elektřina – kompletní inženýrské sítě.
Slunný, klidný pozemek – ideální pro rodinný život, rekreaci i podnikání.

Kojice leží v malebném Polabí, pár minut od Labe a místních rybníků a nabízejí klidné prostředí s kompletní základní vybaveností: potraviny, hospoda, MŠ, obecní úřad, kulturní sál, sportoviště, dětské hřiště, rybník, plyn, vodovod i kanalizaci. Díky výbornému vlakovému spojení a blízkosti Kolína, Přelouče a Pardubic jde o praktické místo pro rodiny i investory, kteří hledají kombinaci venkovského klidu a dobré dostupnosti.

Okolní příroda nabízí příležitosti k myslivosti, rybaření, cyklostezky, procházky i klid, který se dnes hledá čím dál hůř.

Možnosti využití, které dávají smysl:
- Vícegenerační rodinné bydlení s velkou zahradou a zázemím pro zvířata
- Rekreační usedlost pro velké rodiny, skupiny nebo pronájem
- Investiční projekt – vestavba bytů, ubytovna, agroturistika, ateliéry, dílny
- Podnikání v souladu s územním plánem – od farmy po řemeslné provozy

Tahle usedlost spojuje klidnou atmosféru, velký pozemek a mimořádný potenciál.
Nechte se inspirovat několika vizualizacemi a začněte zde novou kapitolu.
Je to místo, kde můžete vytvořit rodinné sídlo, investiční projekt nebo kombinaci obojího.
S financováním hypotékou vám rádi pomůžeme.

Neváhejte a zavolejte/napište si o více informací a sjednejte si prohlídku co nejdříve Prodávající si vyhrazuje právo vybrat kupujícího na základě jím zvolených kritérií.

Parametry domu

Cena
4 299 031 Kč /za nemovitost Spočítat hypotéku
Poznámka k ceně
Cena zahrnuje veškerý právní servis
Aktualizováno
14. 4. 2026
Adresa
Kojice
ID
285-NP00363
Stavba
Smíšená
Stav objektu
Před rekonstrukcí
Vybaveno
Ne
Typ objektu
Patrový
Druh objektu
Samostatný
Lokalita objektu
Okraj obce
Užitná plocha
415 m2
Zastavěná plocha
218 m2
Plocha pozemku
2446 m2
Elektřina
230V, 400V
Plyn
Plynovod
Odpad
Septik
Komunikace
Asfaltová
Telekomunikace
Internet, Satelit
Doprava
Vlak, Dálnice, Silnice, Autobus
Voda
Vodovod, Studna
Garáž
Bezbarierový přístup
Převod do OV
Parkování

Kontaktovat makléře

Máte zájem o tento dům?

Tímto, v souladu s nařízením Evropského parlamentu a Rady (EU) 2016/679, v platném znění, prohlašuji, že mi je alespoň 16 let a uděluji tak svůj souhlas se zpracováním zadaných údajů (jméno, telefon, e-mail, ip adresa) společnosti B3 Technology, s.r.o., IČ: 07330600, se sídlem Novostavby 126/23, 435 11 Lom (správce dat), za účelem předání dotazu z tohoto formuláře Vámi vybranému inzerentovi a zpětného kontaktování mé osoby. Osobní údaje bude správce zpracovávat manuálně i automaticky přímo prostřednictvím svých zaměstnanců. Informace předané tímto formulářem budou uloženy v databázi správce maximálně po dobu 10 let. Odvolání souhlasu s uložením a zpracováním poskytnutých dat lze e-mailem na info@bydlisnami.cz. V případě podezření na neoprávněné použití Vámi poskytnutých údajů máte právo předat podnět k šetření Úřadu pro ochranu osobních údajů. Více informací
Chystáte se prodat nemovitost?
Pomůžeme Vám!

Inzerát si prohlédlo 0 lidí

Prodejce

Bc. Petr Kubášek

Bc. Petr Kubášek

Hlídací pes

Chcete dostávat emailem podobné nabídky prodeje vícegeneračních domů v Kojicích?

Podobné nemovitosti