Prodej bytu 2+kk, Praha - Žižkov, Lucemburská, 80 m2

Lucemburská, Praha 3 - Žižkov

Doporučené firmy v Praze 3

Stěhovací služby

Výkup a prodej starého nábytku

Pojištění a finance

Informace k bytu

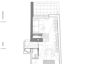
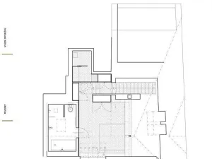
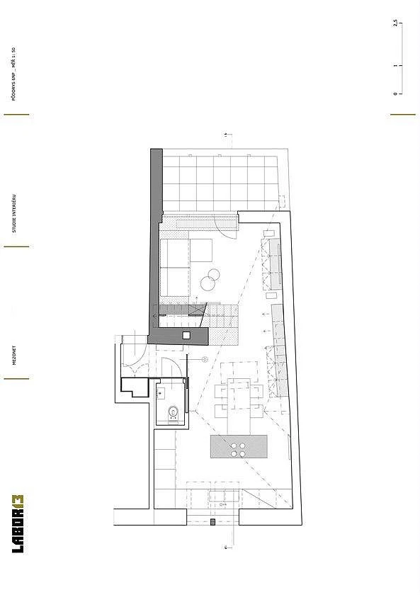
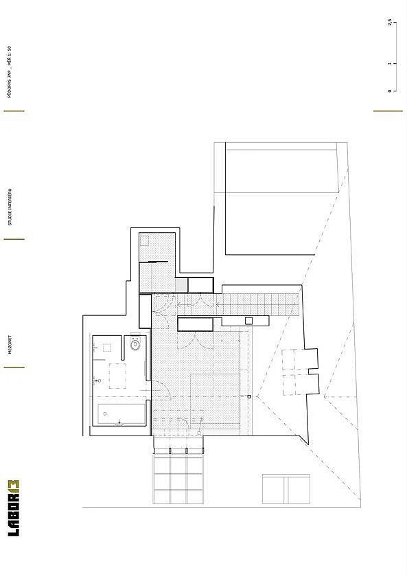
Loft 80 m², terasa 8 m² ve staré zástavbě pražských Vinohrad

Loftový byt o dispozici 2+kk s terasou 8 m² a sklepem ve staré zástavbě pražských Vinohrad.

Vstupní podlaží tvoří vzdušný prostor s předsíní a toaletou, kuchyní a obývacím pokojem, z něhož vede přístup na terasu s výhledem na Žižkovskou věž a Vítkov.
Klidovou část vytváří útulné patro s ložnicí a koupelnou.

Obě podlaží propojuje vložené schodiště, které spolu s navazujícím pódiem tvoří výrazný dřevěný prvek ve spodním obývacím prostoru. Pódium představuje funkční prvek, slouží pro vstup na terasu a je do něj také vsazena sedací souprava na míru. Ta může posloužit jako klasické lůžko pro přespání hostů.
Celé spodní podlaží sjednocuje světlá dlažba. Kuchyňský prostor je řešen s pracovními deskami z tvrzeného umělého kamene.
Nika s knihovnou, jejíž jedna police může zároveň sloužit jako pracovní stolní deska, představuje další výrazný prvek.

Tmavé dřevo schodiště plynule přechází do podlahy patra a kontrastuje tak zároveň s betonovou stěrkou centrální zdi s krbem a světlým obkladem vestavěných stěn s úložnými prostory. Konec schodiště osvětluje denním světlem malý světlík.

V patře v ložnici pod velkým střešním oknem se opakuje prvek pódia, do kterého je vsazena postel.
Za dveřmi integrovanými v dřevěné stěně je koupelna s tmavým kamenným obkladem a dalším světlíkem, toaletou, vanou a sprchovým koutem.

Vytápění plynovým kotlem.
Obývací pokoj s plynovým krbem.
Dispozici lze upravit na 3+kk.

Parametry bytu

Cena
15 400 000 Kč Spočítat hypotéku
Aktualizováno
21. 3. 2026
Adresa
Lucemburská, Praha 3 - Žižkov
ID
2601
Stavba
Cihlová
Vybaveno
Částečně
Vlastnictví
Osobní
Užitná plocha
80 m2
Třída energetické náročnosti
G - Mimořádně nehospodárná

Kontaktovat makléře

Máte zájem o tento byt?

Tímto, v souladu s nařízením Evropského parlamentu a Rady (EU) 2016/679, v platném znění, prohlašuji, že mi je alespoň 16 let a uděluji tak svůj souhlas se zpracováním zadaných údajů (jméno, telefon, e-mail, ip adresa) společnosti B3 Technology, s.r.o., IČ: 07330600, se sídlem Novostavby 126/23, 435 11 Lom (správce dat), za účelem předání dotazu z tohoto formuláře Vámi vybranému inzerentovi a zpětného kontaktování mé osoby. Osobní údaje bude správce zpracovávat manuálně i automaticky přímo prostřednictvím svých zaměstnanců. Informace předané tímto formulářem budou uloženy v databázi správce maximálně po dobu 10 let. Odvolání souhlasu s uložením a zpracováním poskytnutých dat lze e-mailem na info@bydlisnami.cz. V případě podezření na neoprávněné použití Vámi poskytnutých údajů máte právo předat podnět k šetření Úřadu pro ochranu osobních údajů. Více informací
Chystáte se prodat nemovitost?
Pomůžeme Vám!
Theleadway banner

Inzerát si prohlédlo 4 lidí

Prodejce

LIVING POINT s. r. o.

LIVING POINT s. r. o.

Hlídací pes

Chcete dostávat emailem podobné nabídky prodeje bytů 2+kk v Praze 3?

Podobné nemovitosti