Prodej činžovního domu, Kutná Hora, Husova, 365 m2 (ID: 2580962)

Husova, Kutná Hora-Vnitřní Město

13 999 000 Kč /za nemovitost HYPOTÉKA od 62 567 Kč /za měsíc

(včetně poplatků, včetně provize, včetně právního servisu)

Doporučené firmy v Kutné Hoře

Informace k nemovitosti

Představujeme vám mimořádnou investiční příležitost – činžovní dům se třemi bytovými jednotkami a připraveným podkrovím pro výstavbu čtyř až pěti ateliérů, a to bez nutnosti řešit parkovací místa. Nemovitost se nachází v samotném historickém centru Kutné Hory, města zapsaného na seznamu světového dědictví UNESCO.
Podle bankovního odhadu z roku 2022 činí hodnota nemovitosti 15.000.000 Kč. Dům v současnosti generuje čistý roční výnos 6 % z nájemného, přičemž nabízí další značný potenciál růstu díky možnosti rozšíření obytné kapacity v podkroví.
Lokalita v Husově ulici zaručuje stabilní poptávku po dlouhodobém i krátkodobém pronájmu – v okolí se nachází hlavní památky, oblíbené restaurace, kulturní akce a turistické atrakce. Díky výborné dostupnosti do Prahy i dalších měst představuje tato investice bezpečné a dlouhodobě výnosné zhodnocení kapitálu.

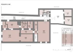
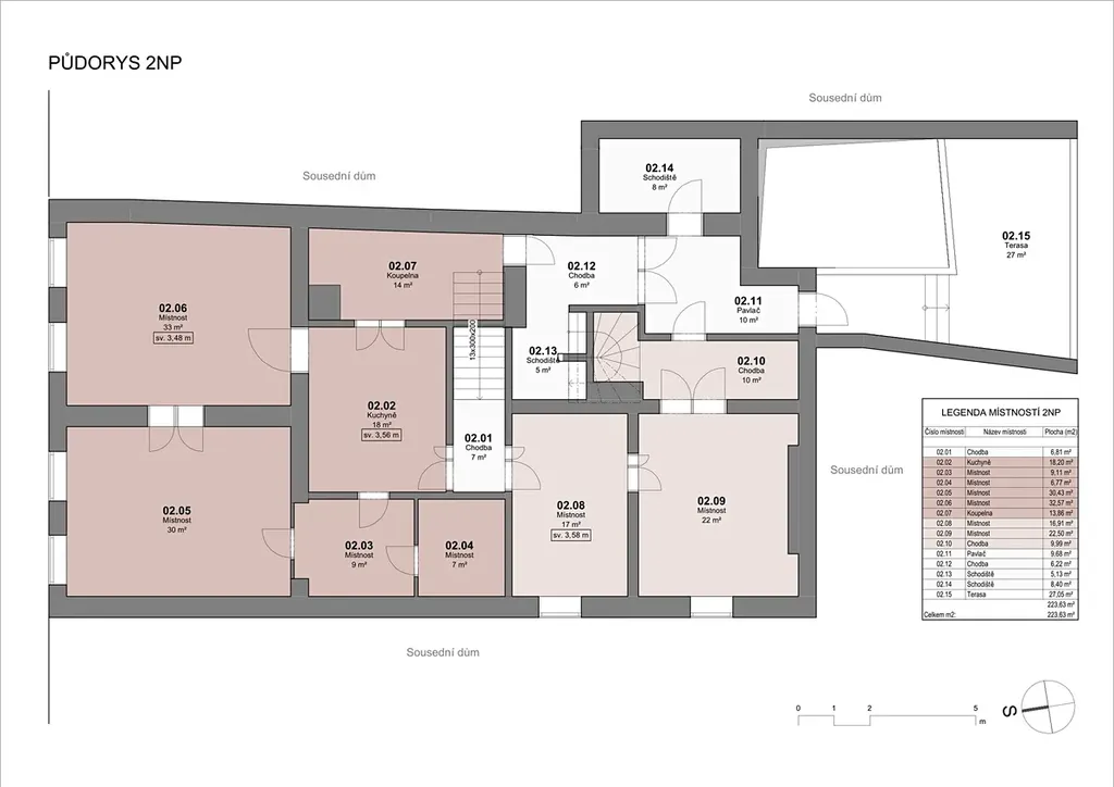
Činžovní dům je rozdělen na tři samostatné bytové jednotky, z nichž každá má vlastní vstup:
1. NP: Byt 1+1 (120 m²), vzniklý v roce 2020 přestavbou původní vinárny na moderní stylové bydlení.
2. NP: Byt 1+1 (72 m²) s terasou/pavlačí o velikosti 30 m², která poskytuje příjemný venkovní prostor k posezení.
3. NP: Prostorný byt 4+1 (108 m²), vhodný pro rodinné bydlení nebo náročnější nájemníky.

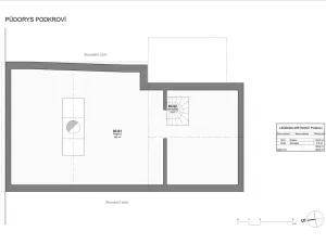
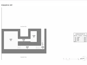
Podkroví je připraveno pro výstavbu čtyř až pěti ateliérů, které mohou výrazně navýšit výnos z pronájmu i celkovou hodnotu nemovitosti. Součástí domu je také unikátní historický sklep o velikosti 42 m², ideální pro zřízení vinného sklepa nebo soukromého klubu pro nájemníky.
Dům je napojen na veškeré inženýrské sítě a disponuje moderním plynovým vytápěním, které zajišťuje komfortní a ekonomický provoz.
V posledních letech prošel několika zásadními rekonstrukcemi: oprava střechy v roce 2014, modernizace přízemního bytu a uliční fasády v roce 2020. Celkový technický stav nemovitosti umožňuje okamžité pokračování v nájemním provozu bez nutnosti dalších zásadních investic.
Tento činžovní dům představuje výjimečnou kombinaci historického charakteru, stabilního výnosu a růstového potenciálu. Ideální pro investory, kteří hledají nemovitost s jasnou návratností i dlouhodobou perspektivou.
Součástí nabídky jsou aktuální půdorysy pro lepší orientaci. Nemovitost je možné financovat hypotečním úvěrem – v případě zájmu zajistíme i profesionální asistenci při vyřízení financování.

Kontaktujte nás pro více informací a sjednejte si prohlídku.
Tato exkluzivní nabídka spojuje historii, výnos a jedinečnou polohu – investice, která se na trhu objevuje jen výjimečně.

Parametry nemovitosti

Cena
13 999 000 Kč /za nemovitost Spočítat hypotéku
Poznámka k ceně
včetně poplatků, včetně provize, včetně právního servisu
Aktualizováno
22. 3. 2026
Adresa
Husova, Kutná Hora-Vnitřní Město
ID
00050
Stavba
Cihlová
Stav objektu
Dobrý
Vybaveno
Částečně
Lokalita objektu
Centrum obce
Užitná plocha
365 m2
Plyn
Plynovod
Odpad
Veřejná kanalizace
Komunikace
Dlážděná, Asfaltová
Telekomunikace
Internet
Doprava
Silnice, MHD, Autobus
Voda
Vodovod
Topné těleso
Radiátory
Zdroj topení
Plynový kondenzační kotel
Zdroj teplé vody
Plynový kondenzační kotel, Bojler - elektro, Bojler - plyn
Výtah

Kontaktovat makléře

Máte zájem o tuto nemovistost?

Tímto, v souladu s nařízením Evropského parlamentu a Rady (EU) 2016/679, v platném znění, prohlašuji, že mi je alespoň 16 let a uděluji tak svůj souhlas se zpracováním zadaných údajů (jméno, telefon, e-mail, ip adresa) společnosti B3 Technology, s.r.o., IČ: 07330600, se sídlem Novostavby 126/23, 435 11 Lom (správce dat), za účelem předání dotazu z tohoto formuláře Vámi vybranému inzerentovi a zpětného kontaktování mé osoby. Osobní údaje bude správce zpracovávat manuálně i automaticky přímo prostřednictvím svých zaměstnanců. Informace předané tímto formulářem budou uloženy v databázi správce maximálně po dobu 10 let. Odvolání souhlasu s uložením a zpracováním poskytnutých dat lze e-mailem na info@bydlisnami.cz. V případě podezření na neoprávněné použití Vámi poskytnutých údajů máte právo předat podnět k šetření Úřadu pro ochranu osobních údajů. Více informací
Chystáte se prodat nemovitost?
Pomůžeme Vám!

Inzerát si prohlédlo 0 lidí

Prodejce

Romana Pauš

Romana Pauš

Hlídací pes

Chcete dostávat emailem podobné nabídky prodeje činžovních domů v Kutné Hoře?

Podobné nemovitosti