Prodej domu, Kutná Hora, Husova, 365 m2 (ID: 2580963)

Husova, Kutná Hora-Vnitřní Město

13 999 000 Kč /za nemovitost HYPOTÉKA od 62 567 Kč /za měsíc

(včetně poplatků, včetně provize, včetně právního servisu)

Doporučené firmy v Kutné Hoře

Informace k domu

Představujeme vám jedinečnou příležitost ke koupi rodinného domu se třemi bytovými jednotkami a možností půdní vestavby čtyř až pěti ateliérů, a to bez nutnosti řešení parkovacích míst – ideální investice v samotném srdci Kutné Hory, města zapsaného na seznamu světového dědictví UNESCO.
Bankovní odhad na 15.000.000 Kč z roku 2022. Tato nabídka přináší nejen okamžitý čistý roční výnos 6 % z aktuálního nájemného, ale také obrovský potenciál rozvoje díky připravenému podkroví pro další rozšíření bytových kapacit.
Nemovitost se nachází v Husově ulici v historickém centru města, v blízkosti hlavních památek, restaurací a kulturních atrakcí. Kutná Hora je známá bohatým turistickým ruchem, vysokou poptávkou po ubytování a vynikající dostupností do Prahy i dalších měst. Tato lokalita nabízí skvělou příležitost nejen pro rezidenční bydlení, ale i pro krátkodobé a dlouhodobé pronájmy.
Rodinný dům je rozdělen na tři samostatné bytové jednotky, přičemž každé patro včetně podkroví má vlastní samostatný vstup. Toto uspořádání podtrhuje budoucí investiční potenciál nemovitosti.
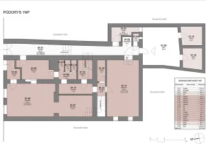
1. NP: Byt 1+1 s užitnou plochou 120 m², přeměněný v roce 2020 z původní vinárny na stylové bydlení.
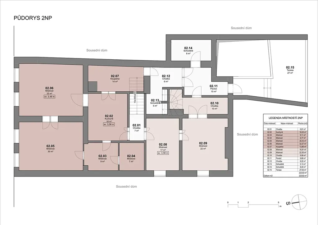
2. NP: Byt 1+1 (72 m²) s terasou/pavlačí o rozloze 30 m² – skvělý prostor pro relaxaci či posezení.
3. NP: Prostorný byt 4+1 o velikosti 108 m², vhodný pro rodinné bydlení nebo náročnější nájemníky.
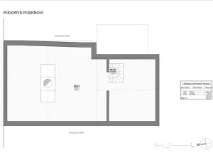
Podkroví domu nabízí možnost vybudování čtyř až pěti ateliérů, které poskytnou flexibilní využití bez potřeby zajištění parkovacích míst – ideální řešení pro centrum města.
Nemovitost zahrnuje unikátní historický sklep o velikosti 42 m², který nabízí široké možnosti využití – od vinného sklepa po stylové prostory pro soukromé akce. Moderní plynové vytápění zajišťuje ekonomický a komfortní provoz domu. Dům prošel významnými rekonstrukcemi – v roce 2014 byla opravena střecha, v roce 2020 pak modernizace přízemního bytu a dalších částí nemovitosti včetně uliční fasády.
Rodinný dům je ideální kombinací stabilního výnosu a vysokého růstového potenciálu. Historické prostředí, výhodná poloha a možnosti rozšíření činí tuto nemovitost perfektní volbou pro investory hledající zhodnocení kapitálu.

Proč právě tato nabídka?
Bankovní odhad na 15.000.000 Kč z roku 2022
Stabilní čistý výnos 6 % ročně
Možnost vytvoření čtyř až pěti ateliérů v podkroví
Samostatný vstup do každého patra, což zvyšuje flexibilitu a výnosový potenciál
Lokalita s vysokou poptávkou po bydlení i ubytovacích službách

Kontaktujte nás pro více informací a sjednejte si prohlídku. Tato exkluzivní nemovitost je investicí, která spojuje historii, styl a výnos v jednom. Součástí inzerátu jsou aktuální půdorysy pro lepší orientaci. Nemovitost je možné financovat klasickým hypotečním úvěrem, což zvyšuje její atraktivitu pro investory. Samozřejmostí je možnost profesionální pomoci při vyřízení financování.
Nepromeškejte tuto příležitost v jedné z nejkrásnějších lokalit České republiky!

Parametry domu

Cena
13 999 000 Kč /za nemovitost Spočítat hypotéku
Poznámka k ceně
včetně poplatků, včetně provize, včetně právního servisu
Aktualizováno
22. 3. 2026
Adresa
Husova, Kutná Hora-Vnitřní Město
ID
00037
Stavba
Cihlová
Stav objektu
Dobrý
Vybaveno
Částečně
Druh objektu
Řadový
Lokalita objektu
Centrum obce
Užitná plocha
365 m2
Plocha pozemku
288 m2
Plyn
Plynovod
Odpad
Veřejná kanalizace
Komunikace
Dlážděná, Asfaltová
Telekomunikace
Internet
Doprava
Silnice, MHD, Autobus
Voda
Vodovod
Topné těleso
Radiátory
Zdroj topení
Plynový kondenzační kotel
Zdroj teplé vody
Plynový kondenzační kotel, Bojler - elektro, Bojler - plyn
Sklep
Výtah

Kontaktovat makléře

Máte zájem o tento dům?

Tímto, v souladu s nařízením Evropského parlamentu a Rady (EU) 2016/679, v platném znění, prohlašuji, že mi je alespoň 16 let a uděluji tak svůj souhlas se zpracováním zadaných údajů (jméno, telefon, e-mail, ip adresa) společnosti B3 Technology, s.r.o., IČ: 07330600, se sídlem Novostavby 126/23, 435 11 Lom (správce dat), za účelem předání dotazu z tohoto formuláře Vámi vybranému inzerentovi a zpětného kontaktování mé osoby. Osobní údaje bude správce zpracovávat manuálně i automaticky přímo prostřednictvím svých zaměstnanců. Informace předané tímto formulářem budou uloženy v databázi správce maximálně po dobu 10 let. Odvolání souhlasu s uložením a zpracováním poskytnutých dat lze e-mailem na info@bydlisnami.cz. V případě podezření na neoprávněné použití Vámi poskytnutých údajů máte právo předat podnět k šetření Úřadu pro ochranu osobních údajů. Více informací
Chystáte se prodat nemovitost?
Pomůžeme Vám!

Inzerát si prohlédlo 0 lidí

Prodejce

Romana Pauš

Romana Pauš

Hlídací pes

Chcete dostávat emailem podobné nabídky prodeje domů v Kutné Hoře?

Top nabídky

Podobné nemovitosti