Prodej bytu 3+kk, Beroun - Beroun-Město, Nepilova, 115 m2 (ID: 2581000)

Nepilova, Beroun-Město

11 000 000 Kč /za nemovitost HYPOTÉKA od 49 163 Kč /za měsíc

(včetně provize i právního servisu)

Doporučené firmy v Berouně

Pojištění a finance

Informace k bytu

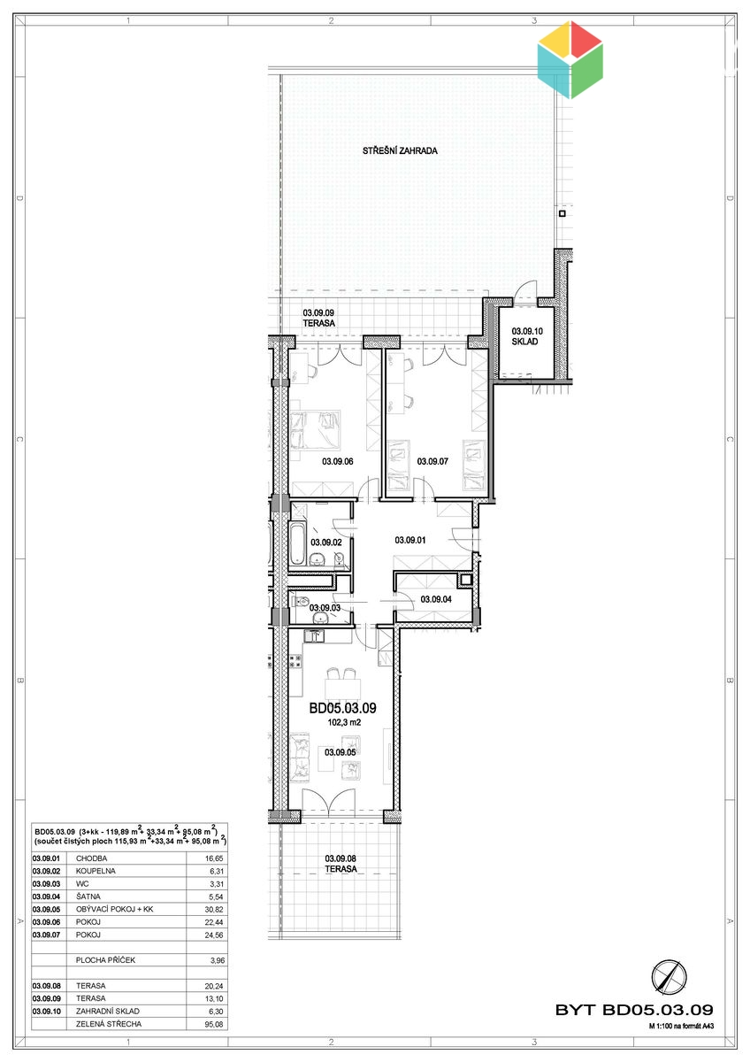
Máme pro Vás k prodeji novotou vonící byt 3+kk o luxusní výměře 115 m2. Nad ostatními nabídkami vyniká tím, že má zelenou terasu s vysázenými sukulenty a vydlážděným prostorem pro zahradní nábytek. Z terasy je přístup do praktického zahradního zděného skladu. Navíc k bytu patří ještě druhá terasa, celkem tak máte cca 120 m2 venkovního prostoru k osobnímu užívání. A pozor - v ceně je už zahrnuta sklepní koje a také garážové stání v suterénu domu.

Tento jedinečný byt s výhodami rodinného domu byl právě kolaudován. Nachází se v novém bytovém domě v ul. Nepilova v Berouně.
Architekt byt navrhl na celou šířku domu, získáte tím terasu orientovanou na severozápad a druhou na jihovýchod a můžete si tak svobodně vybírat, jestli se chcete slunit nebo skrýt do stínu. Obzvláště jižní terasa je velmi slunečná a soukromí zajišťuje horní balkon, který terasu částečně kryje.

Plocha bytu je rozvržena velmi prakticky, v bytě je prostorná chodba, samozřejmostí je šatna, koupelna s toaletou i druhý samostatný záchod. Obě ložnice jsou velmi světlé, s velkými francouzskými okny, mají vstup na terasu. Na druhou terasu je přístup z obývacího pokoje.
Byt najdete na 3. NP z celkem 5 NP, dům je bezbariérový, s výtahem, kterým si do svého patra vyjedete přímo z garáží. Tam na Vás čeká vlastní parkovací místo.
Další parkovací místo v garáži lze dokoupit za 395.000 Kč.

Lokalita "Na Máchovně" je v Berouně velmi oblíbená mladými rodinami. Obchody jsou v pěší vzdálenosti, kousek to máte na autobus MHD i s přímými spoji do Prahy, nájezd na dálnici Praha-Plzeň je 1,5 km daleko, nedaleko je nové koupaliště, velké sportovní centrum Eden, do historického centra města je to procházkou do 20 minut. Nedaleko jsou i mateřské a základní školy, Beroun má skvělou občanskou vybavenost. Přímo v lokalitě se staví státní školka, jsou tu hned dvě dětská hřiště, obchody, i přírodu máte nadosah - z oken se díváte na zelené kopce ohraničující bytovou zástavbu. S financováním Vám případně pomůže náš šikovný hypoteční specialista.
Dům je těsně po kolaudaci a všechny ostatní byty jsou už prodané, první majitelé se stěhují do svých nových domovů. Dopřejte si nadstandardní venkovní i vnitřní prostor, jistotu parkování, blízkost Prahy a nové vybavení, které dlouho vydrží bez potřeby dalších investic. Jestli hledáte do budoucna bydlení pro svoji rodinu nebo máte zájem o kvalitní investici - neváhejte s prohlídkou.

Parametry bytu

Cena
11 000 000 Kč /za nemovitost Spočítat hypotéku
Poznámka k ceně
včetně provize i právního servisu
Aktualizováno
7. 5. 2026
Adresa
Nepilova, Beroun-Město
ID
6370
Stavba
Smíšená
Stav objektu
Novostavba
Patro
3. z 5
Vybaveno
Ne
Lokalita objektu
Okraj obce
Vlastnictví
Osobní
Užitná plocha
115 m2
Třída energetické náročnosti
B - Velmi úsporná
Odpad
Veřejná kanalizace
Komunikace
Asfaltová
Doprava
Dálnice, MHD, Autobus
Voda
Vodovod
Garáž
Sklep
Terasa
Výtah

Kontaktovat makléře

Máte zájem o tento byt?

Tímto, v souladu s nařízením Evropského parlamentu a Rady (EU) 2016/679, v platném znění, prohlašuji, že mi je alespoň 16 let a uděluji tak svůj souhlas se zpracováním zadaných údajů (jméno, telefon, e-mail, ip adresa) společnosti B3 Technology, s.r.o., IČ: 07330600, se sídlem Novostavby 126/23, 435 11 Lom (správce dat), za účelem předání dotazu z tohoto formuláře Vámi vybranému inzerentovi a zpětného kontaktování mé osoby. Osobní údaje bude správce zpracovávat manuálně i automaticky přímo prostřednictvím svých zaměstnanců. Informace předané tímto formulářem budou uloženy v databázi správce maximálně po dobu 10 let. Odvolání souhlasu s uložením a zpracováním poskytnutých dat lze e-mailem na info@bydlisnami.cz. V případě podezření na neoprávněné použití Vámi poskytnutých údajů máte právo předat podnět k šetření Úřadu pro ochranu osobních údajů. Více informací
Chystáte se prodat nemovitost?
Pomůžeme Vám!
Theleadway banner

Inzerát si prohlédlo 3 lidí

Prodejce

Jitka Lišková

Jitka Lišková

Hlídací pes

Chcete dostávat emailem podobné nabídky prodeje bytů 3+kk v Berouně?

Podobné nemovitosti