Prodej bytu 2+1, Liberec, Na Perštýně, 94 m2 (ID: 2581156)

Na Perštýně, Liberec IV-Perštýn

5 030 000 Kč /za nemovitost HYPOTÉKA od 22 481 Kč /za měsíc
Doporučené firmy v Liberci

Rekonstrukce

Úklidové služby

Informace k bytu

Vítejte v Liberci.

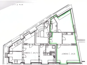
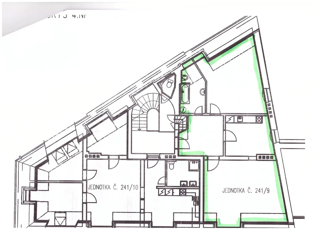
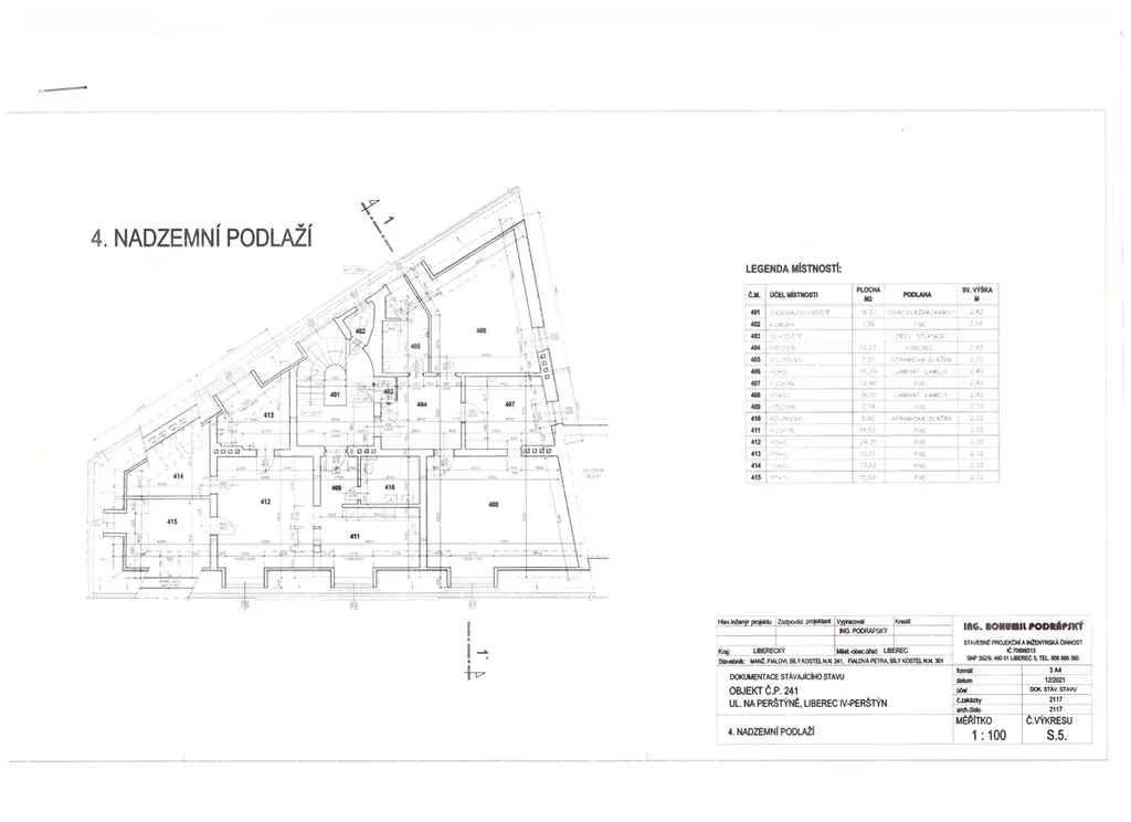
Nabízím vám ke koupi prostornou bytovou jednotku o výměře 94 m², situovanou v historické části Liberce, v docházkové vzdálenosti od samotného centra města.

Byt prošel v roce 2025 významnou modernizací – bylo instalováno nové topení, osazena nová okna v obývacím pokoji, ložnici a kuchyni, dále byla pořízená nová kuchyňská linka včetně sporáku. V koupelně je nainstalovaný nový kotel, který zajišťuje komfortní a úsporný provoz domácnosti.


Dle dohody může v bytě zůstat veškeré vybavení a nábytek, což umožňuje okamžité nastěhování bez dalších investic.

K bytu náleží půdní prostor nad bytem. Vchod na půdu, schodiště a přístup ke střešnímu výlezu je společná část domu. Je možné rozšíření bytu do půdy (mezonet). Jen pokud by se zasahovalo do střechy atd., je nutný souhlas Společenství vlastníků.

Fond oprav činí 1.172,-Kč. Celkově se za byt momentálně platí 3.252,-Kč.

Lokalita nabízí kompletní občanskou vybavenost – v bezprostředním okolí se nachází obchody, kavárny, restaurace, školy i zastávky městské hromadné dopravy. Spojení historického kouzla, centra města a modernizovaného bydlení vytváří velmi atraktivní nabídku.

Pokud vás nabídka zaujala, ozvěte se mi, domluvíme se na prohlídce.

Parametry bytu

Cena
5 030 000 Kč /za nemovitost Spočítat hypotéku
Aktualizováno
22. 3. 2026
Adresa
Na Perštýně, Liberec IV-Perštýn
Stavba
Cihlová
Stav objektu
Dobrý
Patro
4.
Lokalita objektu
Klidná část obce
Vlastnictví
Osobní
Užitná plocha
94 m2
Třída energetické náročnosti
F - Velmi nehospodárná
Elektřina
230V
Plyn
Plynovod
Odpad
Veřejná kanalizace
Komunikace
Asfaltová
Doprava
Dálnice, Silnice, MHD, Autobus
Voda
Vodovod
Topné těleso
Radiátory

Kontaktovat makléře

Realitní kancelář

LM- REALITY

tř. Václava Klementa 467, Mladá Boleslav II

Chystáte se prodat nemovitost?
Pomůžeme Vám!

Máte zájem o tento byt?

Tímto, v souladu s nařízením Evropského parlamentu a Rady (EU) 2016/679, v platném znění, prohlašuji, že mi je alespoň 16 let a uděluji tak svůj souhlas se zpracováním zadaných údajů (jméno, telefon, e-mail, ip adresa) společnosti B3 Technology, s.r.o., IČ: 07330600, se sídlem Novostavby 126/23, 435 11 Lom (správce dat), za účelem předání dotazu z tohoto formuláře Vámi vybranému inzerentovi a zpětného kontaktování mé osoby. Osobní údaje bude správce zpracovávat manuálně i automaticky přímo prostřednictvím svých zaměstnanců. Informace předané tímto formulářem budou uloženy v databázi správce maximálně po dobu 10 let. Odvolání souhlasu s uložením a zpracováním poskytnutých dat lze e-mailem na info@bydlisnami.cz. V případě podezření na neoprávněné použití Vámi poskytnutých údajů máte právo předat podnět k šetření Úřadu pro ochranu osobních údajů. Více informací
Chystáte se prodat nemovitost?
Pomůžeme Vám!

Inzerát si prohlédlo 1 lidí

Prodejce

Ludmila Műnzerová

Ludmila Műnzerová

Hlídací pes

Chcete dostávat emailem podobné nabídky prodeje bytů 2+1 v Liberci?

Podobné nemovitosti