Prodej bytu 2+1, Zubří, Hlavní, 80 m2

Hlavní, Zubří

Doporučené firmy v Zubří

Pojištění a finance

Informace k bytu

Prodej bytu 2+1 Zubří

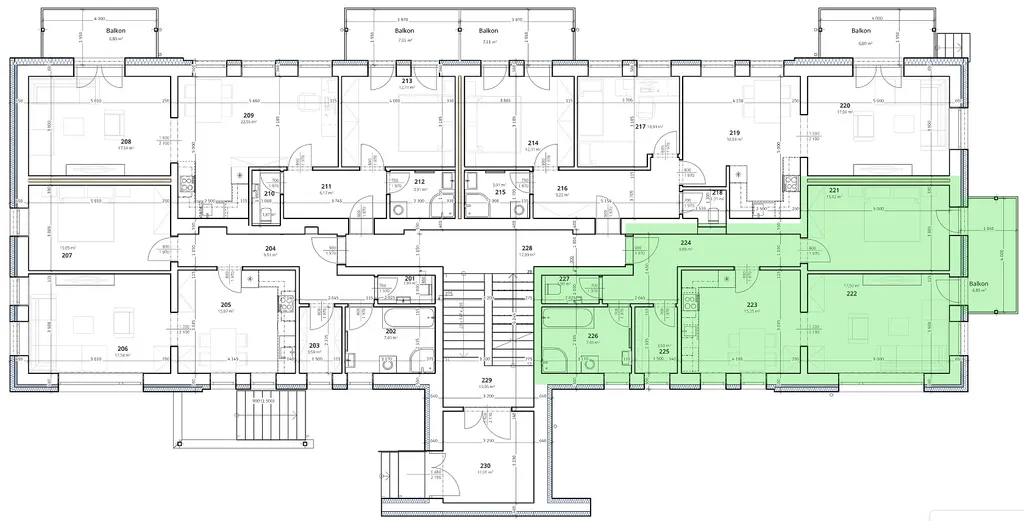
Nabízíme k prodeji jeden z bytů, který je součástí projektu Zubří 823. Nabízený byt 2+1 o celkové ploše 80 m?, který má podlahovou plochu 73 m² + balkón o ploše 6,8 m² je navržen s důrazem na funkčnost, přirozené světlo a pohodlí. Samozřejmostí je moderní vybavení, kvalitní podlahy, keramické obklady, sanita i příprava na kuchyňskou linku. Součástí bytu je balkon s krásným výhledem, který poskytuje příjemné místo pro odpočinek či ranní kávu. K bytové jednotce náleží i jedno parkovací stání.

Jednotka se skládá ze vstupní chodby, koupelny, samostatného WC, prostorné kuchyně a dvou samostatných pokojů s výstupem na balkon. K bytu náleží komora – sklep o ploše 2 m?.

V budově jsou umístěny dva kondenzační kotle, které se starají o dodávku teplé vody a vytápěni objektu. Pro podporu teplé vody a podlahového topení bude v objektu instalován beztlaký solární systém včetně 3 akumulačních nádob.

Bytový dům se nachází na adrese: Hlavní 823, Zubří, v Chráněné krajinné oblasti Moravskoslezské Beskydy, asi 3 km západně od Rožnova pod Radhoštěm. Zubří se rozkládá v blízkosti Rožnovské Bečvy a nabízí především zeleň a přírodu. Jsou zde k dispozici ubytovací i restaurační zařízení, kino, venkovní koupaliště, venkovní sportoviště, sportovní krytá hala, ale i základní či mateřská škola nebo autobusová i vlaková zastávka

Lokalita je vhodná pro všechny, kteří hledají moderní bydlení na dosah přírody, v klidné lokalitě, ale zároveň s dobrou dostupností do okolních měst. Do Rožnova pod Radhoštěm je možné dojet autem za 5 minut, do Valašského Meziříčí za 10 minut.

Projekt nabízí moderní, pohodlné a dostupné bydlení v blízkosti malebného města Rožnov pod Radhoštěm. Tento nový bytový dům je ideální volbou jak pro jednotlivce a páry, tak i pro mladé rodiny, seniory či investory hledající atraktivní nemovitost v žádané lokalitě. Projekt Zubří 823 kombinuje moderní architekturu, kvalitní materiály a praktické dispozice jednotek s výhodami městského života a blízkostí přírody. Vše, co potřebujete ke spokojenému bydlení, máte doslova na dosah ruky. V nabídce jsou i byty o dispozicích 2+1, 3+kk a 3+1. Financování vám pomůže vyřešit náš úvěrový specialista. Uveřejněné vizualizace a jiná vyobrazení jsou pouze ilustrační. Mohou se měnit, jsou nezávazné a nepředstavují nabídku ani návrh na uzavření smlouvy.

Parametry bytu

Cena
6 390 000 Kč Spočítat hypotéku
Aktualizováno
23. 3. 2026
Adresa
Hlavní, Zubří
ID
00114
Stavba
Cihlová
Stav objektu
Novostavba
Vlastnictví
Osobní
Užitná plocha
80 m2
Třída energetické náročnosti
B - Velmi úsporná

Kontaktovat makléře

Máte zájem o tento byt?

Tímto, v souladu s nařízením Evropského parlamentu a Rady (EU) 2016/679, v platném znění, prohlašuji, že mi je alespoň 16 let a uděluji tak svůj souhlas se zpracováním zadaných údajů (jméno, telefon, e-mail, ip adresa) společnosti B3 Technology, s.r.o., IČ: 07330600, se sídlem Novostavby 126/23, 435 11 Lom (správce dat), za účelem předání dotazu z tohoto formuláře Vámi vybranému inzerentovi a zpětného kontaktování mé osoby. Osobní údaje bude správce zpracovávat manuálně i automaticky přímo prostřednictvím svých zaměstnanců. Informace předané tímto formulářem budou uloženy v databázi správce maximálně po dobu 10 let. Odvolání souhlasu s uložením a zpracováním poskytnutých dat lze e-mailem na info@bydlisnami.cz. V případě podezření na neoprávněné použití Vámi poskytnutých údajů máte právo předat podnět k šetření Úřadu pro ochranu osobních údajů. Více informací
Chystáte se prodat nemovitost?
Pomůžeme Vám!
Theleadway banner

Inzerát si prohlédlo 3 lidí

Prodejce

Realitní kancelář AZ s.r.o.

Realitní kancelář AZ s.r.o.

Hlídací pes

Chcete dostávat emailem podobné nabídky prodeje bytů 2+1 v Zubří (okr. Vsetín)?

Podobné nemovitosti