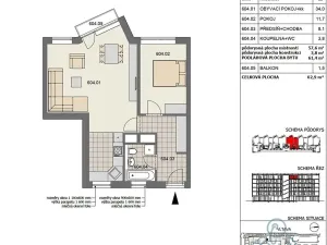
Prodej bytu 2+kk, Praha - Modřany, Mezi vodami, 61 m2

Mezi Vodami, Praha, Modřany

9 790 000 Kč /za nemovitost HYPOTÉKA od 43 755 Kč /za měsíc
Doporučené firmy v Praze 4

Stěhovací služby

Výkup a prodej starého nábytku

Informace k bytu

Nabízíme k prodeji světlý byt o dispozici 2+kk a celkové ploše 61,4 m², který se nachází v oblíbené a klidné rezidenční lokalitě Praha 4 – Modřany.
Byt je dispozičně řešen jako vstupní předsíň, prostorný obývací pokoj s kuchyňským koutem, samostatná ložnice a koupelna s vanou. Z obývací části je vstup na balkon, který nabízí příjemné místo k odpočinku. Díky dobré orientaci je byt po většinu dne krásně prosvětlený a působí velmi vzdušně.
K bytu náleží také sklepní kóje o velikosti přibližně 2 m², která poskytuje dostatek úložného prostoru.
Velkou výhodou je rovněž venkovní parkovací stání, které je určeno výhradně k tomuto bytu.
V bezprostřední blízkosti domu se nachází tramvajová zastávka s rychlým a přímým spojením do centra Prahy, což zajišťuje výbornou dopravní dostupnost.

Parametry bytu

Cena
9 790 000 Kč /za nemovitost Spočítat hypotéku
Aktualizováno
23. 3. 2026
Adresa
Mezi Vodami, Praha, Modřany
ID
0124
Stavba
Cihlová
Stav objektu
Velmi dobrý
Patro
5. z 5
Vybaveno
Ne
Vlastnictví
Osobní
Užitná plocha
61 m2
Třída energetické náročnosti
B - Velmi úsporná
Plyn
Plynovod
Odpad
Veřejná kanalizace
Balkon
Sklep
Výtah
Parkování

Kontaktovat makléře

Máte zájem o tento byt?

Tímto, v souladu s nařízením Evropského parlamentu a Rady (EU) 2016/679, v platném znění, prohlašuji, že mi je alespoň 16 let a uděluji tak svůj souhlas se zpracováním zadaných údajů (jméno, telefon, e-mail, ip adresa) společnosti B3 Technology, s.r.o., IČ: 07330600, se sídlem Novostavby 126/23, 435 11 Lom (správce dat), za účelem předání dotazu z tohoto formuláře Vámi vybranému inzerentovi a zpětného kontaktování mé osoby. Osobní údaje bude správce zpracovávat manuálně i automaticky přímo prostřednictvím svých zaměstnanců. Informace předané tímto formulářem budou uloženy v databázi správce maximálně po dobu 10 let. Odvolání souhlasu s uložením a zpracováním poskytnutých dat lze e-mailem na info@bydlisnami.cz. V případě podezření na neoprávněné použití Vámi poskytnutých údajů máte právo předat podnět k šetření Úřadu pro ochranu osobních údajů. Více informací
Chystáte se prodat nemovitost?
Pomůžeme Vám!

Inzerát si prohlédlo 1 lidí

Prodejce

Radek Procyk

Radek Procyk

Hlídací pes

Chcete dostávat emailem podobné nabídky prodeje bytů 2+kk v Praze 4?

Podobné nemovitosti