Prodej bytu 6+kk a větší, Tuchoměřice, Ke Statenicím, 347 m2

Ke Statenicím, Tuchoměřice

25 500 000 Kč /za nemovitost HYPOTÉKA od 113 970 Kč /za měsíc
Doporučené firmy v Tuchoměřicích

Informace k bytu

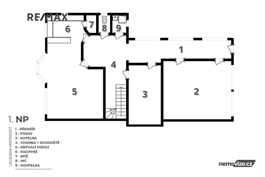
Tento dům nabízí velkorysou užitnou plochu 347 m² a dispozici 6+kk, která splní očekávání i náročnější rodiny. Nemovitost je situována na pozemku o velikosti 963 m² ve velmi žádané lokalitě Tuchoměřic a představuje ideální kombinaci prostoru, soukromí a výborné dostupnosti do Prahy.
Dominantou domu je reprezentativní obývací prostor s jídelní částí a přímým vstupem na slunnou terasu o velikosti 50 m², která plynule navazuje na pečlivě upravenou zahradu. Kuchyně je navržena s důrazem na funkčnost, estetiku a maximální komfort každodenního života.
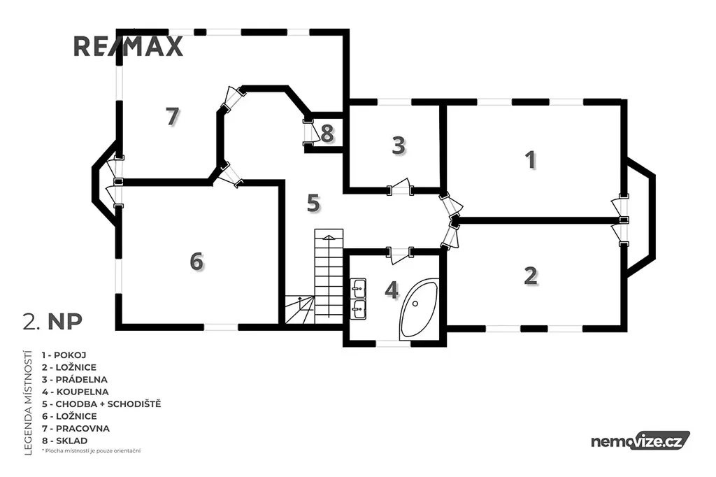
K dispozici je pět samostatných ložnic, dvě koupelny a samostatné WC. Každá ložnice má navíc vstup na balkon orientovaný do klidného okolí, což zajišťuje dostatek světla i příjemné propojení s okolní zelení. Parkování zajišťuje prostorná garáž pro dva vozy vybavená dobíjecí stanicí pro elektromobil i další stání přímo na pozemku. Standardem jsou dřevěná eurookna, podlahy kombinující vinyl a dlažbu, vytápění je řešeno plynovým kotlem.
Velkým benefitem je lokalita Tuchoměřic – vyhledávaná a prestižní oblast na Praze-západ. V bezprostřední blízkosti se nachází les ideální pro relax i aktivní odpočinek, zároveň máte výbornou dostupnost do Prahy a blízkost mezinárodní školy. Minutu chůze od domu je autobusová zastávka s přímým spojením. V pěší dostupnosti se navíc nachází populární outletové centrum POP Airport s širokou nabídkou obchodů, kaváren a služeb.
Tuchoměřice kombinují přírodní prostředí s kompletní občanskou vybaveností – najdete zde mateřskou i základní školu, obchody, restaurace i možnosti sportovního vyžití. Centrum Prahy i letiště Václava Havla jsou vzdáleny přibližně 20 minut jízdy. Prodávající si vyhrazuje právo vybrat kupujícího na základě jím zvolených kritérií.

Parametry bytu

Cena
25 500 000 Kč /za nemovitost Spočítat hypotéku
Aktualizováno
26. 3. 2026
Adresa
Ke Statenicím, Tuchoměřice
ID
0218-NP07039
Stavba
Cihlová
Stav objektu
Velmi dobrý
Patro
2. z 2
Vybaveno
Částečně
Vlastnictví
Osobní
Užitná plocha
347 m2
Zastavěná plocha
177 m2
Podlahová plocha
347 m2
Plocha zahrady
963 m2
Třída energetické náročnosti
D - Méně úsporná
Plyn
Individuální
Odpad
Veřejná kanalizace
Komunikace
Asfaltová
Telekomunikace
Telefon, Internet, Satelit
Doprava
Vlak, Dálnice, Silnice, MHD, Autobus
Voda
Vodovod
Topné těleso
Radiátory
Zdroj teplé vody
Plynový kondenzační kotel
Garáž
Parkování

Kontaktovat makléře

Máte zájem o tento byt?

Tímto, v souladu s nařízením Evropského parlamentu a Rady (EU) 2016/679, v platném znění, prohlašuji, že mi je alespoň 16 let a uděluji tak svůj souhlas se zpracováním zadaných údajů (jméno, telefon, e-mail, ip adresa) společnosti B3 Technology, s.r.o., IČ: 07330600, se sídlem Novostavby 126/23, 435 11 Lom (správce dat), za účelem předání dotazu z tohoto formuláře Vámi vybranému inzerentovi a zpětného kontaktování mé osoby. Osobní údaje bude správce zpracovávat manuálně i automaticky přímo prostřednictvím svých zaměstnanců. Informace předané tímto formulářem budou uloženy v databázi správce maximálně po dobu 10 let. Odvolání souhlasu s uložením a zpracováním poskytnutých dat lze e-mailem na info@bydlisnami.cz. V případě podezření na neoprávněné použití Vámi poskytnutých údajů máte právo předat podnět k šetření Úřadu pro ochranu osobních údajů. Více informací
Chystáte se prodat nemovitost?
Pomůžeme Vám!

Inzerát si prohlédlo 0 lidí

Prodejce

Marcela Hirschhorn

Marcela Hirschhorn

Hlídací pes

Chcete dostávat emailem podobné nabídky prodeje bytů 6+kk a větší v Tuchoměřicích?

Podobné nemovitosti