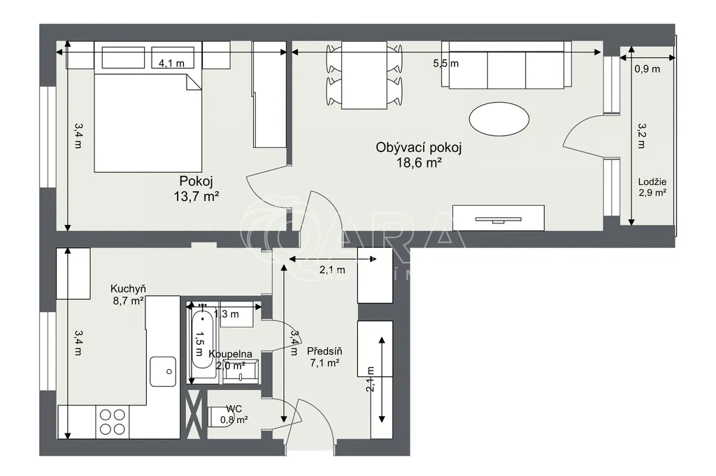
Prodej bytu 2+1, Praha - Strašnice, Kružberská, 51 m2

Kružberská, Praha 10

7 390 000 Kč /za nemovitost HYPOTÉKA od 33 029 Kč /za měsíc
Doporučené firmy v Praze 10

Stěhovací služby

Výkup a prodej starého nábytku

Informace k bytu

Hledáte bydlení v klidné a žádané lokalitě? Nabízím k prodeji světlý byt 2+1 o výměře 51,1 m² v pražských Strašnicích. K bytu náleží lodžie (2,8 m²), která je přístupná z obývacího pokoje a sklep (2 m²).

Samotný byt je v udržovaném stavu se zděným jádrem. Případně je připraven pro úpravy a modernizace dle vlastních představ nového majitele. Byt má prostornou předsíň (7,2 m²), kde lze vytvořit dostatek úložných prostor. WC a koupelna jsou oddělené. Měsíční náklady na bydlení činí 2 409 Kč (plus elektřina a plyn dle dodavatele).

Lokalita Strašnic patří mezi žádané části Prahy díky skvělé kombinaci klidného prostředí a dobré dostupnosti do centra. Stanice metra Strašnická je vzdálena pouhých 5 minut chůze. V okolí se nachází kompletní občanská vybavenost - obchody, restaurace, školy, školky i sportovní a volnočasové vyžití.

Cena bytu je 7 390 000,- Kč, včetně provize, právního servisu, bezpečné úschovy a všech poplatků. Byt je možné financovat hypotékou, s čímž vám rád pomůže náš hypoteční specialista. Pro více informací nebo domluvení prohlídky mě neváhejte kontaktovat.

Parametry bytu

Cena
7 390 000 Kč /za nemovitost Spočítat hypotéku
Aktualizováno
26. 3. 2026
Adresa
Kružberská, Praha 10
ID
1106
Stavba
Panelová
Stav objektu
Velmi dobrý
Patro
3. z 5
Vybaveno
Ne
Lokalita objektu
Centrum obce
Vlastnictví
Osobní
Užitná plocha
51 m2
Podlahová plocha
55 m2
Třída energetické náročnosti
E - Nehospodárná
Ukazatel energetické náročnosti
198 kWh/m2 za rok
Elektřina
230V
Plyn
Plynovod
Odpad
Veřejná kanalizace
Komunikace
Asfaltová
Voda
Vodovod
Sklep
Lodžie

Kontaktovat makléře

Realitní kancelář

Logo QARA, s.r.o.

QARA, s.r.o.

Šafaříkova 201/17, Praha

Chystáte se prodat nemovitost?
Pomůžeme Vám!

Máte zájem o tento byt?

Tímto, v souladu s nařízením Evropského parlamentu a Rady (EU) 2016/679, v platném znění, prohlašuji, že mi je alespoň 16 let a uděluji tak svůj souhlas se zpracováním zadaných údajů (jméno, telefon, e-mail, ip adresa) společnosti B3 Technology, s.r.o., IČ: 07330600, se sídlem Novostavby 126/23, 435 11 Lom (správce dat), za účelem předání dotazu z tohoto formuláře Vámi vybranému inzerentovi a zpětného kontaktování mé osoby. Osobní údaje bude správce zpracovávat manuálně i automaticky přímo prostřednictvím svých zaměstnanců. Informace předané tímto formulářem budou uloženy v databázi správce maximálně po dobu 10 let. Odvolání souhlasu s uložením a zpracováním poskytnutých dat lze e-mailem na info@bydlisnami.cz. V případě podezření na neoprávněné použití Vámi poskytnutých údajů máte právo předat podnět k šetření Úřadu pro ochranu osobních údajů. Více informací
Chystáte se prodat nemovitost?
Pomůžeme Vám!

Inzerát si prohlédlo 0 lidí

Prodejce

Vojtěch Gřunděl

Vojtěch Gřunděl

Hlídací pes

Chcete dostávat emailem podobné nabídky prodeje bytů 2+1 v Praze 10?

Podobné nemovitosti