Prodej bytu 2+1, Prostějov, Kostelecká, 33 m2

Kostelecká, Prostějov

2 200 000 Kč /za nemovitost HYPOTÉKA od 9 833 Kč /za měsíc
Doporučené firmy v Prostějově

Pojištění a finance

Informace k bytu

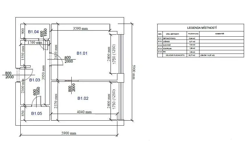
Nabízíme k prodeji bytovou jednotku o dispozici 2+1 a celkové podlahové ploše 33,77 m². Nemovitost se nachází v klidném bytovém domě na ulici Kostelecká, v lokalitě s výbornou dostupností do historického centra města Prostějova (jen 5 minut chůze na náměstí). Dispozice bytu zahrnuje kuchyni, ze které se vchází do obývacího pokoje a dále do ložnice. Součástí je koupelna a samostatné WC. Vytápění bytu zajišťuje nový vlastní elektrokotel s využitím výhodné dvoutarifní sazby (tzv. noční proud) díky kterému máte náklady i tepelný komfort plně pod kontrolou. Nízký tarif platí pro všechny spotřebiče v bytě (pračku, myčku atd.), díky tomu jsou provozní náklady velmi příznivé. Ohřev vody řeší samostatný bojler. K bytu náleží také praktická komora pro uložení sezónních věcí a podíl na půdním prostoru 8 m2.
Dům se nachází v širším centru města s veškerou občanskou vybaveností v docházkové vzdálenosti. Velkou výhodou je možnost
pronájmu parkovacího místa v bezprostřední blízkosti domu.

Parametry bytu

Cena
2 200 000 Kč /za nemovitost Spočítat hypotéku
Aktualizováno
23. 4. 2026
Adresa
Kostelecká, Prostějov
ID
N00086
Stavba
Panelová
Stav objektu
Před rekonstrukcí
Patro
1. z 4
Vybaveno
Ne
Lokalita objektu
Centrum obce
Vlastnictví
Osobní
Užitná plocha
33 m2
Podlahová plocha
33 m2
Třída energetické náročnosti
G - Mimořádně nehospodárná
Odpad
Veřejná kanalizace
Topení
Lokální elektrické
Voda
Vodovod
Zdroj topení
Elektrokotel
Zdroj teplé vody
Bojler - elektro
Sklep

Kontaktovat makléře

Máte zájem o tento byt?

Tímto, v souladu s nařízením Evropského parlamentu a Rady (EU) 2016/679, v platném znění, prohlašuji, že mi je alespoň 16 let a uděluji tak svůj souhlas se zpracováním zadaných údajů (jméno, telefon, e-mail, ip adresa) společnosti B3 Technology, s.r.o., IČ: 07330600, se sídlem Novostavby 126/23, 435 11 Lom (správce dat), za účelem předání dotazu z tohoto formuláře Vámi vybranému inzerentovi a zpětného kontaktování mé osoby. Osobní údaje bude správce zpracovávat manuálně i automaticky přímo prostřednictvím svých zaměstnanců. Informace předané tímto formulářem budou uloženy v databázi správce maximálně po dobu 10 let. Odvolání souhlasu s uložením a zpracováním poskytnutých dat lze e-mailem na info@bydlisnami.cz. V případě podezření na neoprávněné použití Vámi poskytnutých údajů máte právo předat podnět k šetření Úřadu pro ochranu osobních údajů. Více informací
Chystáte se prodat nemovitost?
Pomůžeme Vám!
Theleadway banner

Inzerát si prohlédlo 43 lidí

Prodejce

Marcela Zavadilová

Marcela Zavadilová

Hlídací pes

Chcete dostávat emailem podobné nabídky prodeje bytů 2+1 v Prostějově?

Podobné nemovitosti