Prodej bytu 2+kk, Otmíče, 36 m2 (ID: 2586336)

Otmíče

3 290 000 Kč /za nemovitost HYPOTÉKA od 14 704 Kč /za měsíc

(včetně provize a právního servisu)

Doporučené firmy v Otmíčích

Informace k bytu

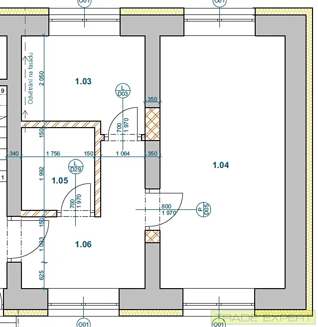
Prodej jednotky 2+kk, 36 m2, Otmíče, okr Beroun. Nebytová jednotka se nachází v 1. NP kompletně zrekonstruovaného bytového domu: Dispozice: Vstup do chodby. Z chodby vstup do koupelny se sprchovým koutem a WC. Z chodby dále vstup do dalších dvou neprůchozích místností. Jednotka má sice parametry bytové jednotky, ale je kolaudována jako nebytový prostor. Podlahy – keramická dlažba. Vytápění bytu a ohřev vody zajištuje tepelné čerpadlo Regulus. Dům je napojen na vodovod, má vlastní čističku odpadních vod. Dešťová voda se po filtraci využívá ke splachování WC. Dům je kompletně zateplen s plastovými okny s trojsklem. Vedle domu je zpevněná plocha s bránou na DO a travní plocha. K bytu je na dvoře vyhrazené parkovací stání. Dům je střežen kamerovým systémem. V obci se nachází Obecní úřad a restaurace. Další služby ve Zdicích, nebo Hořovicích. Nájezd na dálnici D5, 28. km je vzdálen 4 km od domu.

Parametry bytu

Cena
3 290 000 Kč /za nemovitost Spočítat hypotéku
Poznámka k ceně
včetně provize a právního servisu
Aktualizováno
26. 3. 2026
Adresa
Otmíče
ID
TE04012026
Stavba
Cihlová
Stav objektu
Po rekonstrukci
Patro
1. z 3
Vybaveno
Ne
Lokalita objektu
Klidná část obce
Vlastnictví
Osobní
Užitná plocha
36 m2
Zastavěná plocha
109 m2
Podlahová plocha
36 m2
Třída energetické náročnosti
A - Mimořádně úsporná
Ukazatel energetické náročnosti
43 kWh/m2 za rok
Elektřina
230V
Plyn
Plynovod
Odpad
ČOV pro celý objekt
Komunikace
Asfaltová
Telekomunikace
Internet
Doprava
Silnice, Autobus
Voda
Vodovod
Topné těleso
Radiátory
Zdroj topení
Tepelné čerpadlo
Zdroj teplé vody
Tepelné čerpadlo
Parkování

Kontaktovat makléře

Máte zájem o tento byt?

Tímto, v souladu s nařízením Evropského parlamentu a Rady (EU) 2016/679, v platném znění, prohlašuji, že mi je alespoň 16 let a uděluji tak svůj souhlas se zpracováním zadaných údajů (jméno, telefon, e-mail, ip adresa) společnosti B3 Technology, s.r.o., IČ: 07330600, se sídlem Novostavby 126/23, 435 11 Lom (správce dat), za účelem předání dotazu z tohoto formuláře Vámi vybranému inzerentovi a zpětného kontaktování mé osoby. Osobní údaje bude správce zpracovávat manuálně i automaticky přímo prostřednictvím svých zaměstnanců. Informace předané tímto formulářem budou uloženy v databázi správce maximálně po dobu 10 let. Odvolání souhlasu s uložením a zpracováním poskytnutých dat lze e-mailem na info@bydlisnami.cz. V případě podezření na neoprávněné použití Vámi poskytnutých údajů máte právo předat podnět k šetření Úřadu pro ochranu osobních údajů. Více informací
Chystáte se prodat nemovitost?
Pomůžeme Vám!

Inzerát si prohlédlo 0 lidí

Prodejce

Radek Řezníček

Radek Řezníček

Hlídací pes

Chcete dostávat emailem podobné nabídky prodeje bytů 2+kk v Otmíčích?

Podobné nemovitosti