Remax Power 2

Prodej bytu 4+kk, Stará Huť, K Lomu, 104 m2 (ID: 2586865)

K Lomu, Stará Huť

9 740 000 Kč /za nemovitost HYPOTÉKA od 43 532 Kč /za měsíc
Doporučené firmy v Staré Huti

Revize elektrických zařízení

Informace k bytu

Vítejte ve viladomě Stará Huť u Dobříše, novostavba zkolaudovaného moderního bytu 4+kk o celkové ploše 125 m2 s vlastní zahradou o velikosti 178 m2. Proč se zamilujete právě sem.
Zde se každý den probouzíte s výhledem do klidné přírody. Jedná se o cihlovou novostavbu nacházející se na okraji obce v CHKO Brdy, která vám nabízí nejen příjemné bydlení, ale i krásné okolní prostředí. V místě kde je vše co potřebujete.
Užijte si jedinečnou kombinaci klidného života v přírodě s pohodlným dojezdem do Prahy, Příbrami i Dobříše. Na Prahu se po dálnici D4 dostanete za pouhých 30 minut, zatímco centrum Dobříše s veškerou občanskou vybaveností je vzdálené jen 5 minut jízdy. Nemusíte dělat kompromisy mezi klidem, bezpečím a pohodlím.
Moderní architektura, design a kvalita domu, kterou pocítíte, zapadá do okolní krajiny.
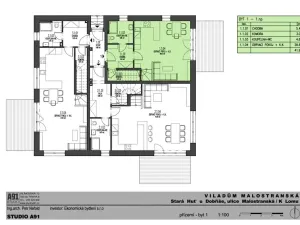
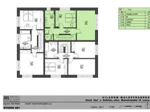
Dispozice bytu nabízí v 1NP prostorný obývací pokoj s kuchyňským koutem o výměře 28m2, schodiště do 2NP, přímý vstup na terasu a zahradu o rozloze 178m2, koupelnu se sprchovým koutem 5m2, komoru 1m2 a vstupní chodbu 5m2. Ve 2NP naleznete 2x pokoj 12m2 a 20m2, samostatnou koupelnu 6m2, samostatné wc 1m2, chodbu 10m2 a schodiště do 3NP, zde naleznete pracovnu 13m2, a 2x půdní prostory plně pochozí o celkové výměře 21m2 s možností vybudování wc s umyvadlem i sprchovým koutem.

Součástí prodejní ceny:
- dokončení povrchových úprav a zařízení druhé koupelny v 2NP, podlah, dveří a schodiště z výběru standardních zařizovacích předmětů,
- 2x parkovací stání ze zámkové dlažby, elektro příprava pro wallbox
- oplocení pozemku a zahrady s vlastním vstupem z ulice,
- příprava na osazení FVE,
- elektro příprava pro venkovní žaluzie,
- každý byt má vlastní elektroměr, vodoměr, vytápění a ohřev vody, venkovní vodovod, rozvod elektro pro možnost osvětlení terasy a zahrady, případně připojení bazénu.

Byt byl navržen s důrazem na detail a kvalitní materiály. Interiéry jsou prosvětlené díky velkoformátovým oknům, která dokonale propojují interiér s venkovní zahradou. K celkovému komfortu přispívá výběr prémiových materiálů.

Váš kousek ráje. Byt má vlastní, oddělenou zahradu, která vám poskytne dostatek soukromí pro relaxaci, grilování s přáteli nebo dětské hry. Zapomeňte na hlučné sousedy a užijte si klid a výhledy do přírody. Viladům tvoří pouhé tři jednotky, což zajišťuje maximální soukromí a pohodlí.

Stará Huť je vstupní branou do Chráněné krajinné oblasti Brd. Přímo z domu se můžete vydat na nekonečné kilometry turistických a cyklistických tras. V létě si užijete procházky podél rybníka Strž, který je ideálním místem pro relaxaci a odpočinek. V obci naleznete:
• Školy a školky pro vaše děti.
• Obchody, restaurace a služby.
• Sportovní zařízení (sportovní hala, fotbalové hřiště, kurty) pro aktivní volný čas.
• Kulturní akce a komunitní život, který vás pohltí.
V blízké Dobříši pak najdete vše, co potřebujete pro pohodlný život.
Nečekejte, až vám někdo vypráví, jaké to je žít v souladu s přírodou a moderním životem. Přijďte se podívat na vlastní oči a nechte se okouzlit místem, které se může stát vaším novým domovem.
Momentálně jsme pro vás vybudovali koupelnu v přízemí. Byli by jsme rádi, kdyby jste si design interiéru vašeho bytu vybrali sami.

K nastěhování do 2 měsíců, které potřebujeme na dokončení interiéru podle vašeho výběru, podle vašich představ a podle vašeho příběhu bydlení.
Začněte tvořit svůj domov s příběhem.
Pro více informací nebo domluvení prohlídky nás kontaktujte ještě dnes.

Parametry bytu

Cena
9 740 000 Kč /za nemovitost Spočítat hypotéku
Aktualizováno
27. 3. 2026
Adresa
K Lomu, Stará Huť
Stavba
Cihlová
Stav objektu
Novostavba
Patro
1. z 3
Vybaveno
Ne
Lokalita objektu
Okraj obce
Vlastnictví
Osobní
Užitná plocha
104 m2
Podlahová plocha
123 m2
Plocha zahrady
178 m2
Třída energetické náročnosti
B - Velmi úsporná
Plyn
Plynovod
Odpad
Veřejná kanalizace
Komunikace
Asfaltová
Doprava
Vlak, Dálnice, Silnice, MHD, Autobus
Voda
Vodovod
Zdroj topení
Plynový kondenzační kotel
Zdroj teplé vody
Plynový kondenzační kotel
Výtah
Parkování

Kontaktovat makléře

Realitní kancelář

Ekonomické bydlení, s.r.o.

náměstí Osvoboditelů 69/5a, Praha, Radotín

Chystáte se prodat nemovitost?
Pomůžeme Vám!

Máte zájem o tento byt?

Tímto, v souladu s nařízením Evropského parlamentu a Rady (EU) 2016/679, v platném znění, prohlašuji, že mi je alespoň 16 let a uděluji tak svůj souhlas se zpracováním zadaných údajů (jméno, telefon, e-mail, ip adresa) společnosti B3 Technology, s.r.o., IČ: 07330600, se sídlem Novostavby 126/23, 435 11 Lom (správce dat), za účelem předání dotazu z tohoto formuláře Vámi vybranému inzerentovi a zpětného kontaktování mé osoby. Osobní údaje bude správce zpracovávat manuálně i automaticky přímo prostřednictvím svých zaměstnanců. Informace předané tímto formulářem budou uloženy v databázi správce maximálně po dobu 10 let. Odvolání souhlasu s uložením a zpracováním poskytnutých dat lze e-mailem na info@bydlisnami.cz. V případě podezření na neoprávněné použití Vámi poskytnutých údajů máte právo předat podnět k šetření Úřadu pro ochranu osobních údajů. Více informací
Chystáte se prodat nemovitost?
Pomůžeme Vám!

Inzerát si prohlédlo 0 lidí

Prodejce

Ing. Monika Svatoňová

Ing. Monika Svatoňová

Hlídací pes

Chcete dostávat emailem podobné nabídky prodeje bytů 4+kk v Staré Huti?

Podobné nemovitosti