Prodej bytu 1+1, Prostějov, Tylova, 33 m2

Tylova, Prostějov

2 900 000 Kč /za nemovitost HYPOTÉKA od 12 961 Kč /za měsíc

(cena je včetně provize RK, smluvní dokumentace a advokátní úschovy, včetně poplatků, včetně provize, včetně právního servisu)

Doporučené firmy v Prostějově

Pojištění a finance

Informace k bytu

Rádi byste koupili startovací byt pro sebe, své děti nebo zajímavou investici? Pak by vás tato nabídka mohla oslovit.

Doporučujeme zhlédnout video-prohlídku, jejíž součástí je i virtuální staging, díky kterému si můžete lépe představit potenciál bytu a možnosti jeho úprav.

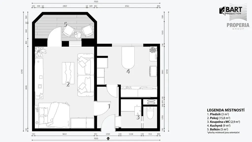
Nabízíme k prodeji byt v osobním vlastnictví o dispozici 1+1, situovaný v 6. nadzemním podlaží bytového domu s výtahem na ulici Tylova v Prostějově.

Plocha bytu dle KN činí cca 33 m², k bytu dále náleží lodžie o výměře 5 m² a sklepní koje. Dispozice bytu nabízí samostatný pokoj o velikosti 15,8 m², oddělenou kuchyni (9 m²), předsíň (3 m²) a koupelnu s WC (2,9 m²).

Byt je v původním stavu s umakartovým jádrem, což představuje ideální příležitost pro rekonstrukci dle vlastních představ.
Velkým benefitem je lodžie orientovaná na jihovýchod, která zajišťuje příjemné ranní a dopolední světlo a zároveň nabízí klidné místo k odpočinku.

Byt se nachází ve vyšším podlaží, což přináší dostatek soukromí, klid a hezký výhled do okolí.

Dům je udržovaný a ve správě aktivního společenství vlastníků. K dispozici je stabilní fond oprav. V minulosti proběhla například výměna stoupačkového vedení elektroinstalace a na letošní rok je plánována další modernizace (termoregulační prvky na otopných tělesech).

Dům disponuje vlastní plynovou kotelnou pro vytápění a ohřev vody. Zároveň je zde instalována fotovoltaická elektrárna, jejíž energie je využívána v rámci domu. Elektřina je tak součástí vyúčtování SVJ a nepřepisuje se na jednotlivé vlastníky, což zjednodušuje převod i administrativu.

Energetická náročnost budovy je třídy B – velmi úsporná.

Měsíční náklady na bydlení činí přibližně 4 400 Kč včetně elektřiny + plyn cca 350 Kč, celkem tedy cca 4 700 Kč / měsíc.
K bytu je k dispozici potvrzení o bezdlužnosti vůči SVJ.

Byt se nachází v klidné a vyhledávané části Prostějova s dobrou dostupností veškeré občanské vybavenosti. V docházkové vzdálenosti jsou obchody, služby, zastávky MHD i možnosti pro volnočasové aktivity. Parkování je možné v okolí domu.

V případě zájmu o více informací nebo prohlídku mě neváhejte kontaktovat.

Byt představuje zajímavou příležitost pro klienty, kteří hledají dostupné bydlení s možností úprav dle vlastních představ nebo investici s potenciálem následného pronájmu. Pronajmout lze i v tomto stavu, vše je plně funkční.

V případě zájmu o více informací či sjednání prohlídky mě neváhejte kontaktovat, Vaše realitní makléřka Jana Barabášová PROPERIA GROUP s.r.o.

Parametry bytu

Cena
2 900 000 Kč /za nemovitost Spočítat hypotéku
Poznámka k ceně
cena je včetně provize RK, smluvní dokumentace a advokátní úschovy, včetně poplatků, včetně provize, včetně právního servisu
Náklady na bydlení
více informací v inzerátu nabídky
Aktualizováno
26. 5. 2026
Adresa
Tylova, Prostějov
ID
03893
Stavba
Panelová
Stav objektu
Dobrý
Patro
6. z 8
Vybaveno
Částečně
Lokalita objektu
Klidná část obce
Vlastnictví
Osobní
Užitná plocha
33 m2
Podlahová plocha
33 m2
Třída energetické náročnosti
B - Velmi úsporná
Ukazatel energetické náročnosti
51 kWh/m2 za rok
Odpad
Veřejná kanalizace
Komunikace
Dlážděná, Asfaltová
Doprava
Vlak, Dálnice, Silnice, MHD, Autobus
Topné těleso
Radiátory
Sklep
Lodžie
Výtah

Kontaktovat makléře

Máte zájem o tento byt?

Tímto, v souladu s nařízením Evropského parlamentu a Rady (EU) 2016/679, v platném znění, prohlašuji, že mi je alespoň 16 let a uděluji tak svůj souhlas se zpracováním zadaných údajů (jméno, telefon, e-mail, ip adresa) společnosti B3 Technology, s.r.o., IČ: 07330600, se sídlem Novostavby 126/23, 435 11 Lom (správce dat), za účelem předání dotazu z tohoto formuláře Vámi vybranému inzerentovi a zpětného kontaktování mé osoby. Osobní údaje bude správce zpracovávat manuálně i automaticky přímo prostřednictvím svých zaměstnanců. Informace předané tímto formulářem budou uloženy v databázi správce maximálně po dobu 10 let. Odvolání souhlasu s uložením a zpracováním poskytnutých dat lze e-mailem na info@bydlisnami.cz. V případě podezření na neoprávněné použití Vámi poskytnutých údajů máte právo předat podnět k šetření Úřadu pro ochranu osobních údajů. Více informací
Chystáte se prodat nemovitost?
Pomůžeme Vám!
Theleadway banner

Inzerát si prohlédlo 85 lidí

Prodejce

Jana Barabášová

Jana Barabášová

Hlídací pes

Chcete dostávat emailem podobné nabídky prodeje bytů 1+1 v Prostějově?

Podobné nemovitosti