Dražba výrobních prostor, Frenštát pod Radhoštěm, Martinská čtvrť, 808 m2 (ID: 2595620)

Martinská čtvrť, Frenštát pod Radhoštěm

7 227 000 Kč /za nemovitost Získejte výhodnou HYPOTÉKU
Doporučené firmy v Frenštátu pod Radhoštěm

Informace k nemovitosti

Předmětem dražby je soubor následujících nemovitých věcí:

-parc.č. 1178 zastavěná plocha a nádvoří o výměře 315 m2, součástí je stavba č.p. 1706, jiná st.

-parc.č. 2741/5 ostatní plocha o výměře 279 m2

Předmětem dražby jsou nemovité věci zapsané na listu vlastnictví č. 7486 pro katastrální území Frenštát pod Radhoštěm, spočívající zejména ve zděné budově č.p. 1706 se třemi nadzemními podlažími a navazujících pozemcích tvořících funkční celek s objektem. Budova je situována v zastavěné části obce Frenštát pod Radhoštěm, v lokalitě označované jako Martinská čtvrť, s přístupem po zpevněné obecní komunikaci.

Vnitřní prostory předmětu dražby byly v letech 2020 – 2022 kompletně rekonstruovány, přičemž byly využívány jako výrobní a prodejní prostory v oblasti včelařské výroby. Předmět dražby je napojen na vodovod a kanalizaci, vytápění je zajištěno tepelným čerpadlem a ohřev vody elektrickým bojlerem. Celková zastavěná plocha Předmětu dražby dosahuje 807,58 m2 a celková užitná plocha Předmětu dražby dosahuje 662,72 m2.

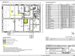
- 1. NP – o zastavěné ploše 296,99 m2 a podlahové ploše 233,27 m2 má tyto prostory:  Zádveří 9,75 m2, výtah 3,38 m2, prodejna 11,32 m2, kancelář 10,14 m2, výrobní prostor 15,35 m2, výrobní prostor 29,60 m2, výrobní prostor 38,56 m2, výrobní prostor 59,35 m2, výrobní prostor 11,68 m2, výrobní prostor 5,38 m2, šatna 8,32 m2, umývárna 4,47 m2, WC muži předsíň 4,43 m2, technická místnost 1.92 m2, WC muži 0,94 m2, WC ženy předsíň 2,08 m2, WC ženy 0,95 m2, úklidová místnost 5,07 m2 a chodba 10,57 m2.

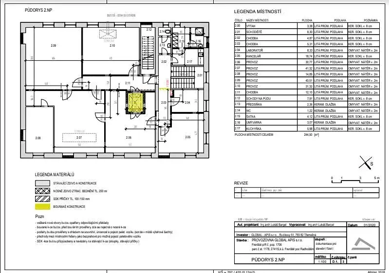
- 2. NP – o zastavěné ploše 296,99 m2 a podlahové ploše 244,52 m2 má tyto prostory:  schodiště 8,30 m2, výtah 3,38 m2, chodba 4,87 m2, chodba 5,14 m2, laboratoř 8,53 m2, kancelář 18,74 m2, výrobní prostor 30,77 m2, výrobní prostor 41,32 m2, výrobní prostor 14,89 m2, výrobní prostor 40,51 m2, výrobní prostor 31,33 m2, chodba 12,10 m2, schodiště 7,91 m2, předsíňka 2,36 m2, WC 1,22m2, šatna 4,12 m2, umývárna 3,07 m2 a kuchyňka 5,98 m2.  

- 3. NP – o zastavěné ploše 213,60 m2 a podlahové ploše 184,93 m2 má tyto prostory:  výtah 3,38 m2, sklad 152,89 m2, sklad 12,66 m2, sklad 15,99 m2.  

Předmět dražby v současné době není pronajat a je možno jej ze strany vydražitele okamžitě začít užívat. Před uskutečním samotné dražby mohou být uskutečněny osobní prohlídky Předmětu dražby a to po předchozí domluvě.

Soudní exekutor výslovně upozorňuje, že neodpovídá za správnost ani úplnost výše uvedeného popisu předmětu dražby, který je zpracován pouze informativně z dostupných podkladů. Předmět dražby je závazně vymezen výhradně v dražební vyhlášce. Soudní exekutor zároveň doporučuje všem dražitelům, aby si předmět dražby před účastí v dražbě osobně prohlédli, ověřili jeho stav na místě a řádně se seznámili jak s jeho faktickým, tak i právním stavem.

Parametry nemovitosti

Cena
7 227 000 Kč /za nemovitost
Aktualizováno
7. 4. 2026
Adresa
Martinská čtvrť, Frenštát pod Radhoštěm
ID
213 DD 344/25-2
Stavba
Cihlová
Stav objektu
Dobrý
Patro
3. z 3
Užitná plocha
808 m2
Zastavěná plocha
297 m2
Podlahová plocha
663 m2
Plocha zahrady
594 m2
Parkování

Kontaktovat makléře

Máte zájem o tuto nemovistost?

Tímto, v souladu s nařízením Evropského parlamentu a Rady (EU) 2016/679, v platném znění, prohlašuji, že mi je alespoň 16 let a uděluji tak svůj souhlas se zpracováním zadaných údajů (jméno, telefon, e-mail, ip adresa) společnosti B3 Technology, s.r.o., IČ: 07330600, se sídlem Novostavby 126/23, 435 11 Lom (správce dat), za účelem předání dotazu z tohoto formuláře Vámi vybranému inzerentovi a zpětného kontaktování mé osoby. Osobní údaje bude správce zpracovávat manuálně i automaticky přímo prostřednictvím svých zaměstnanců. Informace předané tímto formulářem budou uloženy v databázi správce maximálně po dobu 10 let. Odvolání souhlasu s uložením a zpracováním poskytnutých dat lze e-mailem na info@bydlisnami.cz. V případě podezření na neoprávněné použití Vámi poskytnutých údajů máte právo předat podnět k šetření Úřadu pro ochranu osobních údajů. Více informací
Chystáte se prodat nemovitost?
Pomůžeme Vám!

Inzerát si prohlédlo 1 lidí

Prodejce

Štěpánka Kodymová

Štěpánka Kodymová

Hlídací pes

Chcete dostávat emailem podobné nabídky dražby výrobních prostor v Frenštátu pod Radhoštěm?

Podobné nemovitosti