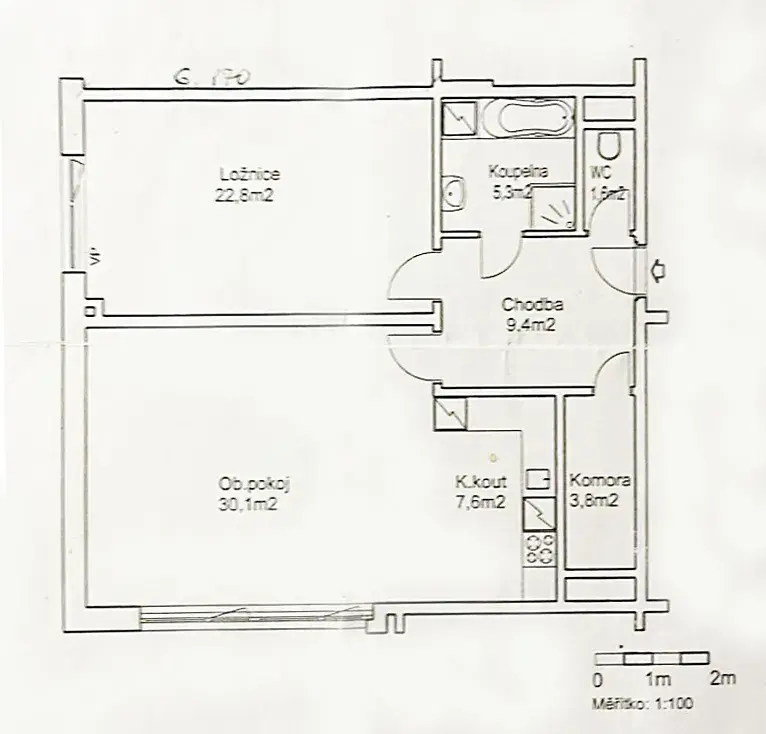
Prodej bytu 2+kk, Praha - Stodůlky, Nová kolonie, 81 m2 (ID: 2596699)

Nová kolonie, Praha, Stodůlky

11 750 000 Kč /za nemovitost HYPOTÉKA od 52 515 Kč /za měsíc
Doporučené firmy v Praze 5

Stěhovací služby

Výkup a prodej starého nábytku

Informace k bytu

Moderní byt 2+kk, 81 m², Praha 5 – Stodůlky (Central Park)

Nabízíme k prodeji světlý a prostorný byt o dispozici 2+kk a celkové ploše 80 m², nacházející se v jedné z nejžádanějších lokalit Prahy 5 – Stodůlky.

Hlavní výhody:
• moderní bytový dům
• možnost úpravy dispozice na 3+kk
• vhodné jak k vlastnímu bydlení, tak jako investice
• v ceně parkovací stání a sklep

Lokalita:
Byt se nachází v prestižní parkové zóně Central Park, v blízkosti dvou jezer, s pěšími trasami a dětskými hřišti – ideální místo pro život i odpočinek.

Dopravní dostupnost:
• autobusová zastávka – 5 minut pěšky
• stanice metra – 10–12 minut

Občanská vybavenost:
V bezprostřední blízkosti:
• školy a mateřské školy
• banky
• restaurace a kavárny
• obchody a služby

Další informace:
Díky své dispozici a poloze je byt atraktivní jak pro vlastní bydlení, tak pro následný pronájem.

Parametry bytu

Cena
11 750 000 Kč /za nemovitost Spočítat hypotéku
Aktualizováno
8. 4. 2026
Adresa
Nová kolonie, Praha, Stodůlky
Stavba
Cihlová
Stav objektu
Novostavba
Patro
2.
Vlastnictví
Osobní
Užitná plocha
81 m2
Garáž
Sklep

Kontaktovat makléře

Realitní kancelář

DIXOR Invest s.r.o.

Volutová 2523/14, Praha, Stodůlky

Chystáte se prodat nemovitost?
Pomůžeme Vám!

Máte zájem o tento byt?

Tímto, v souladu s nařízením Evropského parlamentu a Rady (EU) 2016/679, v platném znění, prohlašuji, že mi je alespoň 16 let a uděluji tak svůj souhlas se zpracováním zadaných údajů (jméno, telefon, e-mail, ip adresa) společnosti B3 Technology, s.r.o., IČ: 07330600, se sídlem Novostavby 126/23, 435 11 Lom (správce dat), za účelem předání dotazu z tohoto formuláře Vámi vybranému inzerentovi a zpětného kontaktování mé osoby. Osobní údaje bude správce zpracovávat manuálně i automaticky přímo prostřednictvím svých zaměstnanců. Informace předané tímto formulářem budou uloženy v databázi správce maximálně po dobu 10 let. Odvolání souhlasu s uložením a zpracováním poskytnutých dat lze e-mailem na info@bydlisnami.cz. V případě podezření na neoprávněné použití Vámi poskytnutých údajů máte právo předat podnět k šetření Úřadu pro ochranu osobních údajů. Více informací
Chystáte se prodat nemovitost?
Pomůžeme Vám!

Inzerát si prohlédlo 1 lidí

Prodejce

V. Pereverzeva

V. Pereverzeva

Hlídací pes

Chcete dostávat emailem podobné nabídky prodeje bytů 2+kk v Praze 5?

Podobné nemovitosti