Prodej bytu 3+kk, Bad Kleinkirchheim, Rakousko, Wasserfallweg, 65 m2 (ID: 2599263)

Wasserfallweg, Bad Kleinkirchheim

345 000 € /za nemovitost
Doporučené firmy

Informace k bytu

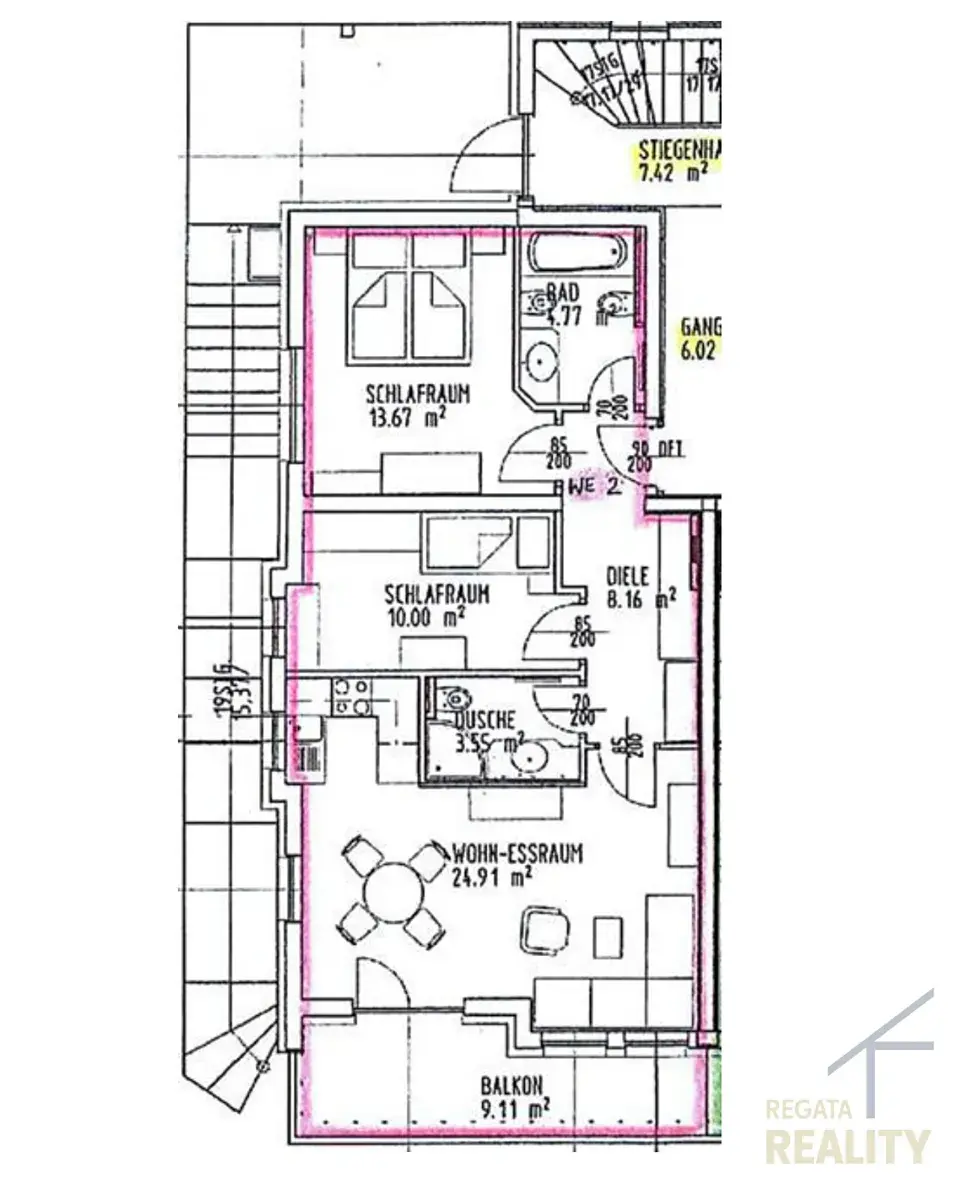
Nabízíme k prodeji stylový byt 3 + kk v širším centru obce Bad Kleinkirchheim v dochozí vzdálenosti od lanovek a termálních lázní. Tento příjemný cihlový byt o celkové ploše 74 m² a užitné ploše 65 m² se nachází ve 1. podlaží čtyřpodlažního objektu a je ihned k dispozici.

Nemovitost je ve velmi dobrém stavu a poskytuje komfortní bydlení. Interiér je vybaven vestavěnými skříněmi, které nabízejí dostatek prostoru pro uložení osobních věcí. Plně vybavená kuchyň zahrnuje spotřebiče a nádobí. Byt disponuje dvěma pokoji na spaní, což je ideální pro rodiny nebo sdílení s přáteli.

Dvě koupelny zajišťují maximální pohodlí, jedna z nich je vybavena vanou, zatímco druhá disponuje sprchovým koutem. V obou koupelnách se nachází toaleta a bidet. Pro milovníky slunce je k dispozici slunný balkon s krásným výhledem na okolní krajinu, kde lze trávit příjemné chvíle během teplých měsíců.

Vytápění je zajištěno centrálním vytápěním biomasou s podlahovým topením, což zaručuje příjemné a rovnoměrné teplo v celém bytě.
Měsíční náklady na bydlení činí 377 € plus elektřina.

K bytu náleží také parkovací místo a garáž, což zajišťuje pohodlné parkování a dodatečný komfort pro rezidenty.

Tento byt v Bad Kleinkirchheimu je ideální volbou pro ty, kteří hledají harmonické a komfortní bydlení s dostatkem prostoru a moderním vybavením. V těsné blízkosti se nachází příroda, která láká k různým aktivitám a relaxaci.

Poznámka RK: V Rakousku hradí kupující provizi realitní kanceláři dle zákona 3,6%, plus daň z nabytí nemovitosti 3,5% a poplatek za zápis do KN 1,1%. Právní a notářské služby se hradí zvlášť. Celkové další výdaje tvoří cca 10-12% z kupní ceny.

V případě zájmu o prohlídku nás neváhejte kontaktovat.

Parametry bytu

Cena
345 000 € /za nemovitost
Aktualizováno
8. 4. 2026
Adresa
Wasserfallweg, Bad Kleinkirchheim
ID
0188
Stavba
Cihlová
Stav objektu
Velmi dobrý
Patro
2. z 4
Vybaveno
Ano
Lokalita objektu
Klidná část obce
Vlastnictví
Osobní
Užitná plocha
65 m2
Podlahová plocha
74 m2
Třída energetické náročnosti
D - Méně úsporná
Elektřina
230V
Odpad
Veřejná kanalizace
Komunikace
Asfaltová
Telekomunikace
Satelit
Doprava
Silnice, MHD
Voda
Vodovod
Topné těleso
Podlahové vytápění
Zdroj topení
Ústřední dálkové
Balkon
Garáž
Parkování

Kontaktovat makléře

Máte zájem o tento byt?

Tímto, v souladu s nařízením Evropského parlamentu a Rady (EU) 2016/679, v platném znění, prohlašuji, že mi je alespoň 16 let a uděluji tak svůj souhlas se zpracováním zadaných údajů (jméno, telefon, e-mail, ip adresa) společnosti B3 Technology, s.r.o., IČ: 07330600, se sídlem Novostavby 126/23, 435 11 Lom (správce dat), za účelem předání dotazu z tohoto formuláře Vámi vybranému inzerentovi a zpětného kontaktování mé osoby. Osobní údaje bude správce zpracovávat manuálně i automaticky přímo prostřednictvím svých zaměstnanců. Informace předané tímto formulářem budou uloženy v databázi správce maximálně po dobu 10 let. Odvolání souhlasu s uložením a zpracováním poskytnutých dat lze e-mailem na info@bydlisnami.cz. V případě podezření na neoprávněné použití Vámi poskytnutých údajů máte právo předat podnět k šetření Úřadu pro ochranu osobních údajů. Více informací
Chystáte se prodat nemovitost?
Pomůžeme Vám!

Inzerát si prohlédlo 2 lidí

Prodejce

Michaela Macháčková

Michaela Macháčková

Hlídací pes

Chcete dostávat emailem podobné nabídky prodeje bytů 3+kk?

Podobné nemovitosti