Pronájem rodinného domu, Jilemnice, 1025 m2

Jilemnice

30 000 Kč /za měsíc Získejte výhodnou HYPOTÉKU
Doporučené firmy v Jilemnici

Rekonstrukce

Úklidové služby

Informace k domu

Pronájem novostavby prostorného rodinného domu 6+kk v klidné části Jilemnice

Nabízíme k dlouhodobému pronájmu nově postavený, prostorný rodinný dům o dispozici 6+kk, který se nachází v tiché a vyhledávané lokalitě města Jilemnice.
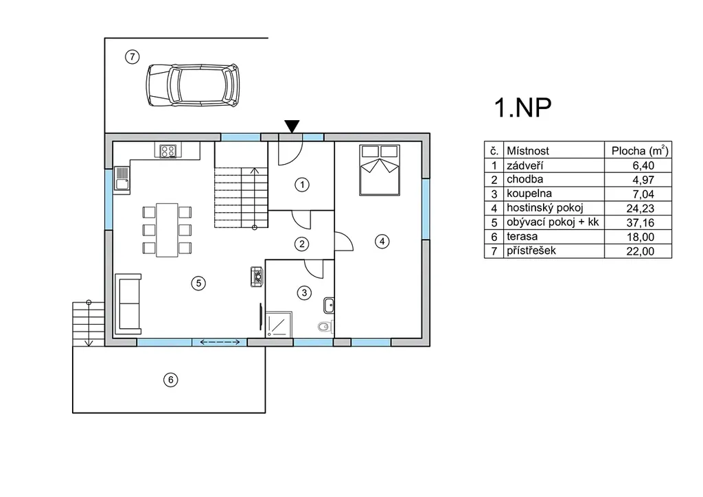
Dům s celkovou užitnou plochou 172 m² je ideální volbou pro rodinu, která hledá komfortní, moderní a klidné bydlení s dostatkem prostoru i soukromí.
Dominantou domu je velkorysý obývací prostor propojený s kuchyní, jídelnou, krbovými kamny a vstupem na terasu, který tvoří světlé a vzdušné centrum každodenního života. Dispozice dále nabízí čtyři ložnice a pracovnu – ideální řešení pro větší rodinu, home office nebo pokoj pro hosty.
V přízemí je technická místnost s pračkou, sprchovým koutem a wc.
Dále v patře najdete samostatné wc s umyvadlem, koupelnu s vanou a sprchovým koutem.
K domu náleží kryté parkovací stání, sklep vhodný pro uložení věcí či zahradní techniky a praktické podkroví jako další úložný prostor.
Příjemné chvíle můžete trávit na terase o velikosti 18 m² orientované do klidné zahrady. Rozlehlý pozemek o výměře 1 025 m² poskytuje dostatek prostoru pro relaxaci, hry dětí i zahradničení.

Technické informace
• Dispozice: 6+kk
• Užitná plocha: 172 m²
• Pozemek: 1 025 m²
• Terasa: 18 m²
• Kryté parkování: 22 m²
• Vytápění: podlahové (elektrokotel)
• Ohřev vody: elektrický bojler
• Podlahy: vinyl
• Schodiště: masivní dub
• Krbové kamna

Lokalita
Jilemnice, přezdívaná „brána Krkonoš“, nabízí kompletní občanskou vybavenost – školy, školky, obchody, zdravotní služby i sportovní vyžití. Okolí láká na turistiku, cyklistiku i zimní sporty.

Parametry domu

Cena
30 000 Kč /za měsíc
Náklady na bydlení
6000
Aktualizováno
9. 4. 2026
Adresa
Jilemnice
Stavba
Cihlová
Stav objektu
Velmi dobrý
Užitná plocha
1025 m2
Plocha pozemku
172 m2
Třída energetické náročnosti
B - Velmi úsporná
Elektřina
230V, 400V
Odpad
Veřejná kanalizace
Komunikace
Asfaltová
Telekomunikace
Kabelové rozvody
Voda
Vodovod
Zdroj topení
Elektrokotel, Krbová kamna
Parkování

Kontaktovat makléře

Máte zájem o tento dům?

Tímto, v souladu s nařízením Evropského parlamentu a Rady (EU) 2016/679, v platném znění, prohlašuji, že mi je alespoň 16 let a uděluji tak svůj souhlas se zpracováním zadaných údajů (jméno, telefon, e-mail, ip adresa) společnosti B3 Technology, s.r.o., IČ: 07330600, se sídlem Novostavby 126/23, 435 11 Lom (správce dat), za účelem předání dotazu z tohoto formuláře Vámi vybranému inzerentovi a zpětného kontaktování mé osoby. Osobní údaje bude správce zpracovávat manuálně i automaticky přímo prostřednictvím svých zaměstnanců. Informace předané tímto formulářem budou uloženy v databázi správce maximálně po dobu 10 let. Odvolání souhlasu s uložením a zpracováním poskytnutých dat lze e-mailem na info@bydlisnami.cz. V případě podezření na neoprávněné použití Vámi poskytnutých údajů máte právo předat podnět k šetření Úřadu pro ochranu osobních údajů. Více informací
Chystáte se prodat nemovitost?
Pomůžeme Vám!

Inzerát si prohlédlo 0 lidí

Prodejce

Jitka Macková

Jitka Macková

Hlídací pes

Chcete dostávat emailem podobné nabídky pronájmu rodinných domů v Jilemnici?