Prodej bytu 4+kk, Brno, Žabí, 69 m2

Žabí, Brno, Žebětín

9 395 000 Kč /za nemovitost HYPOTÉKA od 41 990 Kč /za měsíc
Doporučené firmy v Brně

Informace k bytu

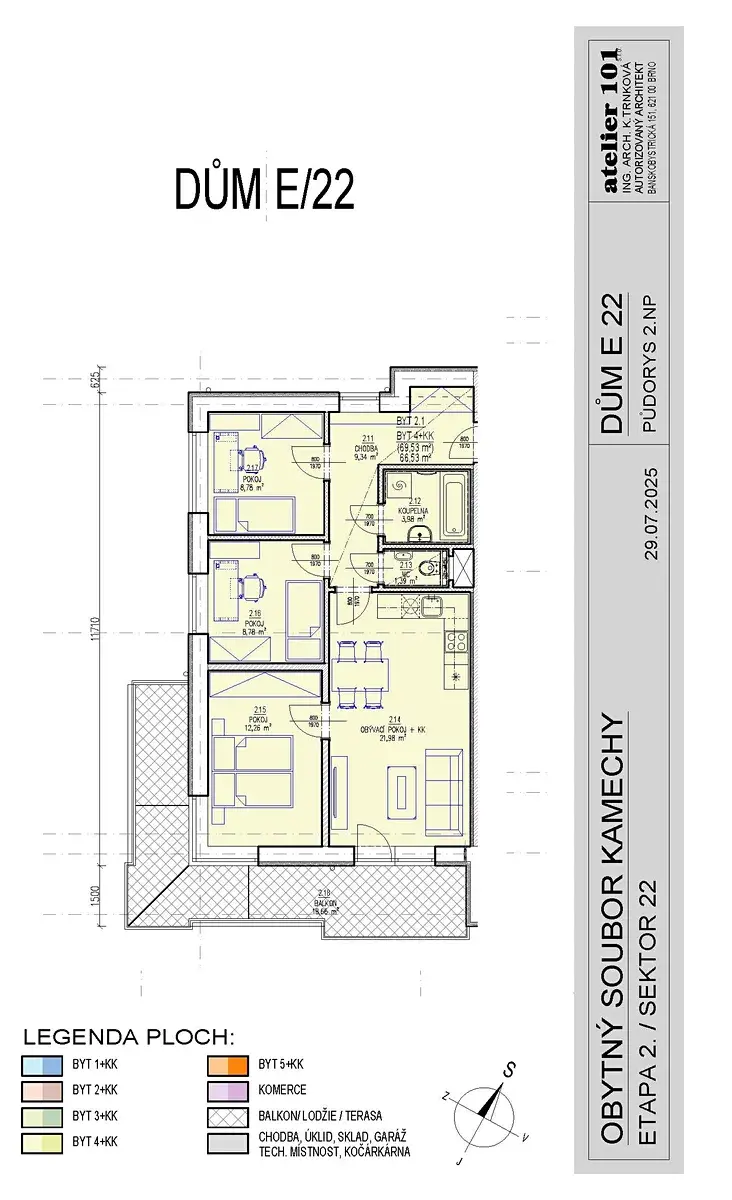
Představujeme Vám tento prostorný byt 4+kk v osobním vlastnictví, který je nyní ve fázi výstavby a bude připraven k nastěhování na konci roku 2027. Nachází se v cihlové stavbě ve druhém patře, která je součástí nového moderního projektu v Brně. Byt nabízí užitnou plochu 69,53 m², s důrazem na efektivní využití prostoru.

Velkou výhodou tohoto bytu je balkon o ploše 19 m², který poskytuje možnost relaxace s výhledem do okolí.

K bytu je možné přikoupit parkovací místo, garáž se skladem, garáž ve 3.PP domu CD22, který je propojen průjezdným krčkem s 2.PP domu E22.

Plánované dokončení výstavby je na konci roku 2027, což dává prostor k přizpůsobení některých detailů podle Vašeho vkusu. Provozní náklady Vám sdělí makléř, který je kontaktní osobou u tohoto inzerátu.

Pokud Vás tento byt zaujal, neváhejte nám napsat nebo zavolat a rádi Vám vše ukážeme osobně. Pro více informací o této nemovitosti nebo sjednání prohlídky nás prosím kontaktujte nebo vyplňte níže uvedený formulář, rádi Vám pomůžeme.

Parametry bytu

Cena
9 395 000 Kč /za nemovitost Spočítat hypotéku
Aktualizováno
15. 4. 2026
Adresa
Žabí, Brno, Žebětín
Stavba
Cihlová
Stav objektu
Ve výstavbě
Patro
2.
Vlastnictví
Osobní
Užitná plocha
69 m2
Balkon
Garáž
Parkování

Kontaktovat makléře

Realitní kancelář

REKO a.s.

třída Kpt. Jaroše 1845/26, Brno

Chystáte se prodat nemovitost?
Pomůžeme Vám!

Máte zájem o tento byt?

Tímto, v souladu s nařízením Evropského parlamentu a Rady (EU) 2016/679, v platném znění, prohlašuji, že mi je alespoň 16 let a uděluji tak svůj souhlas se zpracováním zadaných údajů (jméno, telefon, e-mail, ip adresa) společnosti B3 Technology, s.r.o., IČ: 07330600, se sídlem Novostavby 126/23, 435 11 Lom (správce dat), za účelem předání dotazu z tohoto formuláře Vámi vybranému inzerentovi a zpětného kontaktování mé osoby. Osobní údaje bude správce zpracovávat manuálně i automaticky přímo prostřednictvím svých zaměstnanců. Informace předané tímto formulářem budou uloženy v databázi správce maximálně po dobu 10 let. Odvolání souhlasu s uložením a zpracováním poskytnutých dat lze e-mailem na info@bydlisnami.cz. V případě podezření na neoprávněné použití Vámi poskytnutých údajů máte právo předat podnět k šetření Úřadu pro ochranu osobních údajů. Více informací
Chystáte se prodat nemovitost?
Pomůžeme Vám!

Inzerát si prohlédlo 0 lidí

Prodejce

Ivana Nespěšná

Ivana Nespěšná

Hlídací pes

Chcete dostávat emailem podobné nabídky prodeje bytů 4+kk v Brně?

Podobné nemovitosti