Prodej bytu 4+kk, Praha - Vokovice, Tibetská, 139 m2 (ID: 2609029)

Tibetská, Praha, Vokovice

22 972 000 Kč /za nemovitost HYPOTÉKA od 102 671 Kč /za měsíc
Doporučené firmy v Praze 6

Stěhovací služby

Výkup a prodej starého nábytku

Informace k bytu

Hledáte prostor, kde se práce a rodinný život doplňují, ale nepletou?
Nabízíme nadstandardní byt 4+kk (138 m²) v ul. Irská, který díky unikátní kaskádové architektuře kombinuje výhody soukromého domu a luxusního bytu.
Proč je tento byt ideální volbou?
!!! Exkluzivní Home Office: Byt se nachází v přízemí u vstupu z klidného vnitrobloku. Jeden z pokojů s vlastní koupelnou je strategicky umístěn přímo u vstupu do bytu. To je ideální řešení pro zřízení pracovny, ordinace nebo ateliéru. Vaši klienti tak mají zajištěn komfortní přístup hned u dveří, aniž by procházeli soukromou částí bytu, kde odpočívá vaše rodina.
!!! Maximální soukromí s výhledem do lesa (8 m² balkon): Zatímco vstup je v úrovni terénu, díky kaskádě se obývací pokoj nachází ve výšce 2. NP. Balkon směřuje přímo do vzrostlého lesoparku – absolutní ticho, zeleň a soukromí bez sousedů naproti.
!!! Bezproblémové parkování: K bytu náleží vlastní parkovací stání. Pro vaše hosty a klienty je k dispozici vyhrazené návštěvnické parkoviště přímo u domu, což je v této lokalitě vzácný benefit.
️!!! Zázemí a relax: Dům nabízí služby recepce (přebírání zásilek, bezpečí) a exkluzivní přístup do rezidentní sauny přímo v budově.
!!! Top lokalita: Praha 6 – Vokovice. Pár minut od metra Bořislavka, v těsném sousedství Divoké Šárky a s rychlým spojením na letiště.
Parametry:
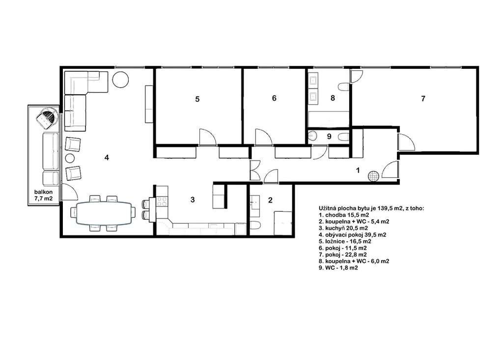
4+kk, 140 m² + balkon 8 m² + sklep 9 m²
1x vlastní stání + návštěvnické parkoviště
Privátní vstup z vnitrobloku + přístup přes recepci
Sauna pro rezidenty
Tento byt musíte zažít. Je to místo, kde ráno pracujete v tichu vlastního ateliéru a večer odpočíváte s výhledem do lesa.

Parametry bytu

Cena
22 972 000 Kč /za nemovitost Spočítat hypotéku
Aktualizováno
16. 4. 2026
Adresa
Tibetská, Praha, Vokovice
Stavba
Smíšená
Stav objektu
Novostavba
Patro
2.
Vybaveno
Částečně
Vlastnictví
Osobní
Užitná plocha
139 m2
Třída energetické náročnosti
G - Mimořádně nehospodárná
Odpad
Veřejná kanalizace
Telekomunikace
Telefon, Internet
Voda
Vodovod
Balkon
Sklep
Výtah
Bezbarierový přístup
Parkování

Kontaktovat makléře

Máte zájem o tento byt?

Tímto, v souladu s nařízením Evropského parlamentu a Rady (EU) 2016/679, v platném znění, prohlašuji, že mi je alespoň 16 let a uděluji tak svůj souhlas se zpracováním zadaných údajů (jméno, telefon, e-mail, ip adresa) společnosti B3 Technology, s.r.o., IČ: 07330600, se sídlem Novostavby 126/23, 435 11 Lom (správce dat), za účelem předání dotazu z tohoto formuláře Vámi vybranému inzerentovi a zpětného kontaktování mé osoby. Osobní údaje bude správce zpracovávat manuálně i automaticky přímo prostřednictvím svých zaměstnanců. Informace předané tímto formulářem budou uloženy v databázi správce maximálně po dobu 10 let. Odvolání souhlasu s uložením a zpracováním poskytnutých dat lze e-mailem na info@bydlisnami.cz. V případě podezření na neoprávněné použití Vámi poskytnutých údajů máte právo předat podnět k šetření Úřadu pro ochranu osobních údajů. Více informací
Chystáte se prodat nemovitost?
Pomůžeme Vám!

Inzerát si prohlédlo 1 lidí

Prodejce

Slobodskaja Olga

Slobodskaja Olga

Hlídací pes

Chcete dostávat emailem podobné nabídky prodeje bytů 4+kk v Praze 6?

Podobné nemovitosti