Prodej bytu 3+kk, Brno, Chvalovka, 65 m2

Chvalovka, Brno

8 010 000 Kč /za nemovitost HYPOTÉKA od 35 800 Kč /za měsíc
Doporučené firmy v Brně

Informace k bytu

Aktuální prodej bytových jednotek v poslední výstavbě Kamechy II. dům CD22 v k.ú. Žebětín na ul. Chvalovka.

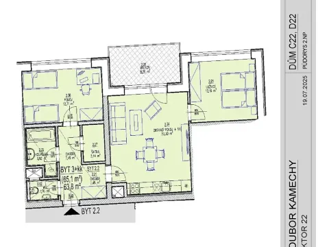
Nabízíme k prodeji byt v OV 3+kk č. 2.2. o velikosti 65,10 m2 + balkon 8,20 m2 v poslední výstavbě domu CD22, který Vám nabídne moderní bydlení v 5ti podlažním cihlovém domě s výtahem v klidné, okrajové části Žebětína navazující na Bystrc.

K bytovým jednotkám je možné dokoupit garážové stání ve 3.PP domu.

Samozřejmostí bude volba materiálů (zařizovací předměty koupelny a toalety, obklady, podlahy a dveře) pro dokončení Vašeho bydlení, kde budete mít na výběr.

Termín dokončení je stanoven na prosinec 2027. Ve výstavbě Města je prodloužení tramvajové tratě s konečnou umístěnou na Kamechách.

V rámci lokality a přilehlých městských částí Bystrc a Žebětín máte k dispozici kompletní občanskou vybavenost, kde naleznete obchody a služby.

V rámci lokality máte na dosah oblíbenou cyklostezku, nepřeberné možnosti procházek pro Vaše psí mazlíčky a výhled na Žebětínský rybník. Nesmíme opomenout i Brněnskou přehradu, která je nedaleko a nabízí Vám další možnosti sportovního i volnočasového vyžití.

Na financování části kupní ceny lze využít hypotéční úvěr či úvěr ze stavebního spoření, kdy bytovou jednotku lze použít jako zástavu úvěru. Prodej bytů je přímo od investora, neplatíte tedy provizi.

Pro více informací, či další nabídky bytových jednotek se obracejte na makléře.
Rádi také pomůžeme prostřednictvím našeho finančního poradce s nejvýhodnějším financováním Vašeho nového bydlení.
Zveřejněné fotografie jsou pouze ilustrační z předchozích etap, půdorysy bytů aktuální.

Parametry bytu

Cena
8 010 000 Kč /za nemovitost Spočítat hypotéku
Aktualizováno
17. 4. 2026
Adresa
Chvalovka, Brno
Stavba
Cihlová
Stav objektu
Ve výstavbě
Patro
2. z 7
Vybaveno
Ne
Lokalita objektu
Klidná část obce
Vlastnictví
Osobní
Užitná plocha
65 m2
Třída energetické náročnosti
B - Velmi úsporná
Doprava
MHD
Balkon
Výtah
Bezbarierový přístup

Kontaktovat makléře

Realitní kancelář

REKO a.s.

třída Kpt. Jaroše 1845/26, Brno

Chystáte se prodat nemovitost?
Pomůžeme Vám!

Máte zájem o tento byt?

Tímto, v souladu s nařízením Evropského parlamentu a Rady (EU) 2016/679, v platném znění, prohlašuji, že mi je alespoň 16 let a uděluji tak svůj souhlas se zpracováním zadaných údajů (jméno, telefon, e-mail, ip adresa) společnosti B3 Technology, s.r.o., IČ: 07330600, se sídlem Novostavby 126/23, 435 11 Lom (správce dat), za účelem předání dotazu z tohoto formuláře Vámi vybranému inzerentovi a zpětného kontaktování mé osoby. Osobní údaje bude správce zpracovávat manuálně i automaticky přímo prostřednictvím svých zaměstnanců. Informace předané tímto formulářem budou uloženy v databázi správce maximálně po dobu 10 let. Odvolání souhlasu s uložením a zpracováním poskytnutých dat lze e-mailem na info@bydlisnami.cz. V případě podezření na neoprávněné použití Vámi poskytnutých údajů máte právo předat podnět k šetření Úřadu pro ochranu osobních údajů. Více informací
Chystáte se prodat nemovitost?
Pomůžeme Vám!

Inzerát si prohlédlo 1 lidí

Prodejce

Ivana Nespěšná

Ivana Nespěšná

Hlídací pes

Chcete dostávat emailem podobné nabídky prodeje bytů 3+kk v Brně?

Podobné nemovitosti