Soccer reality

Prodej kanceláře, Praha - Vysočany, Kolbenova, 181 m2 (ID: 2610051)

Kolbenova, Praha, Vysočany

30 634 000 Kč /za nemovitost HYPOTÉKA od 136 915 Kč /za měsíc
Doporučené firmy v Praze 9

Stěhovací služby

Výkup a prodej starého nábytku

Informace k nemovitosti

Prodej ateliéru 6+kk, Praha 9 – Kolbenova | Industriální ateliér pro podnikání

Nabízíme k prodeji exkluzivní loftový prostor o dispozici 6+kk v projektu Lofty Kolbenova, Praha 9 – Vysočany. Byt se nachází v 1. nadzemním podlaží a disponuje podlahovou plochou 215,63 m². Díky svému industriálnímu charakteru je ideální pro využití jako reprezentativní kancelář, showroom nebo kreativní studio.

**Základní parametry**

✓ dispozice: 6+kk

✓ podlahová plocha: 215,63 m²

✓ podlaží: 1. NP

✓ parkování: možnost dokoupení

✓ sklep: možnost dokoupení

✓ energetická náročnost: B – velmi úsporná

**Stav nemovitosti**

Jednotka se nachází v kompletně zrekonstruovaném industriálním objektu, který byl citlivě přeměněn na moderní rezidenční projekt Lofty Kolbenova. Byly zde zachovány typické prvky jako vysoké stropy, betonové konstrukce a velkoformátová tovární okna. Tento developerský projekt získal ocenění jako uznání za nejlepší stavbu využívající stávající objekt v bývalé průmyslové lokalitě.

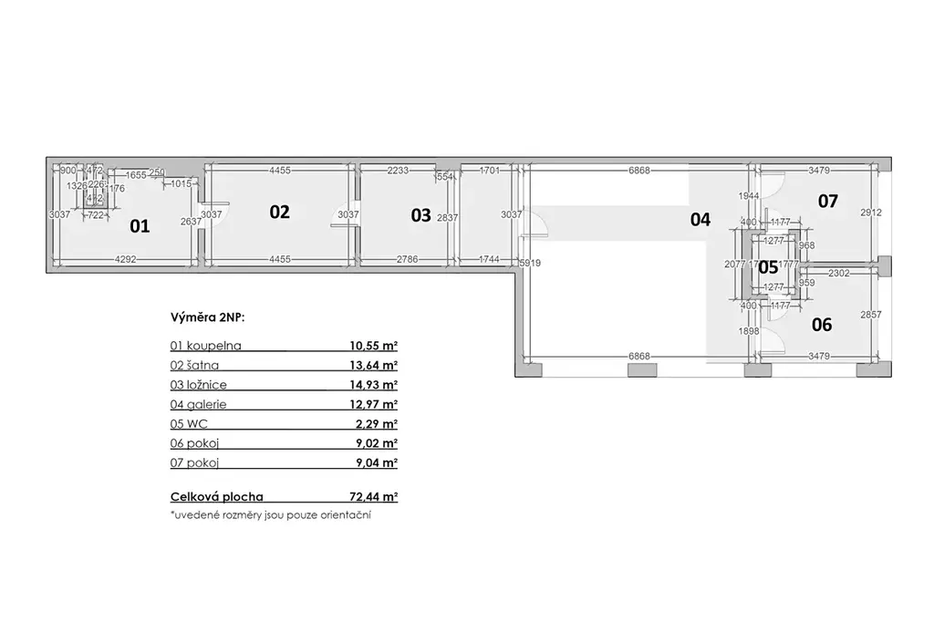
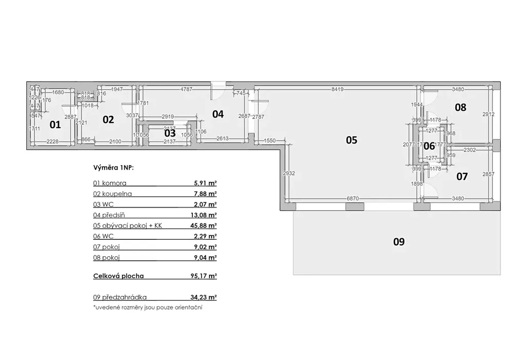
**Dispozice**

V přízemí se nachází prostorná vstupní část vhodná pro recepci, samostatná toaleta, koupelna se sprchou i vanou a technická místnost. Dominantou je velkorysý otevřený prostor ideální pro open space kancelář nebo showroom. Dále jsou zde dvě samostatné místnosti využitelné jako kanceláře či zasedací místnosti.

Ve druhém podlaží jsou další tři samostatné místnosti, které lze využít jako kanceláře vedení, jednací prostory nebo klidové pracovní zóny, dále šatna a koupelna se sprchou, vanou a toaletou.

**Příslušenství**

Standard zahrnuje moderní technologie, jako je klimatizace, podlahové vytápění a rekuperací, která zajišťuje stabilní a zdravé vnitřní klima. Samozřejmostí jsou také předokenní žaluzie pro regulaci světla a teploty.

Interiér kombinuje industriální prvky s kvalitními materiály – dřevěné podlahy v dekoru dubu, designové schodiště, osvětlení v industriálním stylu, stěna z pohledového betonu, ocelové detaily a přiznané betonové konstrukce. Pokoje jsou oddělené designovými skleněnými příčkami.

K ateliéru je možné dokoupit parkovací stání a sklep. Prostor je vhodný pro firmy, kreativní studia i klienty hledající výrazné a atypické zázemí pro podnikání.

**Lokalita**

Projekt Lofty Kolbenova se nachází v rychle se rozvíjející části Prahy 9 – Vysočany, která postupně mění svůj původní industriální charakter na moderní městskou čtvrť. Lokalita nabízí kombinaci nové rezidenční výstavby, služeb a autentické atmosféry bývalých průmyslových areálů.

Skvělou dopravní dostupnost zajišťuje metro B Kolbenova (cca 4 minuty chůze) a tramvajová zastávka vzdálená jen 2 minuty. Do centra města se dostanete přibližně za 15 minut.

V okolí najdete kompletní občanskou vybavenost – obchody, restaurace, kavárny i sportovní zařízení. V blízkosti se nachází také oblíbená lokalita Pragovka s kulturním a komunitním přesahem.

Pro volný čas lze využít parky Podviní a Zahrádky nebo cyklostezku podél Rokytky. Lokalita tak nabízí vyvážené spojení městského života a zeleně.

Parametry nemovitosti

Cena
30 634 000 Kč /za nemovitost Spočítat hypotéku
Aktualizováno
17. 4. 2026
Adresa
Kolbenova, Praha, Vysočany
ID
960125
Stavba
Smíšená
Stav objektu
Novostavba
Patro
1. z 5
Užitná plocha
181 m2
Podlahová plocha
181 m2
Třída energetické náročnosti
B - Velmi úsporná
Ukazatel energetické náročnosti
75 kWh/m2 za rok
Elektřina
230V
Odpad
Veřejná kanalizace
Komunikace
Asfaltová
Telekomunikace
Telefon, Internet, Kabelová televize
Doprava
Silnice, MHD, Autobus
Voda
Vodovod
Garáž
Výtah
Bezbarierový přístup
Parkování

Kontaktovat makléře

Máte zájem o tuto nemovistost?

Tímto, v souladu s nařízením Evropského parlamentu a Rady (EU) 2016/679, v platném znění, prohlašuji, že mi je alespoň 16 let a uděluji tak svůj souhlas se zpracováním zadaných údajů (jméno, telefon, e-mail, ip adresa) společnosti B3 Technology, s.r.o., IČ: 07330600, se sídlem Novostavby 126/23, 435 11 Lom (správce dat), za účelem předání dotazu z tohoto formuláře Vámi vybranému inzerentovi a zpětného kontaktování mé osoby. Osobní údaje bude správce zpracovávat manuálně i automaticky přímo prostřednictvím svých zaměstnanců. Informace předané tímto formulářem budou uloženy v databázi správce maximálně po dobu 10 let. Odvolání souhlasu s uložením a zpracováním poskytnutých dat lze e-mailem na info@bydlisnami.cz. V případě podezření na neoprávněné použití Vámi poskytnutých údajů máte právo předat podnět k šetření Úřadu pro ochranu osobních údajů. Více informací
Chystáte se prodat nemovitost?
Pomůžeme Vám!

Inzerát si prohlédlo 0 lidí

Prodejce

Erika Mezková

Erika Mezková

Hlídací pes

Chcete dostávat emailem podobné nabídky prodeje kanceláří v Praze 9?

Podobné nemovitosti