Prodej bytu 2+1, Rosice, Husova čtvrť, 56 m2

Husova čtvrť, Rosice

5 100 000 Kč /za nemovitost HYPOTÉKA od 22 794 Kč /za měsíc
Doporučené firmy v Rosicích

Informace k bytu

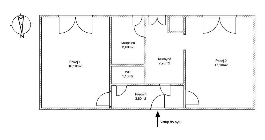
Nabízíme k prodeji byt o dispozici 2+1 a celkové výměře 56 m², situovaný v 1. nadzemním podlaží bytového domu v klidné a vyhledávané lokalitě Rosice, ulice Husova čtvrť.

Byt zaujme praktickým dispozičním řešením s neprůchozími pokoji. Při vstupu do bytu vcházíme do předsíně, ze které jsou samostatné vstupy do jednotlivých místností – dvou pokojů, kuchyně a samostatného WC. Z kuchyně je dále vstup do koupelny. Dispozice tak nabízí dostatek soukromí a komfortní uspořádání vhodné jak pro vlastní bydlení, tak i jako investiční příležitost.

Byt je vybaven vlastním plynovým kotlem, který zajišťuje vytápění i ohřev vody, což přináší nezávislost na centrálních zdrojích a možnost regulace nákladů dle vlastních potřeb. K bytu náleží také sklep o velikosti 6,8 m², poskytující dostatek úložného prostoru.

Velkou výhodou je možnost přikoupení garáže za cenu 850 000 Kč, která se nachází v blízkosti domu.

Město Rosice nabízí kompletní občanskou vybavenost – školy, školky, obchody, zdravotnická zařízení i široké možnosti volnočasových aktivit. Výborná dopravní dostupnost do Brna (cca 15–20 minut) činí z této lokality ideální kombinaci klidného bydlení s rychlým dosahem města.

V případě zájmu o bližší informace či sjednání prohlídky mě neváhejte kontaktovat.

Parametry bytu

Cena
5 100 000 Kč /za nemovitost Spočítat hypotéku
Aktualizováno
22. 4. 2026
Adresa
Husova čtvrť, Rosice
ID
26042102
Stavba
Cihlová
Stav objektu
Velmi dobrý
Patro
1.
Vlastnictví
Osobní
Užitná plocha
56 m2
Sklep

Kontaktovat makléře

Realitní kancelář

VIP reality

Červený kopec 824/24, Brno

Chystáte se prodat nemovitost?
Pomůžeme Vám!

Máte zájem o tento byt?

Tímto, v souladu s nařízením Evropského parlamentu a Rady (EU) 2016/679, v platném znění, prohlašuji, že mi je alespoň 16 let a uděluji tak svůj souhlas se zpracováním zadaných údajů (jméno, telefon, e-mail, ip adresa) společnosti B3 Technology, s.r.o., IČ: 07330600, se sídlem Novostavby 126/23, 435 11 Lom (správce dat), za účelem předání dotazu z tohoto formuláře Vámi vybranému inzerentovi a zpětného kontaktování mé osoby. Osobní údaje bude správce zpracovávat manuálně i automaticky přímo prostřednictvím svých zaměstnanců. Informace předané tímto formulářem budou uloženy v databázi správce maximálně po dobu 10 let. Odvolání souhlasu s uložením a zpracováním poskytnutých dat lze e-mailem na info@bydlisnami.cz. V případě podezření na neoprávněné použití Vámi poskytnutých údajů máte právo předat podnět k šetření Úřadu pro ochranu osobních údajů. Více informací
Chystáte se prodat nemovitost?
Pomůžeme Vám!

Inzerát si prohlédlo 1 lidí

Prodejce

Ilona Peňázová

Ilona Peňázová

Hlídací pes

Chcete dostávat emailem podobné nabídky prodeje bytů 2+1 v Rosicích (okr. Brno-venkov)?

Podobné nemovitosti