Prodej rodinného domu, Dobrá, 300 m2

Dobrá

5 390 000 Kč /za nemovitost HYPOTÉKA od 24 090 Kč /za měsíc
Doporučené firmy v Dobré

Informace k domu

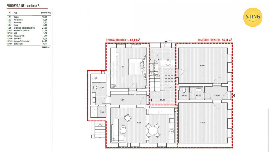
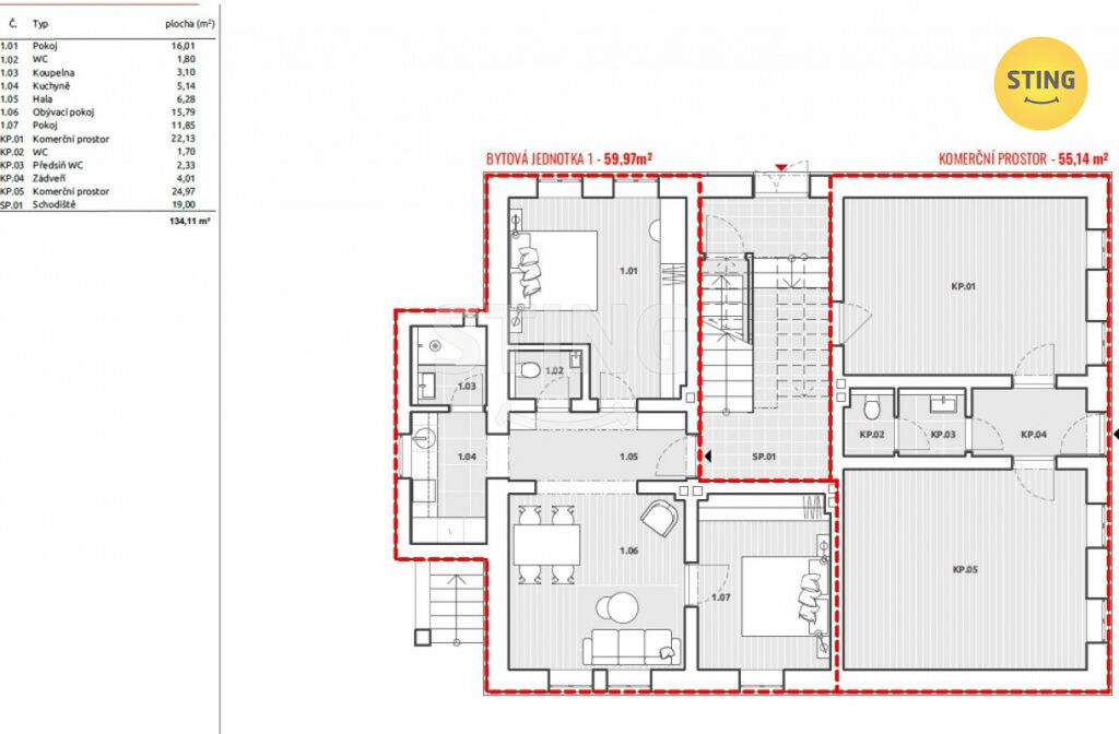
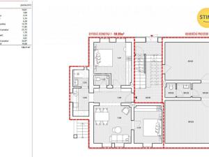
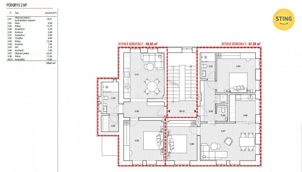
Nabízíme exkluzivně k prodeji cihlový rodinný dům v malebné obci Dobrá, který představuje jedinečnou příležitost pro ty, kteří hledají investici nebo prostorné bydlení. Na tomto domě byla nedávno zahájena pečlivá přestavba, jejímž cílem je vybudování tří zcela nových bytových jednotek, které se budou lišit svou velikostí, aby vyhovovaly různorodým potřebám budoucích obyvatel. Kromě toho je v plánu vybudovat také jeden nebytový prostor, který může sloužit jako kancelář nebo obchodní prostor. Dům je přístupný hlavním vchodem, za kterým se nachází široké schodiště vedoucí jak k jednotlivým bytům v přízemí, tak i do vyšších pater, což zajišťuje pohodlný přístup a rozdělení prostoru. V současné době byly již provedeny důkladné bourací práce, které připravily prostor pro další stavební úpravy. Nově byly vyzděny některé příčky, které pomáhají definovat nové dispozice bytů, a byl rovněž proveden rozvod vody, odpadů a ústředního topení ke každému z bytů v prvním a druhém nadzemním podlaží. Navíc byly do půdního prostoru vyvedeny stoupačky, což tento prostor činí ideálním pro potenciální vestavbu dalších bytů, rozšiřujících obytnou kapacitu domu. Střecha domu a její plechová krytina jsou v dobrém stavu, což může být pro budoucí majitele velkou výhodou, neboť nebude vyžadována okamžitá investice do její obnovy. Celková velikost pozemku činí 647 m², z čehož je 340 m² určeno jako zastavěná plocha včetně nádvoří a zbývajících 307 m² tvoří zahrada, která nabízí prostor pro relaxaci nebo zahradničení. K domu náleží také kompletní přípojky na elektřinu, vodu a plyn, což poskytuje pohodlí moderního bydlení. Odpady jsou prozatím svedeny do vlastního septiku, což je řešení, které může být v budoucnu přizpůsobeno potřebám nového majitele. Nemovitost se nachází v klidné a vyhledávané lokalitě nedaleko centra obce, která zaručuje výbornou dostupnost všech důležitých služeb, jako jsou obchody, školy nebo lékařská péče. Tento dům je ideální jak pro ty, kteří hledají budoucí vlastní bydlení pro rozšířenou rodinu, tak i jako atraktivní investiční příležitost pro menší developery, kteří chtějí rozšířit svůj portfolio. Pro vážné zájemce je k dispozici částečná dokumentace budoucího stavu, která poskytne lepší představu o potenciálu tohoto projektu. Pro více informací a prohlídku nemovitosti mě neváhejte kontaktovat.

Parametry domu

Cena
5 390 000 Kč /za nemovitost Spočítat hypotéku
Aktualizováno
11. 11. 2025
Adresa
Dobrá
ID
97863
Stavba
Cihlová
Stav objektu
Dobrý
Typ objektu
Patrový
Druh objektu
Samostatný
Lokalita objektu
Centrum obce
Užitná plocha
600 m2
Zastavěná plocha
200 m2
Podlahová plocha
300 m2
Plocha pozemku
647 m2
Plocha zahrady
300 m2
Třída energetické náročnosti
G - Mimořádně nehospodárná
Elektřina
230V, 400V
Plyn
Plynovod
Odpad
Septik
Komunikace
Asfaltová
Doprava
Vlak, Dálnice, Silnice, MHD, Autobus
Voda
Vodovod
Balkon
Garáž
Sklep

Kontaktovat makléře

Máte zájem o tento dům?

Tímto, v souladu s nařízením Evropského parlamentu a Rady (EU) 2016/679, v platném znění, prohlašuji, že mi je alespoň 16 let a uděluji tak svůj souhlas se zpracováním zadaných údajů (jméno, telefon, e-mail, ip adresa) společnosti B3 Technology, s.r.o., IČ: 07330600, se sídlem Novostavby 126/23, 435 11 Lom (správce dat), za účelem předání dotazu z tohoto formuláře Vámi vybranému inzerentovi a zpětného kontaktování mé osoby. Osobní údaje bude správce zpracovávat manuálně i automaticky přímo prostřednictvím svých zaměstnanců. Informace předané tímto formulářem budou uloženy v databázi správce maximálně po dobu 10 let. Odvolání souhlasu s uložením a zpracováním poskytnutých dat lze e-mailem na info@bydlisnami.cz. V případě podezření na neoprávněné použití Vámi poskytnutých údajů máte právo předat podnět k šetření Úřadu pro ochranu osobních údajů. Více informací
Chystáte se prodat nemovitost?
Pomůžeme Vám!

Inzerát si prohlédlo 164 lidí

Prodejce

Daniel Bučko

Daniel Bučko

Hlídací pes

Chcete dostávat emailem podobné nabídky prodeje rodinných domů v Dobré?

Podobné nemovitosti