Prodej rodinného domu, 335 m2

175 000 € /za nemovitost Získejte výhodnou HYPOTÉKU
Doporučené firmy

Informace k domu

Na pobřeží Kalábrie v obci Joppolo s kamenitou pláží, nabízíme nemovitost vzdálenou pouhých 200 m od moře.
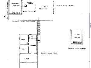
Obyvatelný a zařízený byt 120m2 včetně panoramatické kryté verandy, nyní uzavřený s okny, v domě v 1. patře s venkovním schodištěm.
Budova, kde se byt nachází, má dvě nadzemní podlaží se dvěma samostatnými byty, jeden v přízemí a jeden v prvním patře. Vlastníci těchto jednotek, mají společnou přístupovou třídu ohraničenou bránou, majitel přízemí vchází do prvních šesti metrů s vlastním exkluzivním nádvořím, zatímco vstup nabízené nemovitosti, pokračuje stejnou společnou třídou, vchází na své exkluzivní nádvoří/zahradu, kde je k dispozici místo pro parkování a různá příslušenství, včetně otevřené kůlny a přístavby v přízemí.
Z tohoto dvora vychází schodiště (vybavené schodišťovým výtahem pro invalidy), které vede do prvního patra, kde se nachází tento komfortní byt s uzavřenou verandou.
V přízemí je řada příslušenství včetně: krytého a otevřeného přístřešku na třech stranách 40 metrů čtverečních; přístavba s malým wc, venkovní kuchyně 45m2 se spodním sklepem 30m2; ve dvoře o výměře cca 100m2 je parkovací stání.
Rok výstavby: 1986
Klimatizace a topení: ano
Zásobní nádrž na pitnou vodu: ano
Celková plocha včetně příslušenství 235m2
Ihned obyvatelný
Lokalita je velmi turisticky oblíbená, nákup této nemovitosti je vhodný, jak podnikatelský záměr, tak pořízení si letoviska v lokalitě krásného moře, které je velmi dobře dostupné. Nejbližší letiště REGGIO CALABRIA 85 km a LAMEZIA TERME též 85 Km. Joppolo je malá vesnice, kde jsou veřejné služby vzácné. Cca 21 km od Tropea posazené na vysokém útesu směrem k zálivu Gioia Tauro.
V Itálii zařídíme: - Notářem vyhotovenou smlouvu, včetně úředního překladu z italského jazyka - Převod vlastnictví a jiné nezbytnosti na italských úřadech - K dispozici po celou dobu realizace nákupu italsky mluvící makléř.

Parametry domu

Cena
175 000 € /za nemovitost Spočítat hypotéku
Aktualizováno
29. 3. 2026
Adresa
ID
993
Stavba
Smíšená
Stav objektu
Dobrý
Typ objektu
Patrový
Druh objektu
Samostatný
Lokalita objektu
Klidná část obce
Užitná plocha
120 m2
Zastavěná plocha
235 m2
Podlahová plocha
335 m2
Plocha pozemku
335 m2
Třída energetické náročnosti
G - Mimořádně nehospodárná
Sklep

Kontaktovat makléře

Máte zájem o tento dům?

Tímto, v souladu s nařízením Evropského parlamentu a Rady (EU) 2016/679, v platném znění, prohlašuji, že mi je alespoň 16 let a uděluji tak svůj souhlas se zpracováním zadaných údajů (jméno, telefon, e-mail, ip adresa) společnosti B3 Technology, s.r.o., IČ: 07330600, se sídlem Novostavby 126/23, 435 11 Lom (správce dat), za účelem předání dotazu z tohoto formuláře Vámi vybranému inzerentovi a zpětného kontaktování mé osoby. Osobní údaje bude správce zpracovávat manuálně i automaticky přímo prostřednictvím svých zaměstnanců. Informace předané tímto formulářem budou uloženy v databázi správce maximálně po dobu 10 let. Odvolání souhlasu s uložením a zpracováním poskytnutých dat lze e-mailem na info@bydlisnami.cz. V případě podezření na neoprávněné použití Vámi poskytnutých údajů máte právo předat podnět k šetření Úřadu pro ochranu osobních údajů. Více informací
Chystáte se prodat nemovitost?
Pomůžeme Vám!
Theleadway banner

Inzerát si prohlédlo 18 lidí

Prodejce

Miluše Votava Kolářová

Miluše Votava Kolářová

Hlídací pes

Chcete dostávat emailem podobné nabídky prodeje rodinných domů?

Podobné nemovitosti