Prodej rodinného domu, Račice-Pístovice - Pístovice, 197 m2

Račice-Pístovice

3 990 000 Kč /za nemovitost HYPOTÉKA od 17 833 Kč /za měsíc
Doporučené firmy v Račicích

Informace k domu

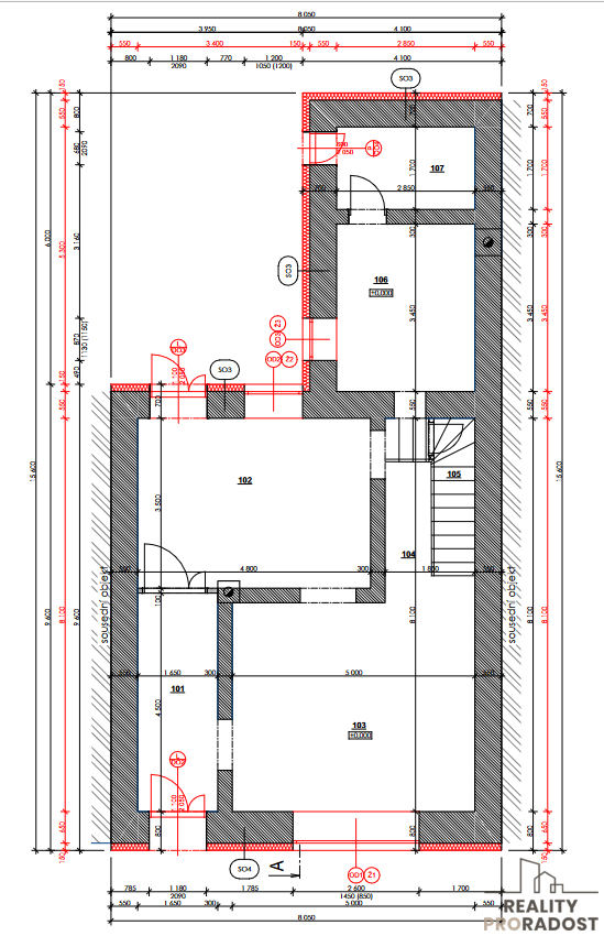
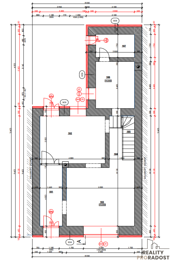
Nabízíme k prodeji prostorný a dispozičně velmi zajímavě řešený řadový rodinný dům o velikosti 4 + 1 + garáž(sklep) v obci Račice-Pístovice, okres Vyškov.
V přízemí - vstupní chodba, velký obývací pokoj, kuchyně, koupelna + technická místnost s východem na zahradu/terasu. Z kuchyně východ na zahradu/terasu.
V patře - ložnice, dětský pokoj, koupelna, pracovna s východem na zahradu.
V suterénu - menší garáž či sklep + domácí vodárna.
Dům s číslem popisným a se stavebním povolením je ve fázi hrubé stavby a je dokončeno:
- elektroinstalace, rozvody vody a rozvody odpadů, příprava podlahového topení - elektro či voda, kompletní nová střecha - vazba a krytina z pálených tašek, plastová okna - trojskla, plastové vstupní dveře stejně jako vrata do garáže(sklepa) zakoupeny a uskladněny k instalaci na závěr dostavby.
Dům je připojen na síť elektro, kanalizaci, vodovodní řad. Plynová přípojka je k dispozici. Výhodou je vlastní studna.
Zahrada nabízí dostatek soukromí k posezení a relaxaci. Ještě nedokončené terénní úpravy nabízí několik možností přizpůsobit zahradu vlastním představám a vytvořit útulné místo korunované výhledem na dominantu obce - zámek Račice (viz foto).
Předpokládaná kalkulace na dokončení stavby cca dva miliony Kč.
Průkaz energetické náročnosti budovy připraven - hodnota C - úsporný.
Na požádání zašleme kompletní projektovou dokumentaci.
Poradíme s financováním, nabídneme chytrou a spočítáme výhodnou hypotéku.
Pokud máte zájem o prohlídku, neváhejte nás kontaktovat.

Parametry domu

Cena
3 990 000 Kč /za nemovitost Spočítat hypotéku
Aktualizováno
24. 4. 2025
Adresa
Račice-Pístovice
ID
23692
Stavba
Cihlová
Stav objektu
V rekonstrukci
Patro
3. z 2
Vybaveno
Ne
Typ objektu
Patrový
Druh objektu
Řadový
Lokalita objektu
Klidná část obce
Užitná plocha
197 m2
Zastavěná plocha
192 m2
Plocha pozemku
309 m2
Plocha zahrady
117 m2
Třída energetické náročnosti
C - Úsporná
Elektřina
230V, 400V
Plyn
Plynovod
Odpad
Veřejná kanalizace
Voda
Vodovod, Studna
Garáž
Převod do OV

Kontaktovat makléře

Máte zájem o tento dům?

Tímto, v souladu s nařízením Evropského parlamentu a Rady (EU) 2016/679, v platném znění, prohlašuji, že mi je alespoň 16 let a uděluji tak svůj souhlas se zpracováním zadaných údajů (jméno, telefon, e-mail, ip adresa) společnosti B3 Technology, s.r.o., IČ: 07330600, se sídlem Novostavby 126/23, 435 11 Lom (správce dat), za účelem předání dotazu z tohoto formuláře Vámi vybranému inzerentovi a zpětného kontaktování mé osoby. Osobní údaje bude správce zpracovávat manuálně i automaticky přímo prostřednictvím svých zaměstnanců. Informace předané tímto formulářem budou uloženy v databázi správce maximálně po dobu 10 let. Odvolání souhlasu s uložením a zpracováním poskytnutých dat lze e-mailem na info@bydlisnami.cz. V případě podezření na neoprávněné použití Vámi poskytnutých údajů máte právo předat podnět k šetření Úřadu pro ochranu osobních údajů. Více informací
Chystáte se prodat nemovitost?
Pomůžeme Vám!

Inzerát si prohlédlo 242 lidí

Prodejce

Miroslav Holý

Miroslav Holý

Hlídací pes

Chcete dostávat emailem podobné nabídky prodeje rodinných domů v Račicích?

Top nabídky

Podobné nemovitosti