Prodej bytu 2+kk, Brno, Antonína Slavíka, 54 m2

Antonína Slavíka, Brno-sever

Cena na vyžádání /za nemovitost Získejte výhodnou HYPOTÉKU

(cena u makléře)

Doporučené firmy v Brně

Pojištění a finance

Informace k bytu

Výstavba zahájena v srpnu 2025.

V rámci předprodeje , po nabytí právní moci stavebního povolení Vám nabízíme byt 2+kk v exkluzivní lokalitě na ulici Antonína Slavíka.
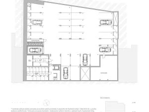
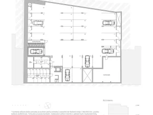
Luxusní a moderní 7-podlažní bytový dům s 56 jednotkami pro bydlení o dispozicích od 1+kk až 4+kk s výměrou od cca 40 m2 po rozměrově nadstandardní bydlení o výměře 116m2 nabídne vysoký standard technologického vybavení současně s ohledem na ekologiia udržitelnost. Velkou výhodou je bezprostřední blízkost zeleně díky umístění na hraně rozsáhlého vnitrobloku se vzrostlými stromy. Díky velkým balkonům je zajištěno i pasivní stínění u bytů do zahrady.

Byt se skládá z předsíně s možností vestavěných skříní a místa pro pračku a sušičku , koupelny se sprchovým koutem a toaletou , obývacího pokoje s kuchyňským koutem a terasou s nádherným výhledem do klidného vnitrobloku a ložnice.

Novostavba moderního bytového domu Rezidence Slavíka, která vznikne v ceněné Brněnské čtvrti Černá Pole, na dohled od slavné vily Tugendhat, nabídne luxusní bydlení v centru města s krásným výhledem na Brněnské panorama s hradem Špilberk.
Situováním nad jihozápadním svahem stavba nabídne působivý výhled na centrum města a hrad Špilberk.
Na pozemku stály původně 2 historické bytové domy z 19.století, které byly zničeny při bombardování Brna v r. 1944. Realizací projektu Rezidence Slavíka pozemek opět ožije.

Bydlení v centru Brna - lukrativní čtvrť Černá Pole
Jedné z nejvíce ceněných čtvrtí, pouhých několik set metrů od slavné Vily Tugendhat a Vily Löw-Beer. Toto místo nabízí bohaté občanské vybavení - restaurace, kavárny, školy i kulturní vyžití.

Klid a odpočinek v nedalekém parku Lužánky
Největší Brněnský park se nachází doslova několik kroků od vchodu do rezidence.

Působivý výhled
Situováním nad jihozápadním svahem stavba nabídne výhled na centrum města a hrad Špilberk.

Procházkou do centra
Rezidence je situována v docházkové vzdálenosti historického centra skrze zástavbu z 19. století s bohatě zdobenými fasádami a zelenými vnitrobloky.

Prostředí
• bohaté prosklení s výhledy
• prostorné balkony s pasivním stíněním jednotek na jižní fasádě
• společně využitelná část zahrady ve vnitrobloku

Komfort
• vysoký standard bydlení
• bezbariérový přístup, prostorný vstupní vestibul
• chlazení bytových jednotek obrácených na jih
• rekuperace ve většině jednotek
• vybrané byty s podlahovým vyhříváním

Vyřešené parkování
• 2 podlaží podzemního parkování v objektu s autovýtahem
• dostatek sklepních kójí

Ekologie
• navržena zelená střecha
• uvažována vlastní FVE elektrárna

Více informací Vám velmi rád poskytnu na osobní schůzce.
Prodávající si vyhrazuje právo vybrat kupujícího na základě jím zvolených kritérií.

Parametry bytu

Cena
Cena na vyžádání Spočítat hypotéku
Poznámka k ceně
cena u makléře
Aktualizováno
3. 5. 2026
Adresa
Antonína Slavíka, Brno-sever
ID
223-NP02735
Stavba
Cihlová
Stav objektu
Novostavba
Patro
3. z 7
Lokalita objektu
Centrum obce
Vlastnictví
Osobní
Užitná plocha
54 m2
Podlahová plocha
54 m2
Třída energetické náročnosti
B - Velmi úsporná
Ukazatel energetické náročnosti
117 kWh/m2 za rok
Odpad
Veřejná kanalizace
Komunikace
Asfaltová
Telekomunikace
Internet, Kabelová televize, Kabelové rozvody
Voda
Vodovod
Balkon
Sklep
Výtah
Bezbarierový přístup
Nízkoenergetický

Kontaktovat makléře

Máte zájem o tento byt?

Tímto, v souladu s nařízením Evropského parlamentu a Rady (EU) 2016/679, v platném znění, prohlašuji, že mi je alespoň 16 let a uděluji tak svůj souhlas se zpracováním zadaných údajů (jméno, telefon, e-mail, ip adresa) společnosti B3 Technology, s.r.o., IČ: 07330600, se sídlem Novostavby 126/23, 435 11 Lom (správce dat), za účelem předání dotazu z tohoto formuláře Vámi vybranému inzerentovi a zpětného kontaktování mé osoby. Osobní údaje bude správce zpracovávat manuálně i automaticky přímo prostřednictvím svých zaměstnanců. Informace předané tímto formulářem budou uloženy v databázi správce maximálně po dobu 10 let. Odvolání souhlasu s uložením a zpracováním poskytnutých dat lze e-mailem na info@bydlisnami.cz. V případě podezření na neoprávněné použití Vámi poskytnutých údajů máte právo předat podnět k šetření Úřadu pro ochranu osobních údajů. Více informací
Chystáte se prodat nemovitost?
Pomůžeme Vám!
Theleadway banner

Inzerát si prohlédlo 30 lidí

Prodejce

Mgr. Michal Malaník

Mgr. Michal Malaník

Hlídací pes

Chcete dostávat emailem podobné nabídky prodeje bytů 2+kk v Brně?

Podobné nemovitosti