Prodej pozemku pro bydlení, Olomouc - Svatý Kopeček, 2254 m2

Olomouc, Svatý Kopeček

6 760 000 Kč /za nemovitost HYPOTÉKA od 30 213 Kč /za měsíc
Doporučené firmy v Olomouci

Informace k pozemku

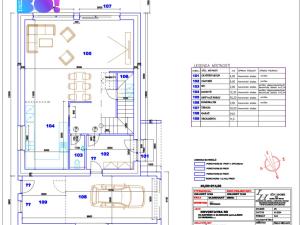
Exkluzivně nabízíme k prodeji rozsáhlý stavební pozemek se schváleným stavebním projektem o celkové rozloze 2 254 m² v klidné a rodinné lokalitě Svatý Kopeček, jen kousek od Olomouce. Tento pozemek je ideálním místem pro výstavbu dvoupatrového domu o dispozici 4+kk s garáží, který má zastavěnou plochu 137 m² a užitnou plochu 180 m². V tomto projektu se snoubí moderní architektura s funkčním uspořádáním interiéru, které je přizpůsobeno pro pohodlný život rodiny s dětmi.

V přízemí najdeme - vstup o rozloze 4 m², zádveří o velikosti 9 m², WC 3 m², kuchyň 12,3 m², prostorný obývací pokoj o rozloze 55,2 m², komoru 3 m², terasu o velikosti 30 m², garáž 24 m² a technickou místnost 11 m².
V prvním patře je hala o dispozici 16,2 m², koupelna 8,25 m², WC 3 m², pokoj 1 o velikosti 21 m², pokoj 2 o velikosti 21 m², ložnice o rozloze 20 m² a šatna 5 m².
Vytápění je navrženo podlahovým systémem, vytápění - tepelné čerpadlo + navrženo alternativní topení krbem. Energetická náročnost budovy je dle projektu zařazena do třídy B.

Pozemek se nachází v dostupnosti veškeré občanské vybavenosti, v blízkosti je mateřská a základní škola. Svatý Kopeček je velmi dobře obsluhován městskou hromadnou dopravou z Olomouce. Kromě toho budete mít v blízkosti krásnou přírodu, která vás zve k procházkám a rodinným výletům. Atraktivní lokalitu doplňuje i blízkost ZOO Olomouc či Baziliky Navštívení Panny Marie, které nabízejí skvělé možnosti pro rodinné výlety a volnočasové aktivity.

Pozemek se výborně hodí pro rodiny, které hledají prostorný dům s velkou zahradou, ideální pro všestranné využití. Zahrada poskytuje dostatek prostoru pro venkovní aktivity, zahradničení nebo pořádání rodinných setkání. Celkově se jedná o ideální místo pro rodiny, které hledají komfortní a bezpečné bydlení v krásné přírodě, a zároveň mají rádi dostupnost městských služeb.
V případě zájmu o prohlídku nás neváhejte kontaktovat.
S vyřízením financování Vám také rádi pomůžeme.

Parametry pozemku

Cena
6 760 000 Kč /za nemovitost Spočítat hypotéku
Aktualizováno
26. 9. 2025
Adresa
Olomouc, Svatý Kopeček
ID
6404
Lokalita objektu
Centrum obce
Plocha pozemku
2254 m2
Odpad
Veřejná kanalizace
Komunikace
Betonová
Doprava
Silnice, MHD
Převod do OV

Kontaktovat makléře

Máte zájem o tento pozemek?

Tímto, v souladu s nařízením Evropského parlamentu a Rady (EU) 2016/679, v platném znění, prohlašuji, že mi je alespoň 16 let a uděluji tak svůj souhlas se zpracováním zadaných údajů (jméno, telefon, e-mail, ip adresa) společnosti B3 Technology, s.r.o., IČ: 07330600, se sídlem Novostavby 126/23, 435 11 Lom (správce dat), za účelem předání dotazu z tohoto formuláře Vámi vybranému inzerentovi a zpětného kontaktování mé osoby. Osobní údaje bude správce zpracovávat manuálně i automaticky přímo prostřednictvím svých zaměstnanců. Informace předané tímto formulářem budou uloženy v databázi správce maximálně po dobu 10 let. Odvolání souhlasu s uložením a zpracováním poskytnutých dat lze e-mailem na info@bydlisnami.cz. V případě podezření na neoprávněné použití Vámi poskytnutých údajů máte právo předat podnět k šetření Úřadu pro ochranu osobních údajů. Více informací
Chystáte se prodat nemovitost?
Pomůžeme Vám!

Inzerát si prohlédlo 24 lidí

Prodejce

Bc. Tereza Krajíčková, MBA

Bc. Tereza Krajíčková, MBA

Hlídací pes

Chcete dostávat emailem podobné nabídky prodeje pozemků pro bydlení v Olomouci?

Podobné nemovitosti