Remax Monarcha

Prodej komerční nemovitosti, Olomouc, Heydukova, 1000 m2

Heydukova, Olomouc

19 500 000 Kč /za nemovitost HYPOTÉKA od 87 153 Kč /za měsíc

(včetně právních služeb, včetně provize RK)

Doporučené firmy v Olomouci

Informace k nemovitosti

Nabízíme k prodeji unikátní nemovitost s bohatou historií – víceúčelový objekt známý jako Dělnický dům, situovaný v atraktivní a dobře dostupné části města Olomouc - Černovír. Jedná se o historický objekt s výrazným architektonickým charakterem a širokým potenciálem dalšího využití – kulturní, administrativní, obchodní i jiné.

Budovu postavila Dělnická tělocvičná jednota v roce 1934. V minulosti sloužila jako kulturní a společenské centrum s tělocvičnou (sálem) a hostincem v přízemí. V prostorném kulturním sále se štukovou výzdobou vystupovali přední umělci československého undergroundu, jako olomoucký rodák Karel Plíhal, Jaroslav Chromek, Psí vojáci a další.

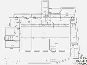
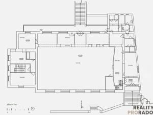
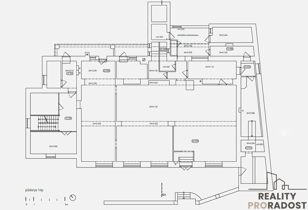
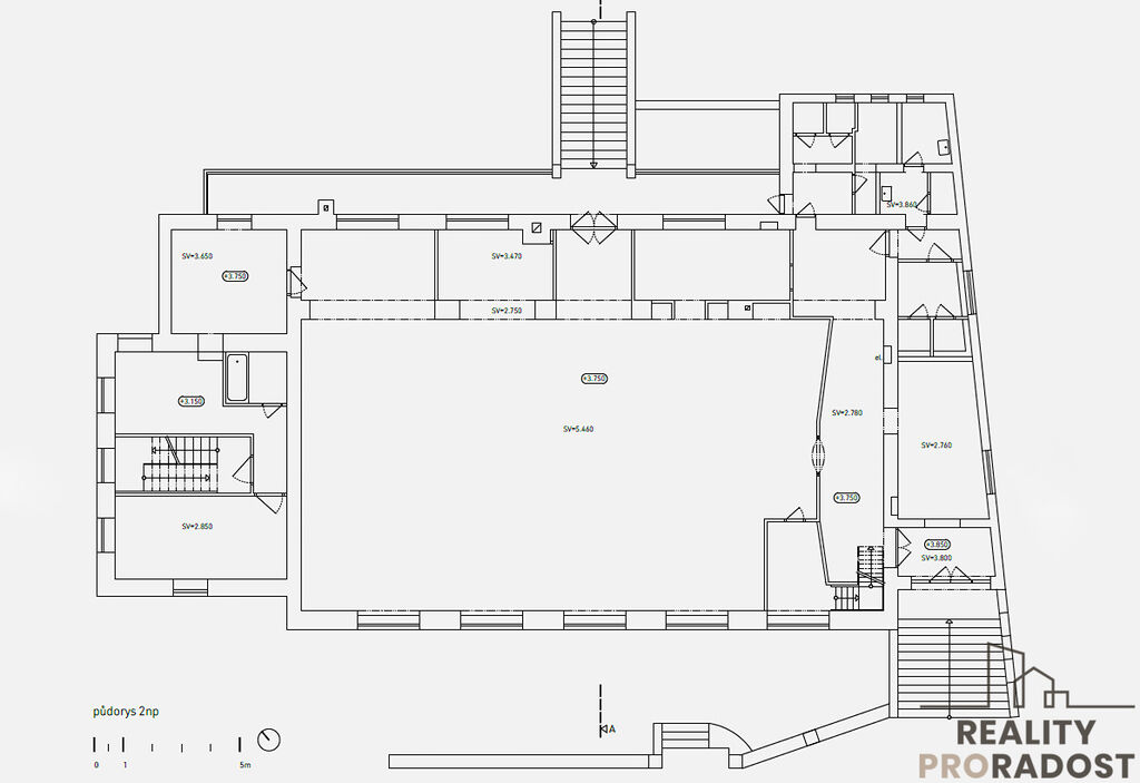
Dispozičně nabízí v 1.NP užitnou plochu cca 363 m2 - velký otevřený prostor se zázemím, v 2.NP užitnou plochu cca 363 m2 - prostorný sál (cca 250 m2) se zázemím, v 3.NP. užitnou plochu cca 80 m2, dále půdu – cca 200 m2.
Celkem cca 1.000 m2 užitné plochy na pozemku o celkové ploše 1.830 m2.

Vzhledem k velikosti, umístění a dispozičnímu řešení je objekt (po rekonstrukci) vhodný pro kulturní instituce, školská zařízení, kancelářské využití, povozovny a jiné. Dle platného územního plánu lze pozemky využít jako plochy veřejného vybavení.

Výhody:
• Zajímavá budova s historickým kontextem
• Strategická poloha s výbornou dostupností
• Velkorysé vnitřní prostory s původními prvky
• Možnost víceúčelového využití
• Vlastní pozemek
• Potenciál pro dotace na rekonstrukci

Objekt čeká na nového majitele, který mu vrátí jeho zašlou slávu.

Parametry nemovitosti

Cena
19 500 000 Kč /za nemovitost Spočítat hypotéku
Poznámka k ceně
včetně právních služeb, včetně provize RK
Aktualizováno
18. 9. 2025
Adresa
Heydukova, Olomouc
ID
26268
Stavba
Cihlová
Stav objektu
Před rekonstrukcí
Typ objektu
Patrový
Užitná plocha
1000 m2
Zastavěná plocha
445 m2
Třída energetické náročnosti
G - Mimořádně nehospodárná
Elektřina
230V, 400V
Voda
Vodovod
Převod do OV

Kontaktovat makléře

Máte zájem o tuto nemovistost?

Tímto, v souladu s nařízením Evropského parlamentu a Rady (EU) 2016/679, v platném znění, prohlašuji, že mi je alespoň 16 let a uděluji tak svůj souhlas se zpracováním zadaných údajů (jméno, telefon, e-mail, ip adresa) společnosti B3 Technology, s.r.o., IČ: 07330600, se sídlem Novostavby 126/23, 435 11 Lom (správce dat), za účelem předání dotazu z tohoto formuláře Vámi vybranému inzerentovi a zpětného kontaktování mé osoby. Osobní údaje bude správce zpracovávat manuálně i automaticky přímo prostřednictvím svých zaměstnanců. Informace předané tímto formulářem budou uloženy v databázi správce maximálně po dobu 10 let. Odvolání souhlasu s uložením a zpracováním poskytnutých dat lze e-mailem na info@bydlisnami.cz. V případě podezření na neoprávněné použití Vámi poskytnutých údajů máte právo předat podnět k šetření Úřadu pro ochranu osobních údajů. Více informací
Chystáte se prodat nemovitost?
Pomůžeme Vám!

Inzerát si prohlédlo 17 lidí

Prodejce

Jan Dostál

Jan Dostál

Hlídací pes

Chcete dostávat emailem podobné nabídky prodeje komerčních nemovitostí v Olomouci?

Podobné nemovitosti