Kunín
Prodej rodinného domu v Kuníně – ideální pro bydlení i podnikání.
Nabízíme k prodeji prostorný rodinný dům v obci Kunín, který představuje skvělou investiční příležitost pro rodinné bydlení i podnikání. Dům je situován u hlavní cesty, což jej činí vhodným i pro komerční využití – například pro sídlo firmy, ordinaci, kanceláře či provozovnu.
Hlavní benefity:
•	Dvougenerační bydlení – dům disponuje dvěma samostatnými bytovými jednotkami.
•	Možnost rozšíření – půdní prostor umožňuje vestavbu dalšího bytu či kanceláří.
•	Strategická poloha – umístění u hlavní komunikace nabízí výbornou dostupnost a potenciál pro podnikání.
•	Nová střecha – tašky Creaton Rapido (černá), včetně kompletně nových krovů a pozednic (realizovaná v roce 2024).
•	Moderní vytápění – nový kondenzační plynový kotel Baxi Compact 24 s ohřevem teplé vody (instalován v roce 2025).
•	Dva samostatné elektroměry – možnost rozdělení energií mezi jednotky nebo podnikání.
•	Velikost zahrady – přibližně 350 m².
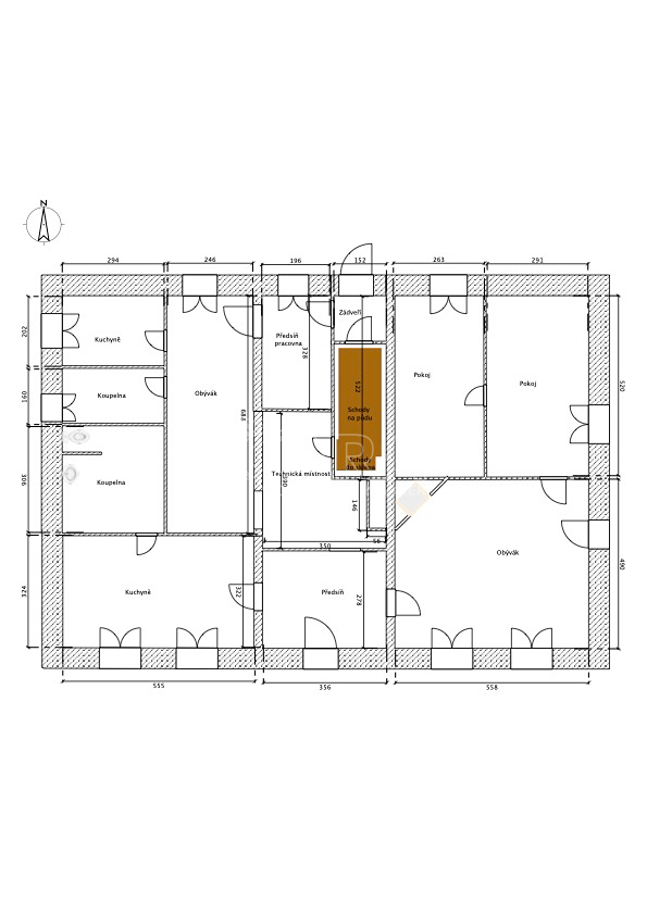
Dispozice domu:
Dům se skládá z bytu 3+1, technické místnosti, samostatného bytu 1+1, půdy a je částečně podsklepený.
Technický stav a možnosti úprav:
Dům je částečně izolován, má dvojkomorová plastová okna a rozvody elektřiny v mědi. Aktuálně je nutné provést některé stavební úpravy ke zlepšení celkového stavu domu. Technické doporučení je k dispozici.
Lokalita a občanská vybavenost:
Kunín je klidná a příjemná obec s veškerou občanskou vybaveností. V blízkosti se nachází škola, školka, obchod, restaurace a výborné spojení do blízkých měst.
Pokud hledáte prostor pro své podnikání, který lze využít i pro vlastní bydlení, neváhejte mě kontaktovat. Ráda Vám poskytnu podrobnější informace a domluvím prohlídku.
Uvedené výměry jsou orientační. Veškeré zveřejněné údaje obsažené v tomto inzerátu mají pouze informativní charakter a nejsou nabídkou ve smyslu § 1731 nebo § 1732 občanského zákoníku, ani se nejedná o veřejný příslib dle § 1733 občanského zákoníku.
 
                                        Šafaříkova 201/17, Praha
Máte zájem o tuto nemovistost?
Inzerát si prohlédlo 14 lidí
 
                                Kamila Ženčáková Kopecká
Chcete dostávat emailem podobné nabídky prodeje obchodních prostor v Kuníně?