Pronájem kanceláře, Praha - Lhotka, Na dlouhé mezi, 436 m2 (ID: 2346496)

Na dlouhé mezi, Praha 4, Lhotka

75 000 Kč /za měsíc Získejte výhodnou HYPOTÉKU

(+ služby, 2x kauce a provize RK)

Doporučené firmy v Praze 4

Stěhovací služby

Výkup a prodej starého nábytku

Informace k nemovitosti

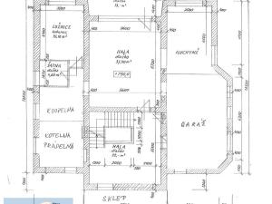
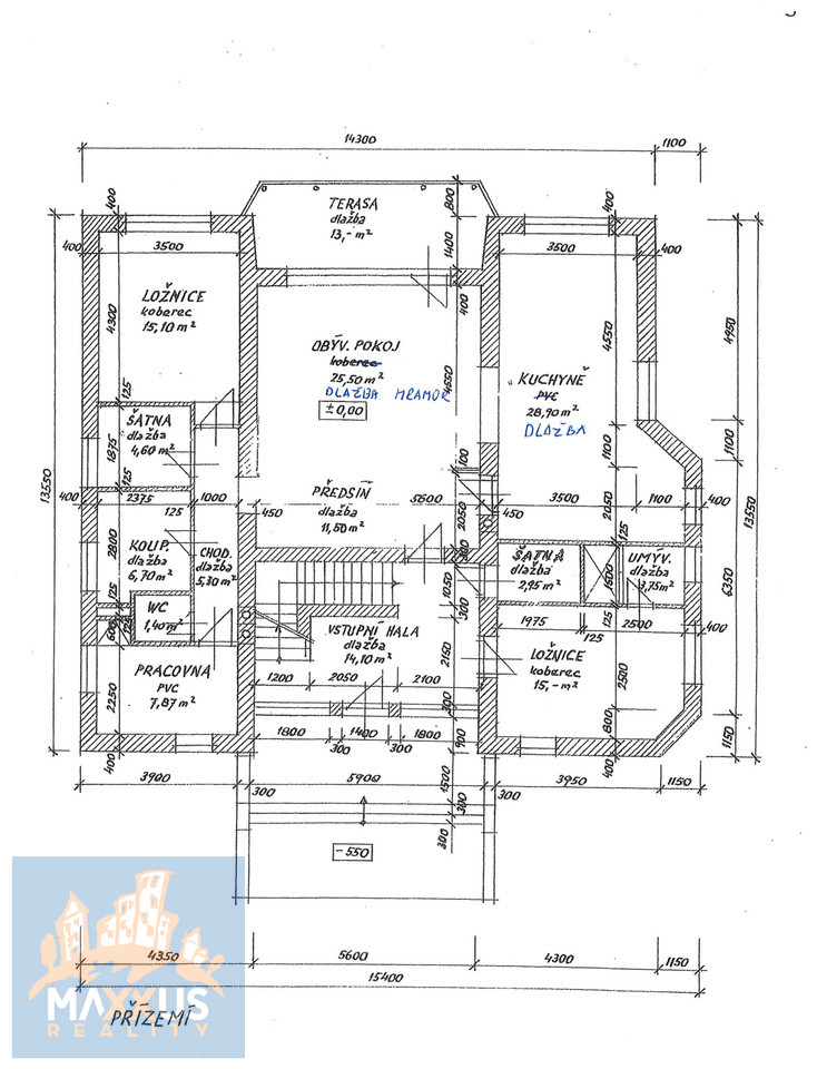
Pronájem nadčasové dvougenerační vily o dispozici 11+2 se zahradní terasou a garáží. Vila se nachází v oblíbené a vyhledávané lokalitě Prahy 4 – Lhotka. Vila se zastavěnou plochou 236 m2 leží na pozemku s rozlohou 1044 m2. Na pozemku zahradou se vzrostlou a udržovanou vegetací. V blízkosti příroda a skvělá dopravní dostupnost - tram, bus, v okolí také mezinárodní škola. Dům o velkorysé užitné ploše 436 m2 se rozkládá ve třech podlaží. V suterénu domu se nachází hala se schodištěm, ze kterého se vchází do kotelny/prádelny, garáže, sklepu a obytné části. Z obytné části je vstup do vybavené kuchyně a ložnice s vlastní šatnou a koupelnou. K obývací místnosti náleží zahradní terasa 13 m2 ze které je dále vstup do zahrady. V přízemí domu se nachází vstupní schodišťová hala (komunikační uzel) s předsíní a prostorným obývacím pokojem vybaveným krbem na dřevo. Z obývacího pokoje dále vstup do ložnice se šatnou, koupelnou, samostatnou toaletou a pracovnou. Dále je zde spotřebiči vybavená kuchyně o rozloze 28,9 m2. V přízemí domu je samostatný vchod ze vstupní haly do hostinského pokoj s vlastní šatnou i koupelnou. Patro domu je dispozičně řešeno stejně jako přízemí. V podkroví se nachází ateliér vhodný pro pracovnu a úložné prostory. Parkování je možné v garáži či na pozemku. Energie se převádí na nájemce (měsíční odhad za celý dům okolo 12.000,- Kč/měsíc). Dům je volný k nastěhování ihned. Plánky domu jsou na konci galerie. PENB nebyl dodán, a tudíž třída energetické náročnosti je dle vyhlášky 148/2000 Sb. uvedena jako G. Makléř doporučuje prohlídku.

Parametry nemovitosti

Cena
75 000 Kč /za měsíc
Poznámka k ceně
+ služby, 2x kauce a provize RK
Aktualizováno
22. 10. 2025
Adresa
Na dlouhé mezi, Praha 4, Lhotka
ID
7847
Stavba
Cihlová
Stav objektu
Velmi dobrý
Typ objektu
Patrový
Lokalita objektu
Klidná část obce
Užitná plocha
436 m2
Zastavěná plocha
236 m2
Podlahová plocha
1044 m2
Třída energetické náročnosti
G - Mimořádně nehospodárná
Elektřina
230V
Plyn
Plynovod
Odpad
Veřejná kanalizace
Telekomunikace
Telefon, Internet
Doprava
Dálnice, MHD, Autobus
Voda
Vodovod
Garáž

Kontaktovat makléře

Máte zájem o tuto nemovistost?

Tímto, v souladu s nařízením Evropského parlamentu a Rady (EU) 2016/679, v platném znění, prohlašuji, že mi je alespoň 16 let a uděluji tak svůj souhlas se zpracováním zadaných údajů (jméno, telefon, e-mail, ip adresa) společnosti B3 Technology, s.r.o., IČ: 07330600, se sídlem Novostavby 126/23, 435 11 Lom (správce dat), za účelem předání dotazu z tohoto formuláře Vámi vybranému inzerentovi a zpětného kontaktování mé osoby. Osobní údaje bude správce zpracovávat manuálně i automaticky přímo prostřednictvím svých zaměstnanců. Informace předané tímto formulářem budou uloženy v databázi správce maximálně po dobu 10 let. Odvolání souhlasu s uložením a zpracováním poskytnutých dat lze e-mailem na info@bydlisnami.cz. V případě podezření na neoprávněné použití Vámi poskytnutých údajů máte právo předat podnět k šetření Úřadu pro ochranu osobních údajů. Více informací
Chystáte se prodat nemovitost?
Pomůžeme Vám!

Inzerát si prohlédlo 4 lidí

Prodejce

Karel Štaubert

Karel Štaubert

Hlídací pes

Chcete dostávat emailem podobné nabídky pronájmu kanceláří v Praze 4?

Podobné nemovitosti