Prodej rodinného domu, Březinky, 65 m2

Březinky

3 280 000 Kč /za nemovitost HYPOTÉKA od 14 660 Kč /za měsíc

(cena vč. právních služeb a provize RK)

Doporučené firmy v Březinkách

Informace k domu

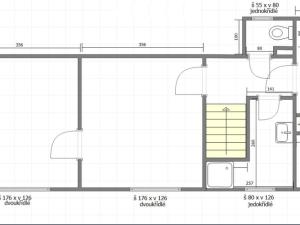
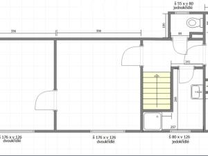
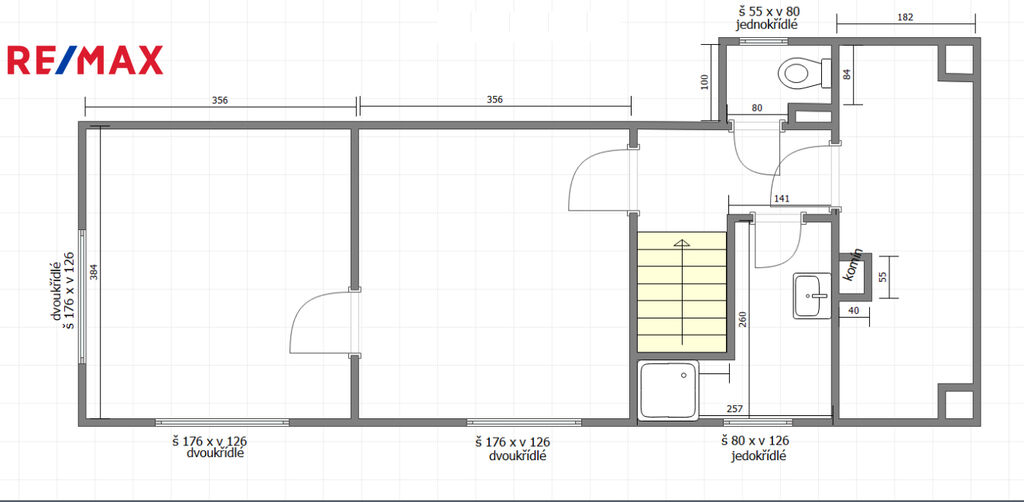
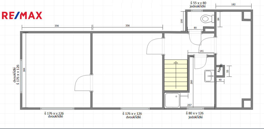
Nabízíme k prodeji tento hezký dvoupodlažní rodinný dům umístěný v klidné obci Březinky. Dům s dobrou dopravní dostupností (Moravská Třebová 18 km, Mohelnice 20 km, Litovel 25 km) je obklopený okolní zástavbou rodinných domů a přírodou. V domě s dispozicí 3+kk naleznete v přízemí obývací místnost s kuchyňským koutem (21 m²), technickou místnost s el. bojlerem (3,2 m²), WC s prostorem pro pračku (4,2 m²). V 2.NP je průchozí místnost (13,5 m²), neprůchozí místnost (13,5 m²), koupelna (4,2 m²) WC (1 m²) a zastřešená terasa (6,8 m²). Dům má především jižní orientaci.

Dům, po celkové rekonstrukci z roku 2024, je napojen na obecní vodovod a elektřinu, odpady jsou svedeny do septiku. V celém domě jsou plastová okna. Jedná se o cihlový dům s dřevěnými trámovými stropy. Střecha je sedlová s plechovou pokrývkou. Ohřev tepla je zajištěn tepelným čerpadlem vzduch-voda a ohřev vody el. bojlerem. Podlaha v přízemí je pokryta dlažbou; v 2.NP je laminátová (mimo koupelnu a WC, kde je dlažba). Vnitřní omítky jsou štukové. Zajistíme Vám financování koupě této nemovitosti – bezplatná konzultace s našim finančním poradcem. Bližší informace u makléře nabídky.

Parametry domu

Cena
3 280 000 Kč /za nemovitost Spočítat hypotéku
Poznámka k ceně
cena vč. právních služeb a provize RK
Aktualizováno
22. 10. 2025
Adresa
Březinky
ID
160-NP02744
Stavba
Cihlová
Stav objektu
Po rekonstrukci
Typ objektu
Patrový
Druh objektu
Samostatný
Lokalita objektu
Klidná část obce
Užitná plocha
65 m2
Zastavěná plocha
53 m2
Plocha pozemku
76 m2
Třída energetické náročnosti
D - Méně úsporná
Elektřina
230V
Odpad
Septik, Jímka
Komunikace
Asfaltová
Doprava
Silnice, Autobus
Voda
Vodovod
Převod do OV
Parkování

Kontaktovat makléře

Realitní kancelář

Logo RE/MAX MONARCHA

RE/MAX MONARCHA

Masarykova třída 105/29, Olomouc

Chystáte se prodat nemovitost?
Pomůžeme Vám!

Máte zájem o tento dům?

Tímto, v souladu s nařízením Evropského parlamentu a Rady (EU) 2016/679, v platném znění, prohlašuji, že mi je alespoň 16 let a uděluji tak svůj souhlas se zpracováním zadaných údajů (jméno, telefon, e-mail, ip adresa) společnosti B3 Technology, s.r.o., IČ: 07330600, se sídlem Novostavby 126/23, 435 11 Lom (správce dat), za účelem předání dotazu z tohoto formuláře Vámi vybranému inzerentovi a zpětného kontaktování mé osoby. Osobní údaje bude správce zpracovávat manuálně i automaticky přímo prostřednictvím svých zaměstnanců. Informace předané tímto formulářem budou uloženy v databázi správce maximálně po dobu 10 let. Odvolání souhlasu s uložením a zpracováním poskytnutých dat lze e-mailem na info@bydlisnami.cz. V případě podezření na neoprávněné použití Vámi poskytnutých údajů máte právo předat podnět k šetření Úřadu pro ochranu osobních údajů. Více informací
Chystáte se prodat nemovitost?
Pomůžeme Vám!

Inzerát si prohlédlo 19 lidí

Prodejce

Karel Pazdera

Karel Pazdera

Hlídací pes

Chcete dostávat emailem podobné nabídky prodeje rodinných domů v Březinkách?

Top nabídky

Podobné nemovitosti