Prodej bytu 4+1, Praha - Vinohrady, Uruguayská, 165 m2

Uruguayská, Praha 2

29 990 000 Kč /za nemovitost HYPOTÉKA od 134 037 Kč /za měsíc
Doporučené firmy v Praze 2

Stěhovací služby

Výkup a prodej starého nábytku

Informace k bytu

Koupě bytu na pražských Vinohradech patří mezi nejstabilnější rezidenční investice: tradiční čtvrť s aktivním společenským životem, špičkovými školami, kavárnami a restauracemi, perfektní dopravní dostupností do centra a množstvím zeleně v okolních parcích.

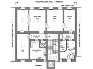
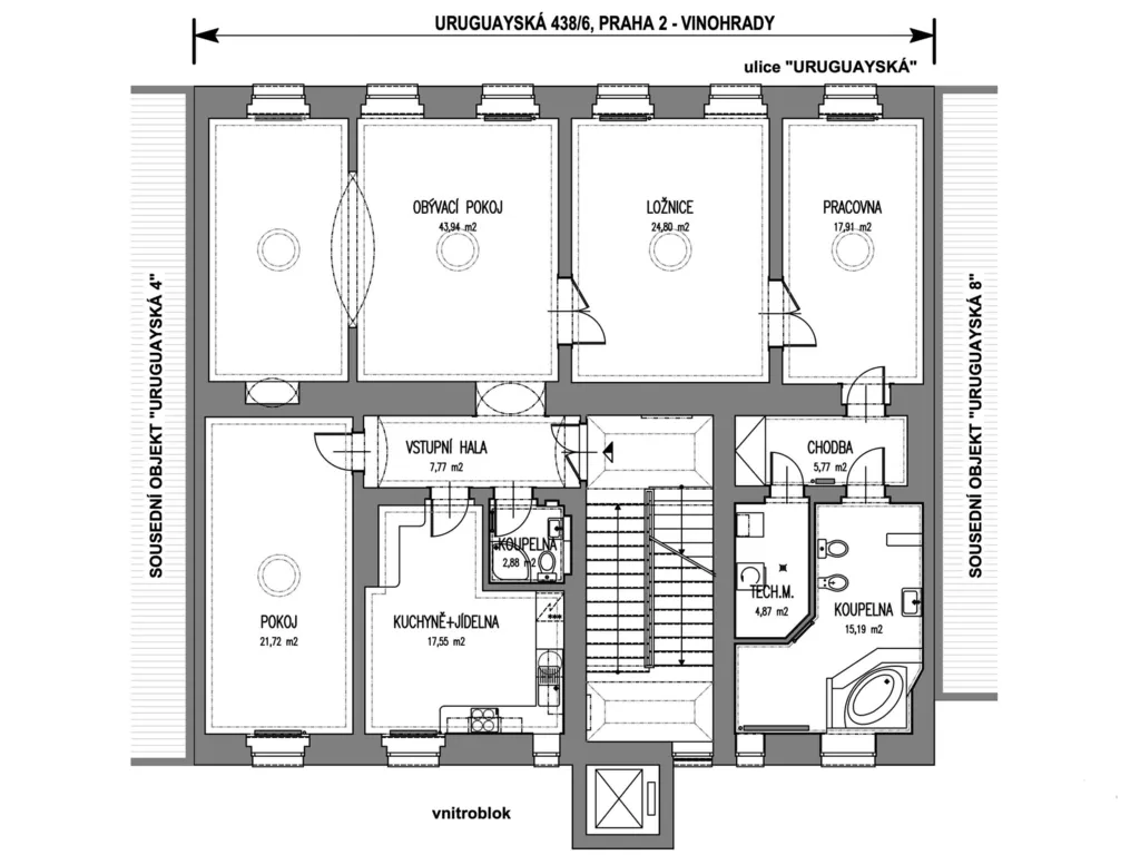
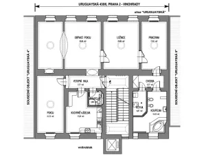
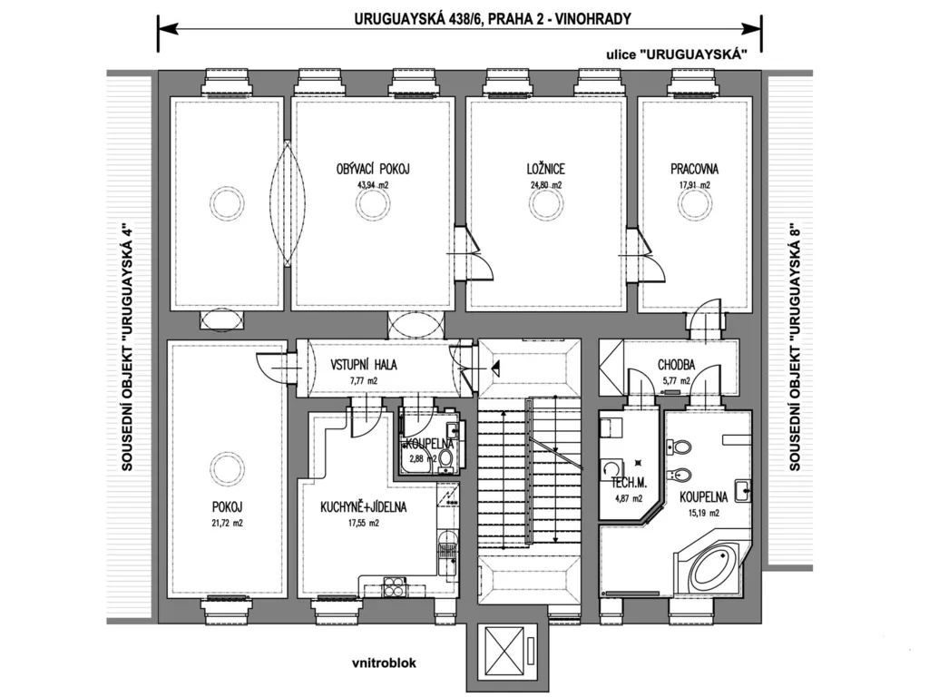
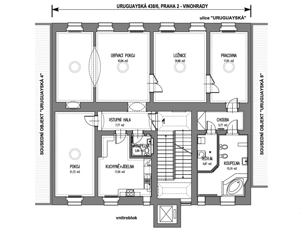
Nabízíme prostorný byt 4+1 o užitné ploše 162,4 m² ve 3. NP / 2. patře udržovaného historického cihlového domu ve Vinohradech, ul. Uruguayská. Jednotka zabírá celé patro a vznikla sloučením tří původních bytů, což zajišťuje mimořádné soukromí i flexibilitu pro další úpravy dispozic.

Současné uspořádání: velký obývací prostor vzniklý propojením dvou místností + herna / hudební kout s klavírním křídlem, samostatná kuchyně s jídelnou, dále tří velké pokoje, dvě koupelny, samostatné WC, technická místnost a široké chodby. Celkové členění ploch: obytná část 108,4 m², kuchyně + jídelna 17,6 m², zázemí (koupelny, komunikace, technická část) 36,4 m².

Byt prošel při sloučení celkovou modernizací – nové měděné elektro rozvody, nové rozvody vody a kanalizace s měřením T/S, vytápění a TUV z vlastního plynového kotle se zásobníkem, rozvody do radiátorů, příprava na vysokorychlostní internet a kabelovou TV (optická síť). Stav hodnocen jako velmi dobrý; konstrukce bez zjevných poruch.

Dům je reprezentativní vinohradská činžovní stavba z přelomu 19./20. století; vstupní vestibul navazuje na průjezd do zeleného vnitrobloku, schodiště po kompletní renovaci, přístup k výtahu z mezipodest.

Lokalita: stabilizované obytné území v městské památkové zóně Vinohrady; v docházce metro A – Náměstí Míru, tramvaje i autobusy, bohatá občanská vybavenost, parky typu Riegrovy sady. Území napojeno na všechny městské sítě (voda, kanalizace, plyn, elektřina, data) a leží mimo záplavové území.

Právní a technické jistoty: byt v osobním vlastnictví.
Nemovitost se nachází v běžné městské zástavbě mimo zvláštní ochranná nebo bezpečnostní pásma; objekt není v záplavovém území ani v ochranném pásmu kulturní památky dle evidence NPÚ.

Vybavení, materiály & atmosféra
• Původní dřevěná špaletová okna (zachovalá; přirozené větrání, historický charakter).
• Dubové parkety ve většině obytných místností; dlažby ve zázemí.
• Vlastní plynový kotel – topení + TUV (kombinovaný).
• Rozvody v mědi, měřená voda, radiátory.
• Optické datové připojení možné.

Úložné prostory
K bytu náleží sklepní místnost cca 9 m²

Investiční potenciál
Díky historickému sloučení tří bytů lze uvažovat o několika scénářích: zachování velkorysého rodinného bytu, rozčlenění na více apartmánů pro nájemní výnos, či částečná rekonstrukce s vyčleněním pracovny / ordinace (po projednání se stavebním úřadem). Základní podklady v pasportu k dispozici.

Cena a financování
29 990 000 Kč (≈ 185 tis. Kč/m² při 162 m² užitné plochy; sklep 9 m² nezapočten).

Zálohy na společné domovní služby, fond oprav a vodu činí pouze 6 097 Kč / měsíc.
SVJ je dobře hospodařící, bez dluhů a s řádně vedeným fondem oprav.
Byt je bez právních vad, hypoték a závazků

Parametry bytu

Cena
29 990 000 Kč /za nemovitost Spočítat hypotéku
Aktualizováno
2. 2. 2026
Adresa
Uruguayská, Praha 2
ID
Vinohrady
Stavba
Smíšená
Stav objektu
Velmi dobrý
Patro
3. z 5
Vybaveno
Částečně
Lokalita objektu
Klidná část obce
Vlastnictví
Osobní
Užitná plocha
165 m2
Podlahová plocha
175 m2
Třída energetické náročnosti
D - Méně úsporná
Ukazatel energetické náročnosti
261 kWh/m2 za rok
Plyn
Plynovod
Odpad
Veřejná kanalizace
Komunikace
Asfaltová
Telekomunikace
Telefon, Internet, Kabelová televize, Kabelové rozvody
Doprava
Vlak, Dálnice, Silnice, MHD, Autobus
Sklep
Výtah

Kontaktovat makléře

Máte zájem o tento byt?

Tímto, v souladu s nařízením Evropského parlamentu a Rady (EU) 2016/679, v platném znění, prohlašuji, že mi je alespoň 16 let a uděluji tak svůj souhlas se zpracováním zadaných údajů (jméno, telefon, e-mail, ip adresa) společnosti B3 Technology, s.r.o., IČ: 07330600, se sídlem Novostavby 126/23, 435 11 Lom (správce dat), za účelem předání dotazu z tohoto formuláře Vámi vybranému inzerentovi a zpětného kontaktování mé osoby. Osobní údaje bude správce zpracovávat manuálně i automaticky přímo prostřednictvím svých zaměstnanců. Informace předané tímto formulářem budou uloženy v databázi správce maximálně po dobu 10 let. Odvolání souhlasu s uložením a zpracováním poskytnutých dat lze e-mailem na info@bydlisnami.cz. V případě podezření na neoprávněné použití Vámi poskytnutých údajů máte právo předat podnět k šetření Úřadu pro ochranu osobních údajů. Více informací
Chystáte se prodat nemovitost?
Pomůžeme Vám!

Inzerát si prohlédlo 22 lidí

Prodejce

Sergej Gončarov

Sergej Gončarov

Hlídací pes

Chcete dostávat emailem podobné nabídky prodeje bytů 4+1 v Praze 2?

Podobné nemovitosti