Prodej domu na klíč, Uherský Brod, Losy, 120 m2

Losy, Uherský Brod

8 750 400 Kč /za nemovitost HYPOTÉKA od 39 109 Kč /za měsíc

(Cena včetně výstavby RD, IS, příjezdové komunikace a DPH.)

Doporučené firmy v Uherském Brodu

Informace k domu

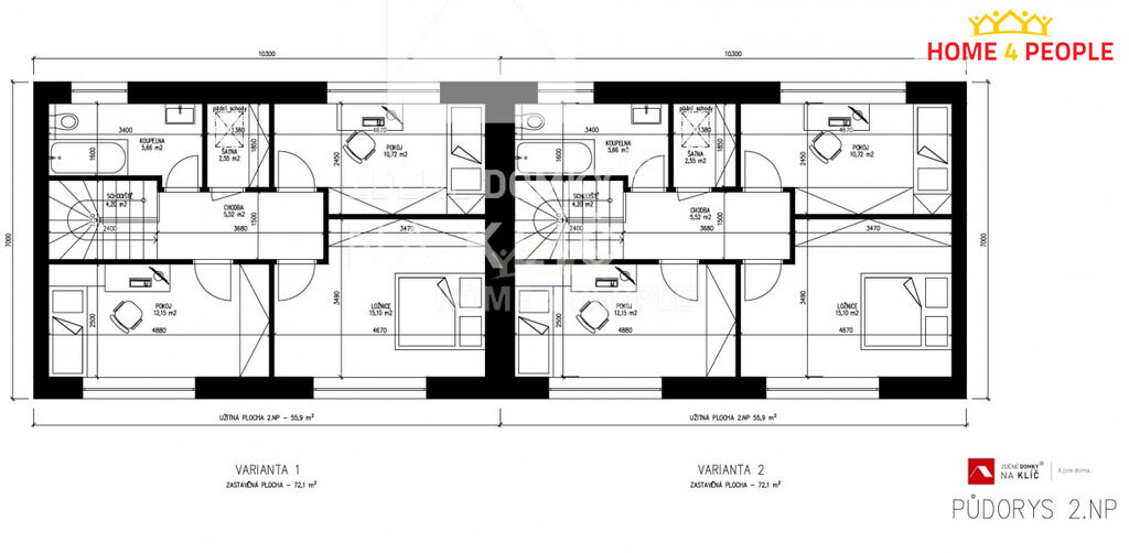
Zprostředkujeme Vám exkluzivní prodej řadového rodinného domu typu ROW 120+G o velikosti 4+kk s garáží o podlahové výměře 120 m² v Uherském Brodě části Těšov. Součásti uvedené ceny, která již zahrnuje DPH je dům na klíč, inženýrské sítě včetně připojeného místa EDG (EON), mimo plynu, příjezdová komunikace, veřejné osvětlení, pozemek a veškeré projektové práce a stavební povolení. Za příplatek je možnost vybudování parkovacího místa, chodníku a terasy. Přípojná místa budou vyvedena na pozemku. Pozemek (číslo.10) o rozloze 678 m² je na klidném místě obce. Šíře pozemku je 11,3 m. Navíc k nabízenému pozemku je i podíl na pozemku za zahradou ve velikosti 141 m², který může sloužit jako přístupová část nebo sad. Dle územního plánu je pozemek veden a schválen pro rodinné bydlení. Jedná se o zděnou stavu a nabízí se ve variantě na klíč. Topení je řešeno nízko nákladovým podlahovým topením, rekuperací a fotovoltaickými panely. Uvedená cena domu obsahuje základovou desku, DPH a stavba bude provedena na klíč a předána po kolaudaci k okamžitému užívání. Parametry domu: užitná plocha 120 m² zastavěná plocha domu 72 m². V přízemí domu se nachází hlavní obytný prostor s odděleným kuchyňským koutem, sklad, úložný prostor pod schodištěm, technickou místnost a 2x WC s umyvadlem dvě samostatné zařízené koupelny a garáž. V patře se nachází 3 pokoje, koupelna s WC a šatna. V blízkosti je veškerá občanská vybavenost. Dotaci na fotovoltaické panely vyřídíme. Projekt zahrnuje výstavbu 10 domů. (Součástí ceny není kuchyňská linka a světla – dokážeme za zvýhodněných podmínek zajistit přes naše dodavatele). " Vizualizace je pouze ilustrativní" Financování zajišťujeme a můžete využít našich služeb, při prodeji Vaší nemovitosti. Doporučuji! Ev. číslo: 31369.

Parametry domu

Cena
8 750 400 Kč /za nemovitost Spočítat hypotéku
Poznámka k ceně
Cena včetně výstavby RD, IS, příjezdové komunikace a DPH.
Aktualizováno
1. 10. 2025
Adresa
Losy, Uherský Brod
ID
31369
Stavba
Cihlová
Stav objektu
Ve výstavbě
Typ objektu
Patrový
Druh objektu
Řadový
Lokalita objektu
Klidná část obce
Užitná plocha
120 m2
Zastavěná plocha
72 m2
Podlahová plocha
120 m2
Plocha pozemku
678 m2
Třída energetické náročnosti
A - Mimořádně úsporná
Ukazatel energetické náročnosti
39 kWh/m2 za rok
Garáž

Kontaktovat makléře

Máte zájem o tento dům?

Tímto, v souladu s nařízením Evropského parlamentu a Rady (EU) 2016/679, v platném znění, prohlašuji, že mi je alespoň 16 let a uděluji tak svůj souhlas se zpracováním zadaných údajů (jméno, telefon, e-mail, ip adresa) společnosti B3 Technology, s.r.o., IČ: 07330600, se sídlem Novostavby 126/23, 435 11 Lom (správce dat), za účelem předání dotazu z tohoto formuláře Vámi vybranému inzerentovi a zpětného kontaktování mé osoby. Osobní údaje bude správce zpracovávat manuálně i automaticky přímo prostřednictvím svých zaměstnanců. Informace předané tímto formulářem budou uloženy v databázi správce maximálně po dobu 10 let. Odvolání souhlasu s uložením a zpracováním poskytnutých dat lze e-mailem na info@bydlisnami.cz. V případě podezření na neoprávněné použití Vámi poskytnutých údajů máte právo předat podnět k šetření Úřadu pro ochranu osobních údajů. Více informací
Chystáte se prodat nemovitost?
Pomůžeme Vám!

Inzerát si prohlédlo 9 lidí

Prodejce

Radim Vacula - Člen Realitní Komory ČR

Radim Vacula - Člen Realitní Komory ČR

Hlídací pes

Chcete dostávat emailem podobné nabídky prodeje domů na klíč v Uherském Brodu?

Podobné nemovitosti