Prodej rodinného domu, Nechanice, Palackého, 135 m2

Palackého, Nechanice

4 600 000 Kč /za nemovitost HYPOTÉKA od 20 559 Kč /za měsíc
Doporučené firmy v Nechanicích

Pojištění a finance

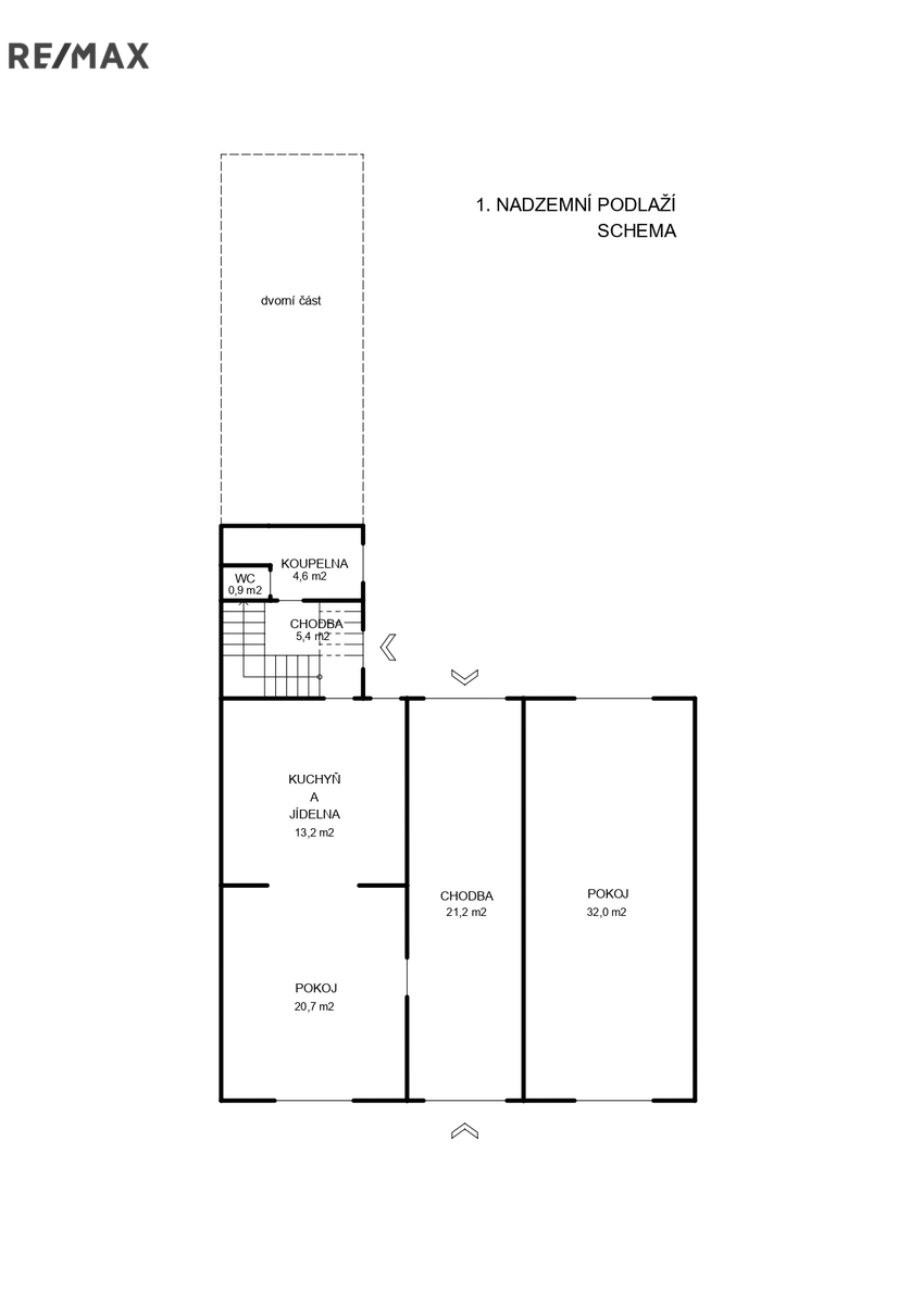
Informace k domu

Hledáte rodinný dům se zahradou, kde si postupně vytvoříte domov přesně podle svých představ? Právě jeden takový pro vás máme v Nechanicích.

Tento rodinný dům stojí v klidné části obce na krásném, prostorném pozemku o velikosti 1 127 m² a nabízí dostatek prostoru pro rodinný život, zahradu i vaše koníčky. Velkou výhodou je také přístup na zahradu nejen od domu, ale i z vedlejšího obecního pozemku, což oceníte například při údržbě zahrady, parkování nebo plánování budoucích úprav.

Kromě samotného domu zde najdete také garáž, dílnu a menší zahradní domek, takže místa je tu opravdu dost – ať už pro práci, odpočinek nebo uskladnění všeho potřebného.

Dalším benefitem je, že v domě lze ihned normálně bydlet a případnou rekonstrukci řešit postupně, podle vašich možností a představ. Nemusíte tedy vše řešit najednou – dům si můžete upravovat krok za krokem a přizpůsobovat ho přesně svému stylu a potřebám.

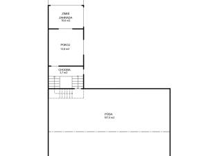
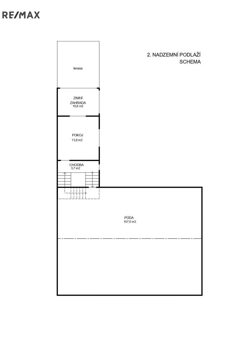
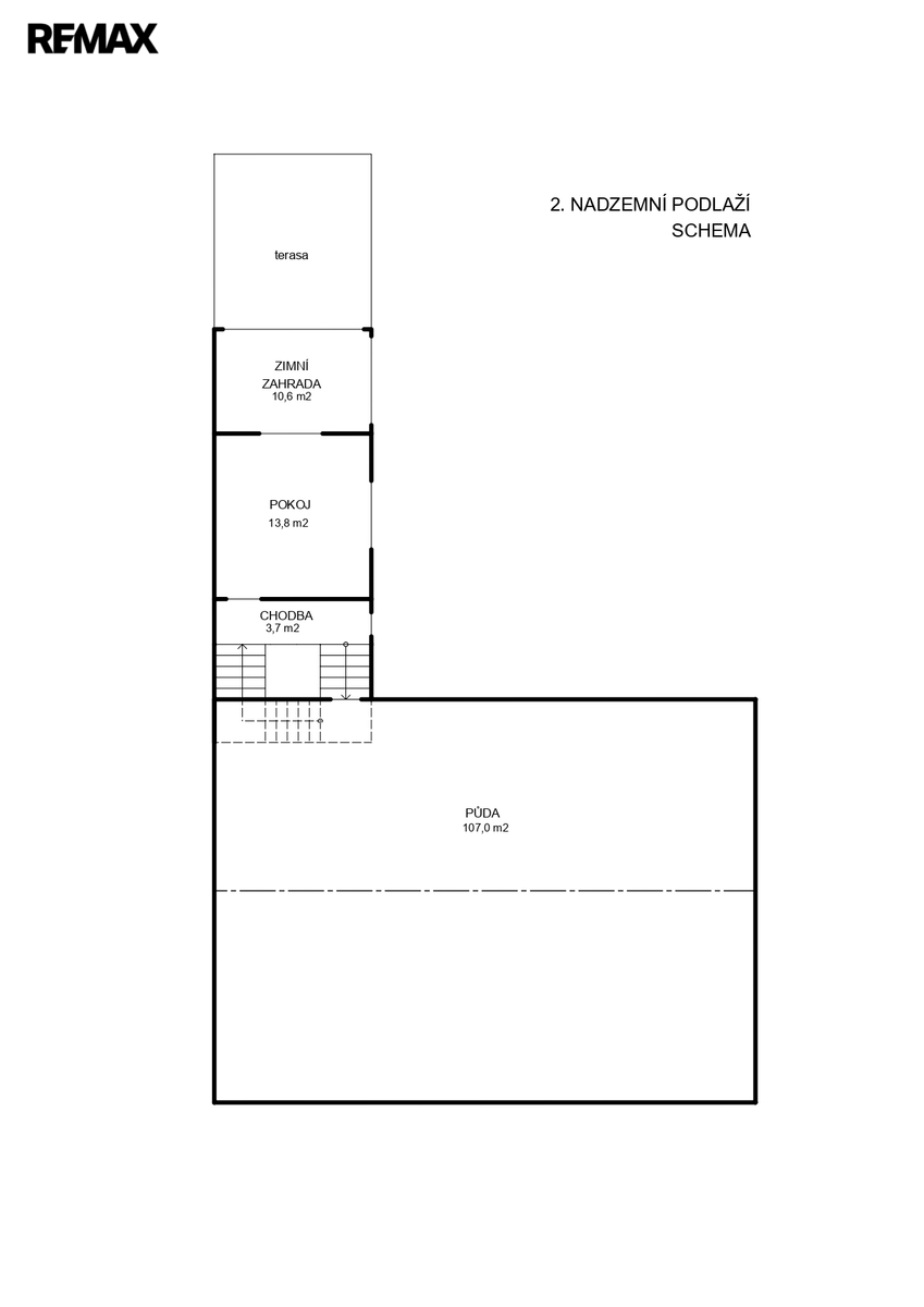
Velký potenciál nabízí také půdní prostor o výměře přibližně 107 m², který přímo vybízí k půdní vestavbě. Díky tomu může dům výrazně zvětšit obytnou plochu a přizpůsobit se i vícegeneračnímu bydlení.

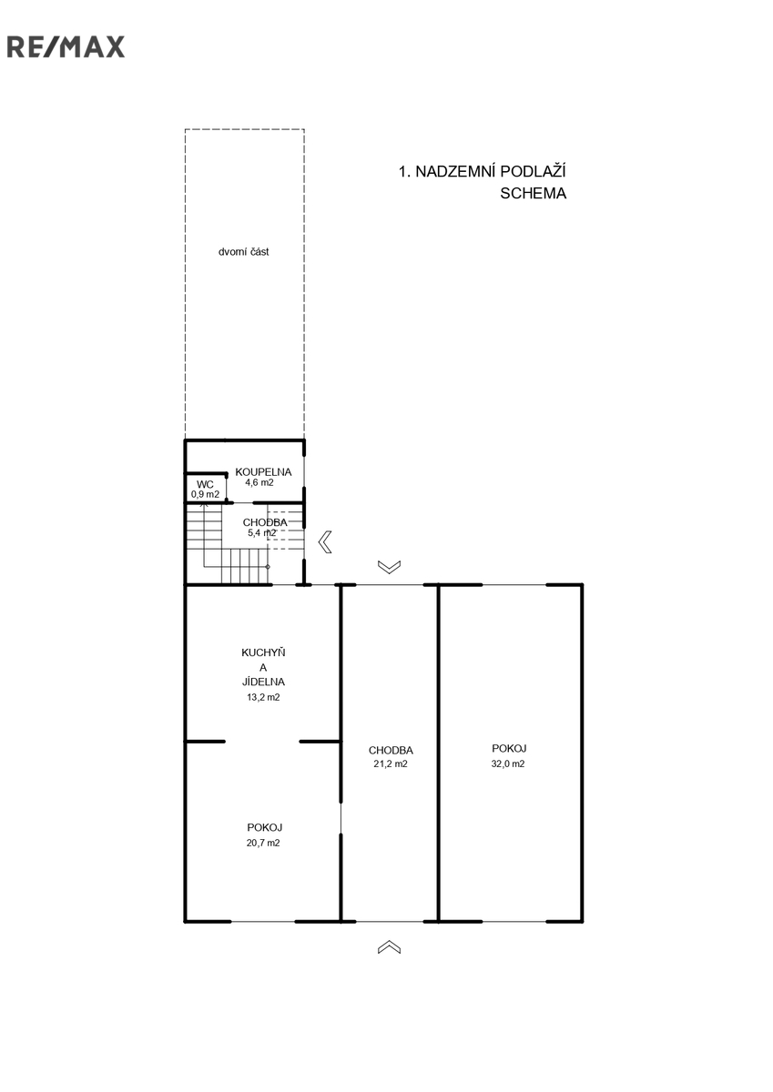
Nemovitost tak může být nejen skvělým rodinným domovem, ale také zajímavou investiční příležitostí. Dispozice i velikost domu umožňují uvažovat o vybudování více bytových jednotek – například pro pronájem nebo kombinaci vlastního bydlení a investice.

Nechanice nabízí kompletní občanskou vybavenost – najdete zde školu, školku, lékaře, obchody, restaurace i další služby pro pohodlný každodenní život. Do Hradce Králové se navíc dostanete během pár minut autem nebo autobusem, takže máte město na dosah a přitom klidné bydlení mimo jeho ruch.

Pokud budete potřebovat pomoc s financováním koupě i následných úprav, rádi vám zajistíme výhodné řešení na míru.

Zaujala vás představa domu, který nabízí prostor, klid a velký potenciál? Ozvěte se a domluvme si osobní prohlídku. Rád vám dům ukážu.
Prodávající si vyhrazuje právo vybrat kupujícího na základě jím zvolených kritérií.

Parametry domu

Cena
4 600 000 Kč /za nemovitost Spočítat hypotéku
Aktualizováno
23. 5. 2026
Adresa
Palackého, Nechanice
ID
305-NP00754
Stavba
Cihlová
Stav objektu
Dobrý
Vybaveno
Částečně
Typ objektu
Patrový
Druh objektu
Řadový
Užitná plocha
135 m2
Podlahová plocha
194 m2
Plocha pozemku
1127 m2
Třída energetické náročnosti
G - Mimořádně nehospodárná
Elektřina
230V, 400V
Odpad
Veřejná kanalizace, Jímka
Komunikace
Asfaltová
Doprava
Silnice, Autobus
Voda
Studna
Garáž
Bezbarierový přístup
Převod do OV

Kontaktovat makléře

Realitní kancelář

RE/MAX Infinity

Masarykovo náměstí 392/14, Hradec Králové

Chystáte se prodat nemovitost?
Pomůžeme Vám!

Máte zájem o tento dům?

Tímto, v souladu s nařízením Evropského parlamentu a Rady (EU) 2016/679, v platném znění, prohlašuji, že mi je alespoň 16 let a uděluji tak svůj souhlas se zpracováním zadaných údajů (jméno, telefon, e-mail, ip adresa) společnosti B3 Technology, s.r.o., IČ: 07330600, se sídlem Novostavby 126/23, 435 11 Lom (správce dat), za účelem předání dotazu z tohoto formuláře Vámi vybranému inzerentovi a zpětného kontaktování mé osoby. Osobní údaje bude správce zpracovávat manuálně i automaticky přímo prostřednictvím svých zaměstnanců. Informace předané tímto formulářem budou uloženy v databázi správce maximálně po dobu 10 let. Odvolání souhlasu s uložením a zpracováním poskytnutých dat lze e-mailem na info@bydlisnami.cz. V případě podezření na neoprávněné použití Vámi poskytnutých údajů máte právo předat podnět k šetření Úřadu pro ochranu osobních údajů. Více informací
Chystáte se prodat nemovitost?
Pomůžeme Vám!
Theleadway banner

Inzerát si prohlédlo 22 lidí

Prodejce

Bc. Tomáš Kunc

Bc. Tomáš Kunc

Hlídací pes

Chcete dostávat emailem podobné nabídky prodeje rodinných domů v Nechanicích?

Podobné nemovitosti