Prodej rodinného domu, Praha - Liboc, Ke Džbánu, 290 m2

Ke Džbánu, Praha 6, Liboc

29 990 000 Kč /za nemovitost HYPOTÉKA od 134 037 Kč /za měsíc
Doporučené firmy v Praze 6

Stěhovací služby

Výkup a prodej starého nábytku

Informace k domu

Rodinný dům v klidné ulici Ke Džbánu, jen 3 minuty chůze od tramvajové zastávky Divoká Šárka. Přímý výhled do zeleně, skvělá dostupnost do centra i na letiště, přírodní rezervace za rohem.

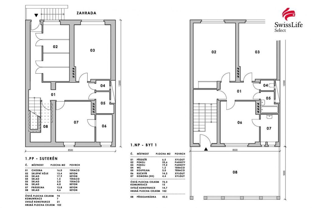
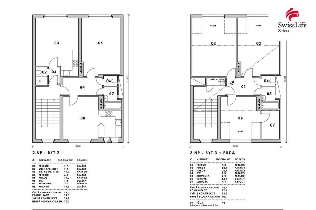
Čtyři nadzemní podlaží včetně půdy a jedno podzemní. Každé patro má výměru cca 102 m, celková užitná plocha tedy činí 408 m. Na pozemku o celkové výměře 332 m se nachází také zahrada o rozloze 230 m. Dispozice domu je aktuálně připravena pro 5 samostatných bytových jednotek, zapsání v katastru zatím neproběhlo. Půdní prostor umožňuje další rozšíření například o dvě další bytové jednotky.

Stav nemovitosti vyžaduje kompletní rekonstrukci. Požár způsobený nedopalkem zanechal interiér začouzený, statika i konstrukce domu však zůstaly neporušené. Majitel již zahájil výmalbu a základní obnovu prostoru.

Investiční potenciál je zásadní. Vzniknout může projekt nájemního bydlení, bytový dům k prodeji nebo vícegenerační rodinné bydlení.
Dům není zatížen právními vadami a je ihned k dispozici.

Zaujalo Vás to? Zavolejte si a rovnou si domluvte prohlídku.
Podobné příležitosti v této části Prahy se objevují jen výjimečně.

Parametry domu

Cena
29 990 000 Kč /za nemovitost Spočítat hypotéku
Aktualizováno
10. 9. 2025
Adresa
Ke Džbánu, Praha 6, Liboc
ID
24353
Stavba
Cihlová
Stav objektu
Před rekonstrukcí
Vybaveno
Částečně
Typ objektu
Patrový
Druh objektu
Řadový
Užitná plocha
290 m2
Zastavěná plocha
102 m2
Podlahová plocha
408 m2
Plocha pozemku
374 m2
Plocha zahrady
230 m2
Třída energetické náročnosti
G - Mimořádně nehospodárná
Doprava
Vlak, MHD, Autobus
Voda
Vodovod
Sklep
Bezbarierový přístup

Kontaktovat makléře

Máte zájem o tento dům?

Tímto, v souladu s nařízením Evropského parlamentu a Rady (EU) 2016/679, v platném znění, prohlašuji, že mi je alespoň 16 let a uděluji tak svůj souhlas se zpracováním zadaných údajů (jméno, telefon, e-mail, ip adresa) společnosti B3 Technology, s.r.o., IČ: 07330600, se sídlem Novostavby 126/23, 435 11 Lom (správce dat), za účelem předání dotazu z tohoto formuláře Vámi vybranému inzerentovi a zpětného kontaktování mé osoby. Osobní údaje bude správce zpracovávat manuálně i automaticky přímo prostřednictvím svých zaměstnanců. Informace předané tímto formulářem budou uloženy v databázi správce maximálně po dobu 10 let. Odvolání souhlasu s uložením a zpracováním poskytnutých dat lze e-mailem na info@bydlisnami.cz. V případě podezření na neoprávněné použití Vámi poskytnutých údajů máte právo předat podnět k šetření Úřadu pro ochranu osobních údajů. Více informací
Chystáte se prodat nemovitost?
Pomůžeme Vám!

Inzerát si prohlédlo 27 lidí

Prodejce

Zuzana Veselá

Zuzana Veselá

Hlídací pes

Chcete dostávat emailem podobné nabídky prodeje rodinných domů v Praze 6?

Podobné nemovitosti