Prodej rodinného domu, Stranný, 804 m2 (ID: 2395996)

Stranný

59 000 000 Kč /za nemovitost HYPOTÉKA od 263 694 Kč /za měsíc
Doporučené firmy v Stranném

Informace k domu

Dovolujeme si představit jedinečnou nemovitost v jedné z nejkrásnějších částí Povltaví v katastrálním území Stranný, Zádolí u Neveklova a Vlkonice u Neveklova, nedaleko Nové Živohoště.
Hlavní část tvoří nově postavená budova v zámeckém stylu s krásnými výhledy, obklopená zahradami a rozsáhlými pozemky, které spolu s rybníkem tvoří ucelený celek. Součástí nemovitosti jsou další stavby - rodinný dům vhodný jako zázemí pro personál, krytá venkovní kuchyně, dílna včetně zastřešených parkovacích míst a další tři budovy vhodné pro menší rodinnou farmu, nyní využívané pro chov ovcí.
Malebné místo známé z legendárního českého filmu "VESNIČKO MÁ STŘEDISKOVÁ" má výhodnou polohu. Okraj hlavního města Prahy (30 KM) je dostupný do 30 min., město Benešov (18 KM) je dostupné do 20 min., město Neveklov (3 KM) je dostupné do 5 min. Nová Živohošť - během léta nejnavštěvovanější rekreační místo na vodní nádrži Slapy (6 km) je dostupné do 10 minut. Komplex tvoří dohromady 43 pozemků o celkové výměře 1196 257 m2. Pozemky i stavby jsou dobře dostupné z obecní asfaltové komunikace a nabízí rozmanité využití.
Nemovitost se stává z: 1.NP vstupní hala se schodištěm, chodba, jídelna, kuchyň, krbová místnost, tři samostatné salonky, salonek s krbem, ložnice s koupelnou, umývárna, sklad, kotelna a dvakrát WC.
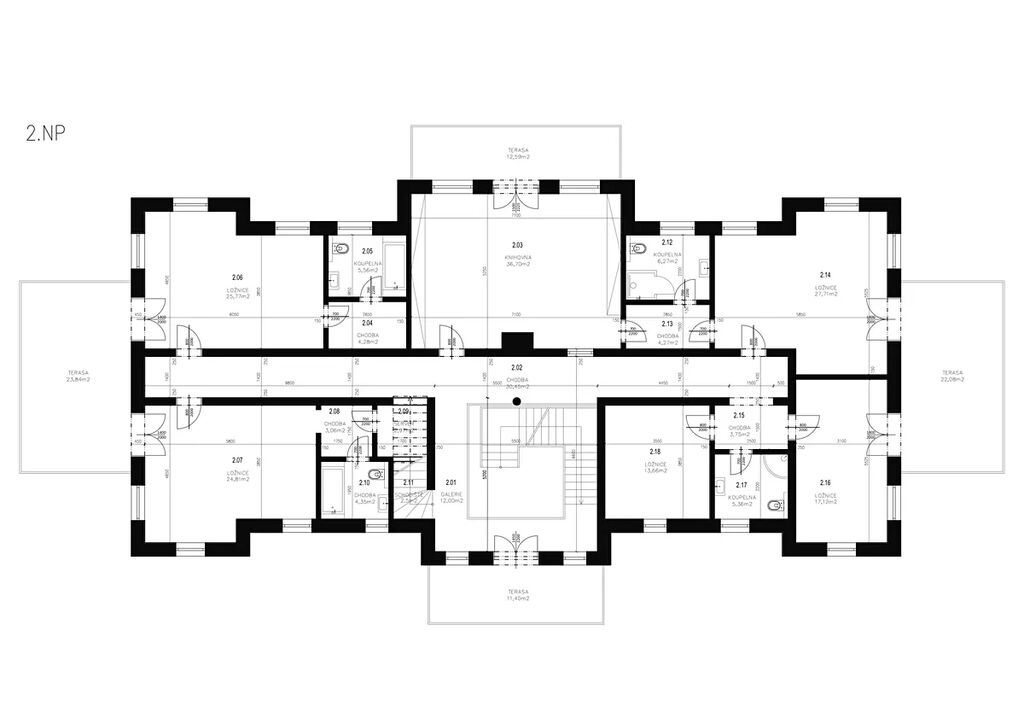
2.NP ochoz schodiště, chodba, knihovna s výhledem na terasu, čtyři prostorné ložnice - každá ložnice má vlastní koupelnu a východ na terasu.
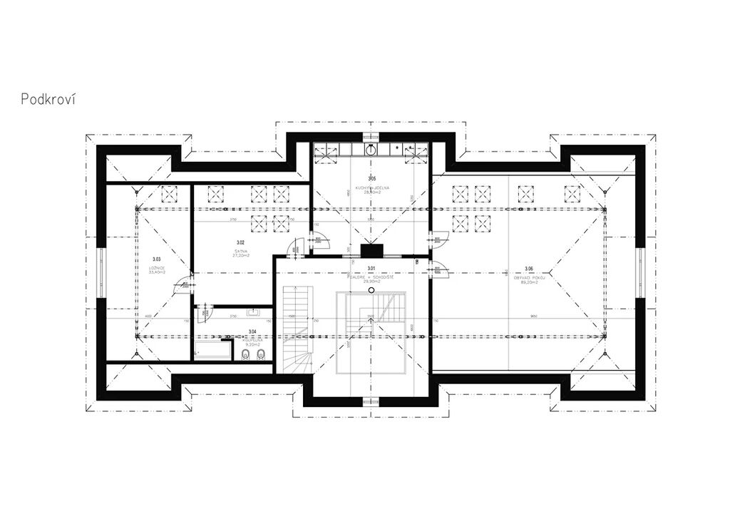
3.NP ochoz schodiště, chodba, ateliér s kuchyní a koupelnou, dále dva samostatné byty dispozičně řešené jako 2KK.
Technologie domu: V celé budově je instalováno teplovodní podlahové vytápění. Hlavním zdrojem tepla je tepelné čerpadlo vzduch - voda se záložním elektrokotlem. Dalším tepelným zdrojem je výkonný krb s tepelným výměníkem, též napojeným na teplovodní otopnou soustavu. V hlavní společenské místnosti je zabudován krb s horkovzdušným rozvodem.
Celý objekt je elektronicky zabezpečen pomocí alarmu.
Nemovitost poskytuje svoji polohou absolutní soukromí.
Doporučujeme prohlídku!

Parametry domu

Cena
59 000 000 Kč /za nemovitost Spočítat hypotéku
Aktualizováno
29. 8. 2025
Adresa
Stranný
ID
109613
Stavba
Cihlová
Stav objektu
Po rekonstrukci
Vybaveno
Ano
Druh objektu
Samostatný
Lokalita objektu
Polosamota
Užitná plocha
804 m2
Zastavěná plocha
714 m2
Plocha pozemku
196257 m2
Doprava
Silnice
Sklep
Výtah
Parkování

Kontaktovat makléře

Máte zájem o tento dům?

Tímto, v souladu s nařízením Evropského parlamentu a Rady (EU) 2016/679, v platném znění, prohlašuji, že mi je alespoň 16 let a uděluji tak svůj souhlas se zpracováním zadaných údajů (jméno, telefon, e-mail, ip adresa) společnosti B3 Technology, s.r.o., IČ: 07330600, se sídlem Novostavby 126/23, 435 11 Lom (správce dat), za účelem předání dotazu z tohoto formuláře Vámi vybranému inzerentovi a zpětného kontaktování mé osoby. Osobní údaje bude správce zpracovávat manuálně i automaticky přímo prostřednictvím svých zaměstnanců. Informace předané tímto formulářem budou uloženy v databázi správce maximálně po dobu 10 let. Odvolání souhlasu s uložením a zpracováním poskytnutých dat lze e-mailem na info@bydlisnami.cz. V případě podezření na neoprávněné použití Vámi poskytnutých údajů máte právo předat podnět k šetření Úřadu pro ochranu osobních údajů. Více informací
Chystáte se prodat nemovitost?
Pomůžeme Vám!

Inzerát si prohlédlo 1 lidí

Prodejce

Pavel Volf

Pavel Volf

Hlídací pes

Chcete dostávat emailem podobné nabídky prodeje rodinných domů v Stranném?

Podobné nemovitosti