Prodej bytu 4+kk, Liberec - Liberec XXV-Vesec, U Sadu, 131 m2

U Sadu, Liberec (nečleněné město)

5 990 000 Kč /za nemovitost HYPOTÉKA od 26 772 Kč /za měsíc
Doporučené firmy v Liberci

Rekonstrukce

Úklidové služby

Informace k bytu

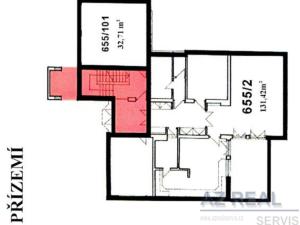
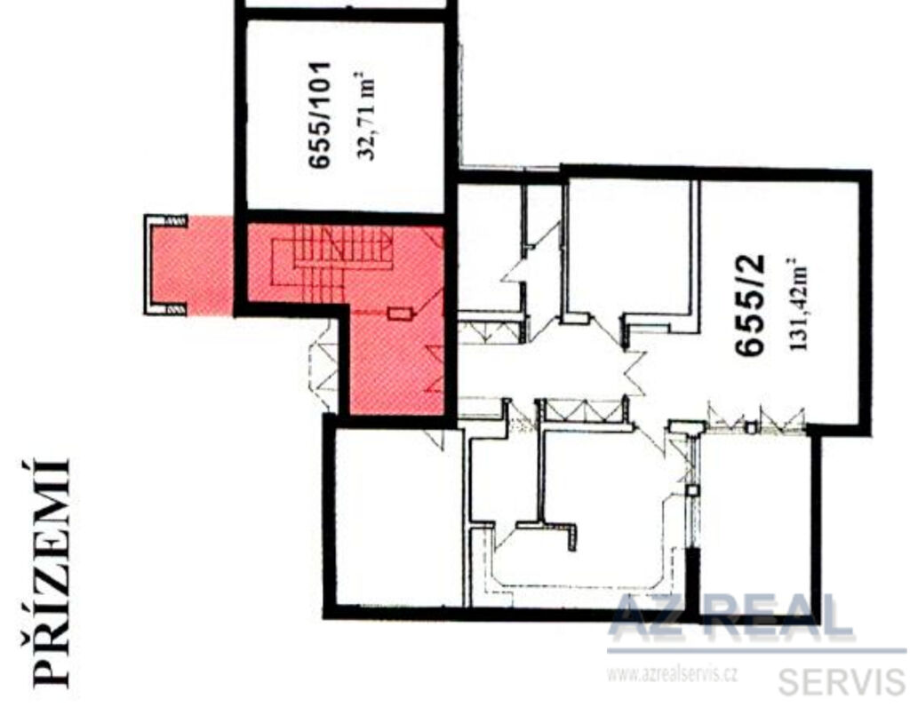
Exkluzivně nabízíme prodej prostorného bezbariérového bytu v klidné lokalitě Vesce, nedaleko vodní nádrže Tajch. Byt se nachází v menším bytovém domě o šesti bytových jednotkách a šesti garážích, postaveném v roce 1997. Byt se rozprostírá se přes celé patro domu – z ulice je situován v přízemí, ze zahrady v patře.
Dispozice bytu
• obývací pokoj 32 m² s krbem a vstupem na velkou terasu s nádherným výhledem na Ještědský hřbet
• kuchyně s jídelnou 27 m² a spíží 5 m²
• dva pokoje 18 m² a 15 m² (jeden z nich se samostatným vstupem – možnost dvougeneračního bydlení či domácí pracovny)
• prostorná předsíň 23 m² s vestavěnou skříní
• koupelna se samostatným WC cca 9 m²
Další výhody:
• dům je napojen na vlastní studnu a kanalizaci
• plynová přípojka využitá na ohřev teplé vody
• centrální topení kotlem na tuhá paliva se službou a ročním nákladem kolem 35tis
• k bytu náleží samostatný pozemek 158 m² za domem – ideální na zahrádku či posezení
• možnost dokoupení dvougaráže přímo na stejném podlaží, přístupné ze schodiště (voda, elektřina i příprava pro nabíjení elektromobilu)
Byt je ihned k nastěhování, případně k úpravám dle vlastních představ.
Nejedná se o běžný „panelákový“ byt – zde získáte komfortní bydlení v přírodě, s parkováním, vlastní zahrádkou a kouzelnými výhledy.

Parametry bytu

Cena
5 990 000 Kč /za nemovitost Spočítat hypotéku
Aktualizováno
22. 10. 2025
Adresa
U Sadu, Liberec (nečleněné město)
ID
0857
Stavba
Smíšená
Stav objektu
Dobrý
Patro
1. z 3
Vybaveno
Částečně
Lokalita objektu
Klidná část obce
Vlastnictví
Osobní
Užitná plocha
131 m2
Zastavěná plocha
342 m2
Podlahová plocha
131 m2
Plocha zahrady
158 m2
Třída energetické náročnosti
G - Mimořádně nehospodárná
Elektřina
400V
Plyn
Plynovod
Odpad
Septik, Jímka
Komunikace
Dlážděná, Asfaltová
Telekomunikace
Internet, Satelit
Doprava
Silnice
Voda
Studna
Terasa
Bezbarierový přístup

Kontaktovat makléře

Realitní kancelář

Logo AZ REAL SERVIS s.r.o.

AZ REAL SERVIS s.r.o.

Elišky Krásnohorské 1327/17, Liberec 1

Chystáte se prodat nemovitost?
Pomůžeme Vám!

Máte zájem o tento byt?

Tímto, v souladu s nařízením Evropského parlamentu a Rady (EU) 2016/679, v platném znění, prohlašuji, že mi je alespoň 16 let a uděluji tak svůj souhlas se zpracováním zadaných údajů (jméno, telefon, e-mail, ip adresa) společnosti B3 Technology, s.r.o., IČ: 07330600, se sídlem Novostavby 126/23, 435 11 Lom (správce dat), za účelem předání dotazu z tohoto formuláře Vámi vybranému inzerentovi a zpětného kontaktování mé osoby. Osobní údaje bude správce zpracovávat manuálně i automaticky přímo prostřednictvím svých zaměstnanců. Informace předané tímto formulářem budou uloženy v databázi správce maximálně po dobu 10 let. Odvolání souhlasu s uložením a zpracováním poskytnutých dat lze e-mailem na info@bydlisnami.cz. V případě podezření na neoprávněné použití Vámi poskytnutých údajů máte právo předat podnět k šetření Úřadu pro ochranu osobních údajů. Více informací
Chystáte se prodat nemovitost?
Pomůžeme Vám!

Inzerát si prohlédlo 23 lidí

Prodejce

Mgr. Martin Mrugala

Mgr. Martin Mrugala

Hlídací pes

Chcete dostávat emailem podobné nabídky prodeje bytů 4+kk v Liberci?

Podobné nemovitosti