Alejní, Teplice
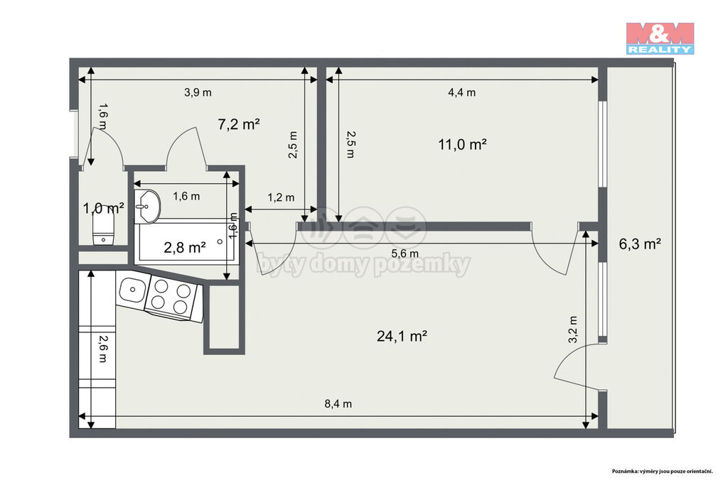
Hledáte zajímavou příležitost k investici nebo byt, který si můžete zrekonstruovat přesně podle svých představ? Pak pro vás máme nabídku, která rozhodně stojí za pozornost. Nabízíme k prodeji byt o dispozici 2+1 a výměře 46 m², který se nachází v žádané části Teplic, v ulici Alejní.
Byt je situován ve starší, ale udržované zástavbě s příjemnou atmosférou a výbornou dostupností ke všemu, co k pohodlnému životu potřebujete. Byt je v původním udržovaném stavu, což nabízí ideální příležitost k vytvoření moderního a útulného domova.
Lokalita je jedním z hlavních benefitů této nemovitosti. Ulice Alejní je klidná, ale přitom v těsné blízkosti centra města. V docházkové vzdálenosti najdete obchody, restaurace, školy, školky, lékařskou péči i zastávky městské hromadné dopravy. Teplické centrum je dostupné během několika minut pěšky nebo MHD, což je výhodou nejen pro vlastní bydlení, ale i pro budoucí nájemníky.
 
                                        ulice Krakovská 583/9, Praha
Máte zájem o tento byt?
Inzerát si prohlédlo 6 lidí
 
                                Ing. Bc. Romana Marečková
Chcete dostávat emailem podobné nabídky prodeje bytů 2+1 v Teplicích?