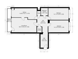
Pronájem bytu 3+1, Praha - Chodov, Brandlova, 83 m2

Brandlova, Chodov - Praha 11

25 500 Kč /za měsíc Získejte výhodnou HYPOTÉKU

(vratná jistota, náklady na bydlení 7.450 Kč, poplatek za podnájem)

Doporučené firmy v Praze 4

Stěhovací služby

Výkup a prodej starého nábytku

Informace k bytu

K dlouhodobému podnájmu vám nabízíme tento částečně zařízený byt 3+1 se zaklenou lodžií. Byt se nachází v lokalitě s veškerou občanskou vybaveností a vynikající dopravní dostupností. Pár kroku od domu se nachází hypermarket Albert, lékárna a několik základních i mateřských škol. V pěší dostupnosti je stanice metra C - Háje a autobusová zastávka Hněvkovského nebo Prašná.

Interiér bytu tvoří centrální chodba vybavena vybavena vestavnými skříněmi, obývací pokoj se vstupem na zasklenou lodžii, ložnice a dětský pokoj s další, velkou šatní skříní. Byt si déle můžete zařídit plně dle svých představ a potřeb. Koupelna je vybavena vanou, umyvadlem. Toaleta je umístěna samostatně.

Kuchyně je vybavena troubou, myčkou, lednicí, digestoří a plynovým sporákem.

Zálohové platby už obsahují zálohy na elektřinu a pojištění domácnosti.

Byt je k dispozici od 1.12.2025.

Parametry bytu

Cena
25 500 Kč /za měsíc
Poznámka k ceně
vratná jistota, náklady na bydlení 7.450 Kč, poplatek za podnájem
Aktualizováno
30. 10. 2025
Adresa
Brandlova, Chodov - Praha 11
ID
N4684
Stavba
Panelová
Stav objektu
Dobrý
Patro
4. z 8
Vybaveno
Částečně
Typ objektu
Patrový
Lokalita objektu
Klidná část obce
Vlastnictví
Osobní
Užitná plocha
83 m2
Podlahová plocha
83 m2
Třída energetické náročnosti
C - Úsporná
Elektřina
230V
Topení
Ústřední dálkové
Lodžie
Výtah
Bezbarierový přístup

Kontaktovat makléře

Máte zájem o tento byt?

Tímto, v souladu s nařízením Evropského parlamentu a Rady (EU) 2016/679, v platném znění, prohlašuji, že mi je alespoň 16 let a uděluji tak svůj souhlas se zpracováním zadaných údajů (jméno, telefon, e-mail, ip adresa) společnosti B3 Technology, s.r.o., IČ: 07330600, se sídlem Novostavby 126/23, 435 11 Lom (správce dat), za účelem předání dotazu z tohoto formuláře Vámi vybranému inzerentovi a zpětného kontaktování mé osoby. Osobní údaje bude správce zpracovávat manuálně i automaticky přímo prostřednictvím svých zaměstnanců. Informace předané tímto formulářem budou uloženy v databázi správce maximálně po dobu 10 let. Odvolání souhlasu s uložením a zpracováním poskytnutých dat lze e-mailem na info@bydlisnami.cz. V případě podezření na neoprávněné použití Vámi poskytnutých údajů máte právo předat podnět k šetření Úřadu pro ochranu osobních údajů. Více informací
Chystáte se prodat nemovitost?
Pomůžeme Vám!

Inzerát si prohlédlo 4 lidí

Prodejce

Miloslava Kačerová

Miloslava Kačerová

Hlídací pes

Chcete dostávat emailem podobné nabídky pronájmu bytů 3+1 v Praze 4?

Podobné nemovitosti