Pronájem bytu 4+kk, Praha - Braník, Pod svahem, 140 m2

Pod svahem, Braník - Praha 4

39 900 Kč /za měsíc Získejte výhodnou HYPOTÉKU

(vratná jistota, náklady na bydlení 5 790 Kč, poplatek za podnájem)

Doporučené firmy v Praze 4

Stěhovací služby

Výkup a prodej starého nábytku

Informace k bytu

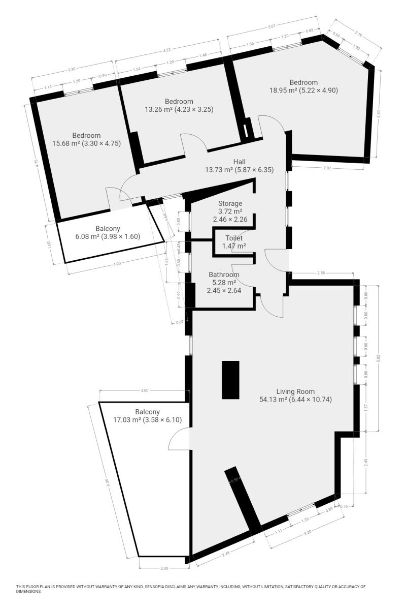
K dlouhodobému podnájmu nabízíme prostorný a světlý podkrovní byt 4+kk o velikosti 140 m², který se nachází v nejvyšším, 3. patře udržovaného bytového domu bez výtahu, v klidné lokalitě Praha 4 – Braník. K bytu přísluší balkon (8 m²), terasa (10 m²), sklep (12,1 m²) a garáž (19,5 m²).

Byt je nabízen plně vybavený, což ušetří starosti se zařizováním. Moderní kuchyňský kout je zařízený lednicí s mrazákem, myčkou, elektrickou troubou, plynovou varnou deskou a digestoří. Obývací část disponuje jídelním stolem s židlemi, sedačkou s konferenčním stolkem, pracovním stolem a křeslem. Byt dále nabízí tři samostatné pokoje zařízené postelemi s matracemi, koupelnu s vanou a bidetem, samostatnou toaletu a komoru s pračkou.

Bezpečnostní vstupní dveře, v pokojích dřevěné podlahy, v chodbě, komoře a koupelně dlažba, plastová okna, podlahové vytápění (plynový kotel), klimatizace, přípojka na internet.

V docházkové vzdálenosti se nachází supermarket a menší prodejny potravin, kavárny a restaurace, řeznictví, divadlo, lékárna, základní a mateřská škola i dětská hřiště. Milovníci přírody a sportu ocení blízkost Žlutých lázní, Branických skal, Branické louky a pláže, workoutového hřiště a početných sportovišť v okolí. Výbornou dopravní dostupnost zajišťují nedaleké autobusové zastávky s rychlým spojením na metro.

Byt je připraven k okamžitému nastěhování.

Energetická třída: E (nehospodárná).

Parametry bytu

Cena
39 900 Kč /za měsíc
Poznámka k ceně
vratná jistota, náklady na bydlení 5 790 Kč, poplatek za podnájem
Aktualizováno
5. 11. 2025
Adresa
Pod svahem, Braník - Praha 4
ID
N6751
Stavba
Cihlová
Stav objektu
Velmi dobrý
Patro
4. z 4
Vybaveno
Ano
Typ objektu
Patrový
Lokalita objektu
Klidná část obce
Vlastnictví
Osobní
Užitná plocha
140 m2
Podlahová plocha
140 m2
Třída energetické náročnosti
E - Nehospodárná
Elektřina
230V
Plyn
Plynovod
Topení
Ústřední plynové, Podlahové
Doprava
Vlak, Dálnice, Silnice, MHD, Autobus
Voda
Vodovod
Balkon
Garáž
Sklep
Terasa
Výtah

Kontaktovat makléře

Máte zájem o tento byt?

Tímto, v souladu s nařízením Evropského parlamentu a Rady (EU) 2016/679, v platném znění, prohlašuji, že mi je alespoň 16 let a uděluji tak svůj souhlas se zpracováním zadaných údajů (jméno, telefon, e-mail, ip adresa) společnosti B3 Technology, s.r.o., IČ: 07330600, se sídlem Novostavby 126/23, 435 11 Lom (správce dat), za účelem předání dotazu z tohoto formuláře Vámi vybranému inzerentovi a zpětného kontaktování mé osoby. Osobní údaje bude správce zpracovávat manuálně i automaticky přímo prostřednictvím svých zaměstnanců. Informace předané tímto formulářem budou uloženy v databázi správce maximálně po dobu 10 let. Odvolání souhlasu s uložením a zpracováním poskytnutých dat lze e-mailem na info@bydlisnami.cz. V případě podezření na neoprávněné použití Vámi poskytnutých údajů máte právo předat podnět k šetření Úřadu pro ochranu osobních údajů. Více informací
Chystáte se prodat nemovitost?
Pomůžeme Vám!

Inzerát si prohlédlo 90 lidí

Prodejce

Miloslava Kačerová

Miloslava Kačerová

Hlídací pes

Chcete dostávat emailem podobné nabídky pronájmu bytů 4+kk v Praze 4?

Podobné nemovitosti