Prodej bytu 3+1, Plzeň, Hálkova, 132 m2

Hálkova, Plzeň, Jižní Předměstí

7 590 000 Kč /za nemovitost HYPOTÉKA od 33 923 Kč /za měsíc

(včetně DPH, včetně poplatků, včetně provize, včetně právního servisu)

Doporučené firmy v Plzni

Podlahy

Stěhovací služby

Informace k bytu

Ve výhradním zastoupení Vám nabízíme k prodeji výjimečný a prostorný byt o celkové ploše 147m2.

Součástí bytové jednotky je i balkon, který poskytuje venkovní prostor pro relaxaci či pěstování rostlin.
K bytu náleží sklep o velikosti 12m2.

Byt se nachází ve 4. patře cihlového domu. Dům s historií, postavený v roce 1909, sice nemá výtah, ale má své kouzlo a atmosféru, která je dnes již vzácná. V roce 2025 byla na domě opravena fasáda a o to víc vynikne krása tohoto domu.

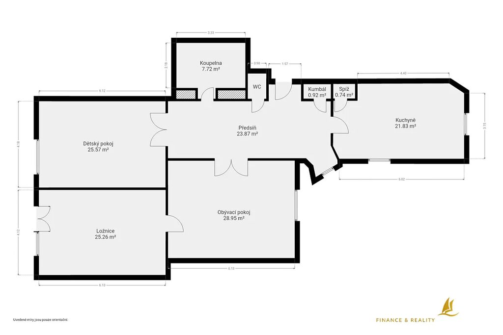
Bytová jednotka je výjimečná svou světlostí a nadstandardní velikostí. Při příchodu do bytu Vás přivítá obrovská vstupní hala ze které se vchází do dalších pokojů. Přesné rozdělení místnosti si můžete prohlédnout na zpracovaném půdorysu.
V roce 2020 byt prošel částečnou rekonstrukcí. Byla rekonstruována koupelna, WC, dále pak kuchyně s novou kuchyňskou linkou a spotřebiči. V celé kuchyni byla opravena elektroinstalace. Ve stejném roce byly zrenovovány podlahy. Byt si přitom stále zachoval svůj původní charakter – najdete zde krásné interiérové dveře, původní dřevěné parkety a vysoké stropy, které dodávají prostoru osobitý styl.
Ohřev vody a vytápění bytu zajišťuje plynový kotel.

Hálkova ulice se nachází v širším centru Plzně s výbornou občanskou vybaveností – školy, školky, obchody, restaurace i zastávky MHD - to vše v docházkové vzdálenosti. V centru města jste během několika minut.

V případě zájmu o bližší informace či sjednání prohlídky mě neváhejte kontaktovat. Ráda Vás provedu tímto výjimečným bytem.

S financováním na míru Vám rádi pomůžeme.

Těšíme se na prohlídkách!

Parametry bytu

Cena
7 590 000 Kč /za nemovitost Spočítat hypotéku
Poznámka k ceně
včetně DPH, včetně poplatků, včetně provize, včetně právního servisu
Aktualizováno
20. 9. 2025
Adresa
Hálkova, Plzeň, Jižní Předměstí
ID
00121
Stavba
Cihlová
Stav objektu
Dobrý
Patro
5. z 7
Vybaveno
Částečně
Lokalita objektu
Klidná část obce
Vlastnictví
Osobní
Užitná plocha
132 m2
Podlahová plocha
147 m2
Elektřina
230V
Odpad
Veřejná kanalizace
Komunikace
Asfaltová
Telekomunikace
Telefon, Internet
Doprava
Vlak, Silnice, MHD, Autobus
Voda
Vodovod
Topné těleso
Radiátory
Zdroj topení
Plynový kotel
Zdroj teplé vody
Plynový kotel
Balkon
Sklep
Výtah

Kontaktovat makléře

Máte zájem o tento byt?

Tímto, v souladu s nařízením Evropského parlamentu a Rady (EU) 2016/679, v platném znění, prohlašuji, že mi je alespoň 16 let a uděluji tak svůj souhlas se zpracováním zadaných údajů (jméno, telefon, e-mail, ip adresa) společnosti B3 Technology, s.r.o., IČ: 07330600, se sídlem Novostavby 126/23, 435 11 Lom (správce dat), za účelem předání dotazu z tohoto formuláře Vámi vybranému inzerentovi a zpětného kontaktování mé osoby. Osobní údaje bude správce zpracovávat manuálně i automaticky přímo prostřednictvím svých zaměstnanců. Informace předané tímto formulářem budou uloženy v databázi správce maximálně po dobu 10 let. Odvolání souhlasu s uložením a zpracováním poskytnutých dat lze e-mailem na info@bydlisnami.cz. V případě podezření na neoprávněné použití Vámi poskytnutých údajů máte právo předat podnět k šetření Úřadu pro ochranu osobních údajů. Více informací
Chystáte se prodat nemovitost?
Pomůžeme Vám!

Inzerát si prohlédlo 6 lidí

Prodejce

Barbora Kozlová, PFP

Barbora Kozlová, PFP

Hlídací pes

Chcete dostávat emailem podobné nabídky prodeje bytů 3+1 v Plzni?

Top nabídky

Podobné nemovitosti